Apartment Montespertoli
€ 320.000
Rif. 1177 - Montespertoli - Questo elegante appartamento in villa si trova in una tranquilla e verde zona di Montespertoli.
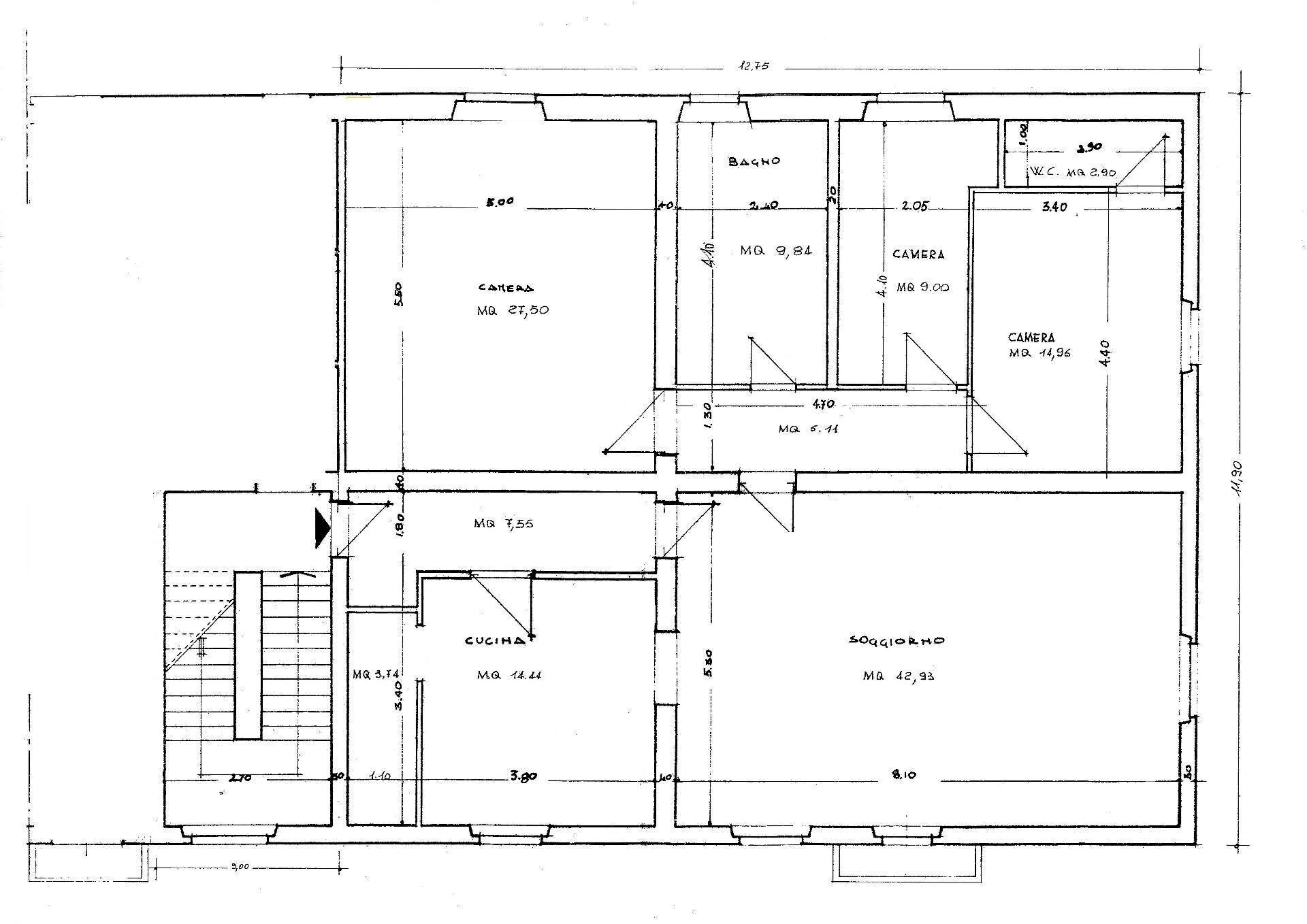
Situato al primo piano di una splendida villa, l'immobile si estende su una superficie totale di 175 metri quadrati, distribuiti in 5 locali, tra cui 3 camere da letto spaziose e luminose e 2 bagni moderni e ben rifiniti.
Grazie al suo layout ben organizzato, l'appartamento offre ampi spazi per il relax e la convivialità, ideali per una famiglia o per chi desidera vivere in una casa di prestigio.L'immobile è dotato di un efficiente sistema di riscaldamento autonomo alimentato a metano, tramite un moderno impianto a radiatori, che garantisce un comfort termico ottimale durante tutto l'anno.
La villa si presenta in ottimo stato di conservazione, grazie anche all'utilizzo di infissi e finestre con vetro camera, che garantiscono un'ottima efficienza energetica e un'ottima insonorizzazione.La casa dispone anche di un sistema di allarme già installato, per garantire la massima sicurezza e tranquillità ai suoi abitanti.
L'appartamento viene venduto arredato, con una cucina abitabile in stile rustico e completamente attrezzata, perfetta per preparare deliziosi pasti da gustare con la famiglia o con gli amici. La proprietà gode anche di un ampio giardino comune, ideale per trascorrere momenti all'aria aperta in totale relax e privacy.
Inoltre, è presente un box auto singolo e un posto auto scoperto, per parcheggiare comodamente i propri mezzi.In sintesi, questa affascinante soluzione abitativa in villa rappresenta una vera e propria oasi di pace e bellezza, perfetta per chi desidera un'abitazione di lusso e di prestigio, in una zona residenziale immersa nel verde e a pochi passi dai principali servizi e comodità.
Non esitare a contattarci per maggiori informazioni e per prenotare una visita a questo splendido immobile.
Situato al primo piano di una splendida villa, l'immobile si estende su una superficie totale di 175 metri quadrati, distribuiti in 5 locali, tra cui 3 camere da letto spaziose e luminose e 2 bagni moderni e ben rifiniti.
Grazie al suo layout ben organizzato, l'appartamento offre ampi spazi per il relax e la convivialità, ideali per una famiglia o per chi desidera vivere in una casa di prestigio.L'immobile è dotato di un efficiente sistema di riscaldamento autonomo alimentato a metano, tramite un moderno impianto a radiatori, che garantisce un comfort termico ottimale durante tutto l'anno.
La villa si presenta in ottimo stato di conservazione, grazie anche all'utilizzo di infissi e finestre con vetro camera, che garantiscono un'ottima efficienza energetica e un'ottima insonorizzazione.La casa dispone anche di un sistema di allarme già installato, per garantire la massima sicurezza e tranquillità ai suoi abitanti.
L'appartamento viene venduto arredato, con una cucina abitabile in stile rustico e completamente attrezzata, perfetta per preparare deliziosi pasti da gustare con la famiglia o con gli amici. La proprietà gode anche di un ampio giardino comune, ideale per trascorrere momenti all'aria aperta in totale relax e privacy.
Inoltre, è presente un box auto singolo e un posto auto scoperto, per parcheggiare comodamente i propri mezzi.In sintesi, questa affascinante soluzione abitativa in villa rappresenta una vera e propria oasi di pace e bellezza, perfetta per chi desidera un'abitazione di lusso e di prestigio, in una zona residenziale immersa nel verde e a pochi passi dai principali servizi e comodità.
Non esitare a contattarci per maggiori informazioni e per prenotare una visita a questo splendido immobile.
Main data
| Reference | 1177 |
| Ad date | 15/05/2025 |
| Contract | Sale |
| Typology | Apartment |
| Surface | 175 m2 |
| Locals | 5 (3 bedrooms, 2 other), 2 bathrooms, kitchen habitable |
| Plan | 1 from 2 totals |
| Construction type | Signorile |
| Occupied | Free |
| Garage | Single |
| Number of parking spaces | 1 |
Costs
| Price | 320.000 € |
| Price per m2 | 1.829 €/m2 |
Energy efficiency
| Status | Excellent |
| Heating | Autonomous |
| Energy rating | G |
| Energy Performance Index (IPE) | 369 kWh/m2 year |
Floor plans
Address and map
Montespertoli
Ad without map,
try asking the advertiser for the position
try asking the advertiser for the position
Mortgage calculation
Selling price:
Advance
20,00
Mortgage
80,00
Rate: -+
Payment: 915 per month
The results are an indicative estimate based on the data entered and do not constitute a financial offer.
Advertiser

Ag. Imm. SERGIO MONTAGNANI
Via D. Alighieri, 40, Montespertoli
Show Phone
Show Mobile
Call
CONTACT

