Apartment Ascoli Piceno
€ 230.000
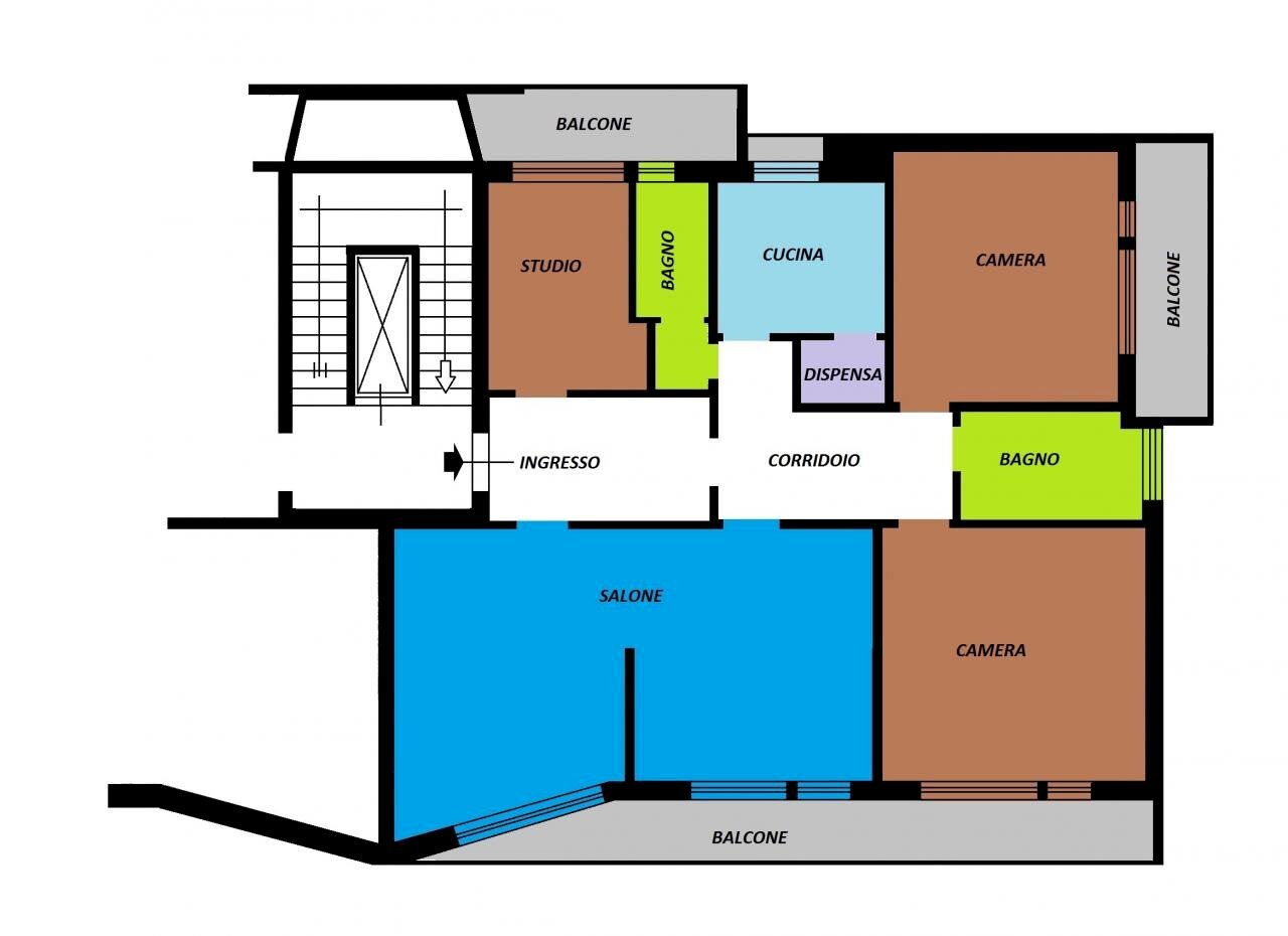
Ascoli Piceno, Campo Parignano appartamento di mq. 140.
La proprietà è disposta al piano terzo e ultimo in palazzina con ascensore e misura complessivamente 140 mq. circa oltre a balconi di mq. 27 circa e fondaco di mq. 10.
L' immobile si sviluppa su un unico livello ed è composta da ingresso su corridoio, ampio soggiorno, cucina, due camere matrimoniali, studio, due bagni, tre balconi e fondaco al piano S1.
Espsizione Nord - Est - Sud.
Posto auto condominiale.
La proprietà è disposta al piano terzo e ultimo in palazzina con ascensore e misura complessivamente 140 mq. circa oltre a balconi di mq. 27 circa e fondaco di mq. 10.
L' immobile si sviluppa su un unico livello ed è composta da ingresso su corridoio, ampio soggiorno, cucina, due camere matrimoniali, studio, due bagni, tre balconi e fondaco al piano S1.
Espsizione Nord - Est - Sud.
Posto auto condominiale.
Main data
| Reference | 1081 |
| Ad date | 15/05/2025 |
| Contract | Sale |
| Typology | Apartment |
| Surface | 165 m2 |
| Locals | more than 5 (2 bedrooms, 5 other), 2 bathrooms, kitchen habitable |
| Plan | 3 from 3 totals |
| Construction type | Signorile |
| Occupied | Free |
| Garage | Absent |
Costs
| Price | 230.000 € |
| Price per m2 | 1.394 €/m2 |
Energy efficiency
| Status | To be restored |
| Heating | Autonomous |
| Heating Power Type | Other |
| Energy rating | In the calculation phase |
Address and map
Ascoli Piceno
Ad without map,
try asking the advertiser for the position
try asking the advertiser for the position
Mortgage calculation
Selling price:
Advance
20,00
Mortgage
80,00
Rate: -+
Payment: 658 per month
The results are an indicative estimate based on the data entered and do not constitute a financial offer.
Advertiser

Immobiliare Cecco d'Ascoli
Piazza G. Matteotti, 15, Ascoli Piceno
Show Phone
Show Mobile
Immobiliare Cecco d'Ascoli
Call
CONTACT