Rustic Contrada Petrella / Sant'Egidio snc, Ripatransone
€ 500.000
Casale colonico disposto su due livelli per complessivi 260 m² circa, situato in splendida posizione panoramica con vista sul mare e sulle colline marchigiane.
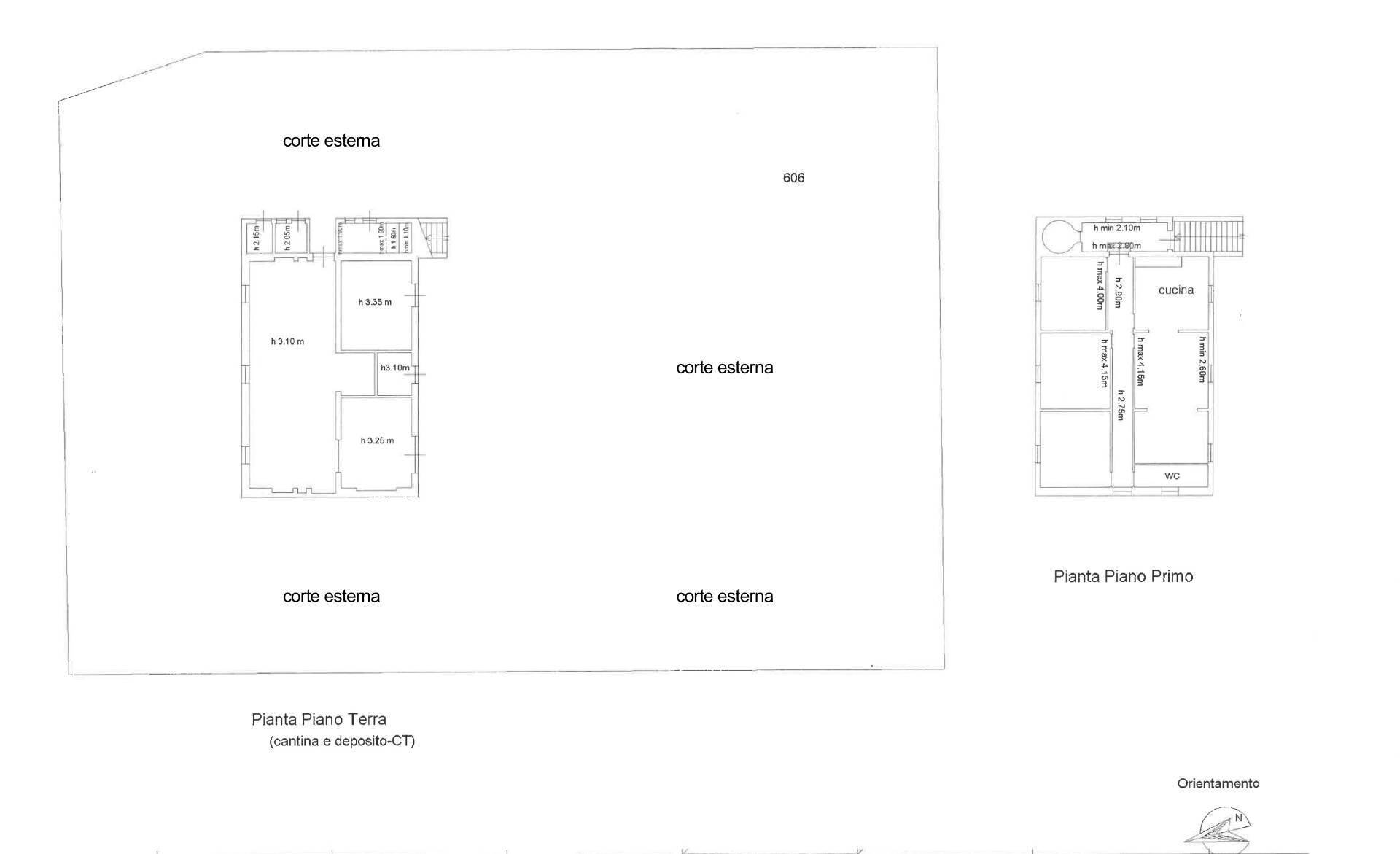
Al piano terra (circa 130 m²) si trovano i locali un tempo adibiti a stalle, rimessa attrezzi agricoli e cantine, spazi oggi perfetti per essere recuperati e trasformati secondo le proprie esigenze.
Una tipica scala esterna marchigiana conduce al piano primo, anchesso di 130 m² circa, a destinazione abitativa, composto da ingresso, ampio soggiorno, cucina abitabile, quattro camere da letto, bagno e loggetta esterna con forno.
Ledificio, libero su quattro lati, presenta struttura portante in muratura e tetto con travi in legno originali; si trova in condizioni complessivamente da ristrutturare, sia internamente che esternamente, offrendo tuttavia uneccellente base per un recupero autentico nel rispetto della tradizione rurale marchigiana.
A completare la proprietà, un terreno circostante di oltre 13.000 m², in parte recintato, con vegetazione boschiva e alcune piante da frutto.
La posizione è facilmente accessibile grazie alla strada provinciale asfaltata che arriva fino al cancello dingresso: un contesto tranquillo, ma non isolato, nella prima collina a breve distanza dal mare.
Soluzione ideale per chi desidera una residenza immersa nella natura, oppure per chi vuole realizzare una struttura ricettiva di charme nel cuore della campagna marchigiana.
Al piano terra (circa 130 m²) si trovano i locali un tempo adibiti a stalle, rimessa attrezzi agricoli e cantine, spazi oggi perfetti per essere recuperati e trasformati secondo le proprie esigenze.
Una tipica scala esterna marchigiana conduce al piano primo, anchesso di 130 m² circa, a destinazione abitativa, composto da ingresso, ampio soggiorno, cucina abitabile, quattro camere da letto, bagno e loggetta esterna con forno.
Ledificio, libero su quattro lati, presenta struttura portante in muratura e tetto con travi in legno originali; si trova in condizioni complessivamente da ristrutturare, sia internamente che esternamente, offrendo tuttavia uneccellente base per un recupero autentico nel rispetto della tradizione rurale marchigiana.
A completare la proprietà, un terreno circostante di oltre 13.000 m², in parte recintato, con vegetazione boschiva e alcune piante da frutto.
La posizione è facilmente accessibile grazie alla strada provinciale asfaltata che arriva fino al cancello dingresso: un contesto tranquillo, ma non isolato, nella prima collina a breve distanza dal mare.
Soluzione ideale per chi desidera una residenza immersa nella natura, oppure per chi vuole realizzare una struttura ricettiva di charme nel cuore della campagna marchigiana.
Main data
| Reference | 33676 |
| Ad date | 11/10/2025 |
| Contract | Sale |
| Typology | Rustic |
| Surface | 260 m2 |
| Locals | more than 5 (4 bedrooms, 6 other), 2 bathrooms, kitchen habitable |
| Plan | Entire building, 2 totals |
| Occupied | Free |
| Garage | Double |
| Number of parking spaces | 3 |
Costs
| Price | 500.000 € |
| Price per m2 | 1.923 €/m2 |
Energy efficiency
| Status | To be restored |
| Heating | Absent |
| Heating Power Type | Other |
| Energy rating | G |
| Energy Performance Index (IPE) | - |
Floor plans
Address and map
Contrada Petrella / Sant'Egidio
snc, Ripatransone
Ad without map,
try asking the advertiser for the position
try asking the advertiser for the position
Mortgage calculation
Selling price:
Advance
20,00
Mortgage
80,00
Rate: -+
Payment: 1.430 per month
The results are an indicative estimate based on the data entered and do not constitute a financial offer.
Advertiser

Spina & Marchei
Viale De Gasperi 113, San Benedetto del Tronto
Show Phone
Show Mobile
Spina Giovanni
Show Phone
Call
CONTACT

