Villa strada carpice 15, Moncalieri
€ 95.000
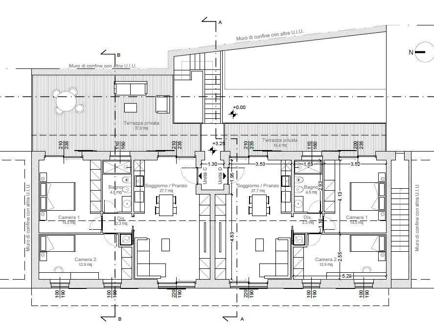
Proponiamo in Vendita porzione di Fabbricato attualmente censito come C2 con possibilità di cambio destinazione d'uso in Abitazione. Attualmente è stato presentato un progetto di fattibilità con esito positivo per la realizzazione di 4 unità abitative composte da Soggiorno con cucina a vista due camere e bagno servite da giardino o terrazzo. Il prezzo proposto è per l'immobile nello stato di fatto con lo studio di fattibilità. E' possibile valutare anche la realizzazione di unifamiliare o bifamiliare. Per ulteriori informazioni o sti di fattibilità potete contattarci.
Main data
| Reference | CBI164-2527-57 |
| Ad date | 09/10/2025 |
| Contract | Sale |
| Typology | Villa |
| Surface | 315 m2 |
| Locals | more than 5 (12 other) |
| Occupied | Free |
Costs
| Price | 95.000 € |
| Price per m2 | 302 €/m2 |
Energy efficiency
| Heating Power Type | Other |
| Energy rating | Property exempt from energy certification |
Floor plans
Address and map
strada carpice
15, Moncalieri
Ad without map,
try asking the advertiser for the position
try asking the advertiser for the position
Mortgage calculation
Selling price:
Advance
20,00
Mortgage
80,00
Rate: -+
Payment: 272 per month
The results are an indicative estimate based on the data entered and do not constitute a financial offer.
Advertiser
Call
CONTACT


