Commercial Premises Frazione Madonna della Neve 38, Clavesana
€ 99.000
CLAVESANA (CN) Nel cuore delle Langhe, storico locale commerciale con terreno edificabileNel centro di Clavesana, nel cuore pulsante delle Langhe e a pochi passi dalla rinomata Cantina Sociale, proponiamo in vendita un locale commerciale storicamente adibito a ristorante, pronto ad accogliere nuove idee e attività. Limmobile gode di ottima visibilità e si trova in zona di forte passaggio, ideale per chi cerca una location di prestigio e altamente strategica.
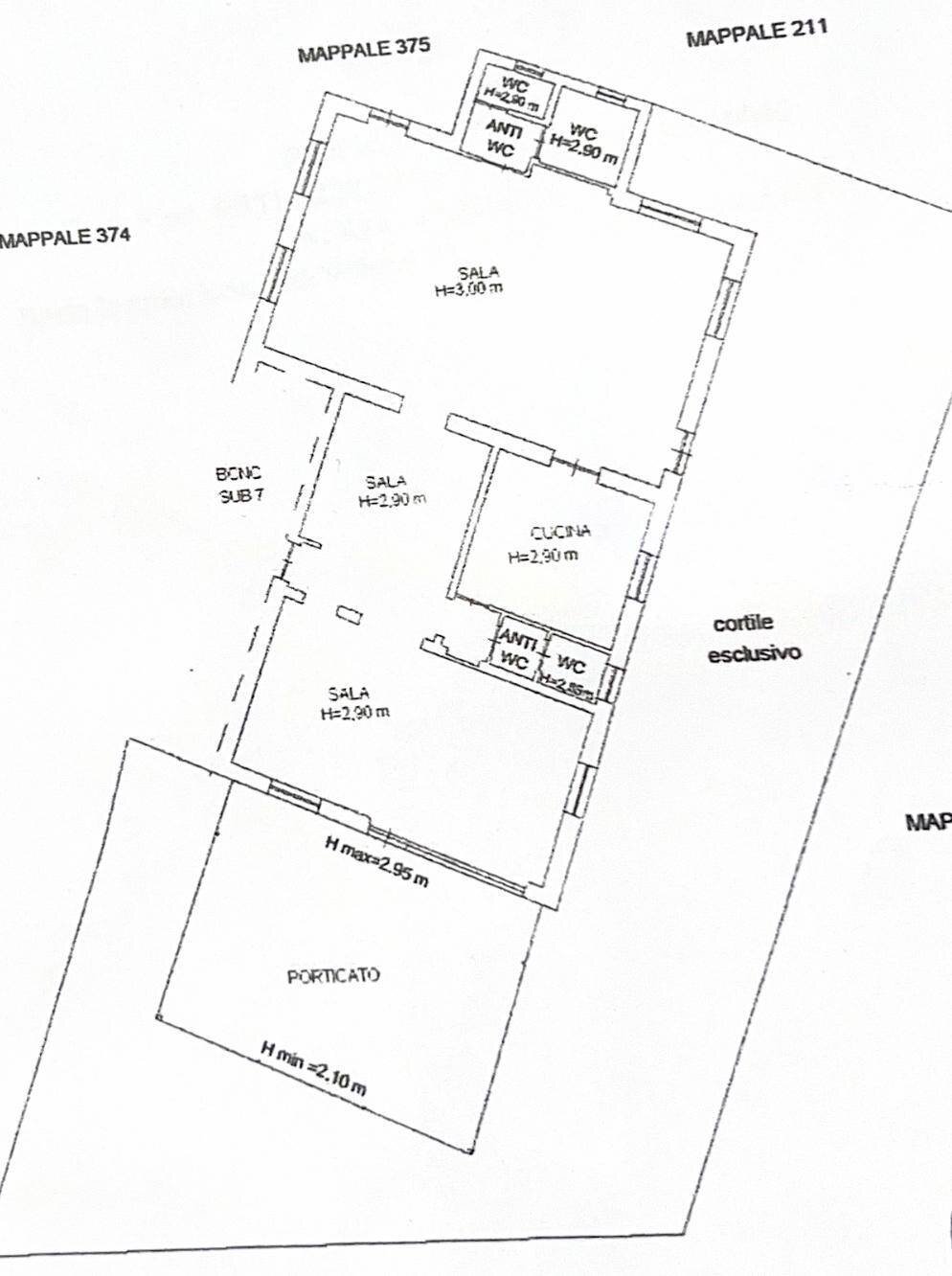
Il locale si sviluppa su più ambienti: allesterno, un dehor coperto di circa 40 mq introduce allingresso principale, dove troviamo una prima sala (perfetta come area bar), una seconda saletta accogliente, e infine un ampio salone principale, con accesso a due servizi igienici con antibagno.
La cucina professionale, collegata sia alla sala che allesterno, è dotata di servizio igienico privato.
Ristrutturato nel 2011, limmobile dispone di infissi in PVC con doppio vetro, impianto elettrico trifase nuovo, bagni e cucina rifatti secondo le normative vigenti.
Ma il vero valore aggiunto è sul retro: con accesso da strada privata, troviamo un terreno di proprietà di 840 mq, collegato internamente al locale, di cui 108 mq sono edificabili. Uno spazio versatile e ricco di potenzialità: parcheggi privati per i clienti, un dehor esclusivo immerso nel verde, unarea eventi allaperto o persino la possibilità di realizzare la propria abitazione accanto allattività.
Unoccasione unica per chi vuole investire in una delle zone più amate del Piemonte, tra turismo, enogastronomia e paesaggi mozzafiato. Contattaci ora per maggiori informazioni o per fissare una visita.
Il locale si sviluppa su più ambienti: allesterno, un dehor coperto di circa 40 mq introduce allingresso principale, dove troviamo una prima sala (perfetta come area bar), una seconda saletta accogliente, e infine un ampio salone principale, con accesso a due servizi igienici con antibagno.
La cucina professionale, collegata sia alla sala che allesterno, è dotata di servizio igienico privato.
Ristrutturato nel 2011, limmobile dispone di infissi in PVC con doppio vetro, impianto elettrico trifase nuovo, bagni e cucina rifatti secondo le normative vigenti.
Ma il vero valore aggiunto è sul retro: con accesso da strada privata, troviamo un terreno di proprietà di 840 mq, collegato internamente al locale, di cui 108 mq sono edificabili. Uno spazio versatile e ricco di potenzialità: parcheggi privati per i clienti, un dehor esclusivo immerso nel verde, unarea eventi allaperto o persino la possibilità di realizzare la propria abitazione accanto allattività.
Unoccasione unica per chi vuole investire in una delle zone più amate del Piemonte, tra turismo, enogastronomia e paesaggi mozzafiato. Contattaci ora per maggiori informazioni o per fissare una visita.
Main data
| Reference | 22 |
| Ad date | 08/10/2025 |
| Contract | Sale |
| Typology | Commercial Premises |
| Surface | 163 m2 |
| Locals | 4 (4 other), 2 bathrooms |
| Plan | Earth, 2 totals |
| Occupied | Free |
| Garage | Absent |
| Number of parking spaces | 10 |
| Furniture | Absent |
Costs
| Price | 99.000 € |
| Price per m2 | 607 €/m2 |
Energy efficiency
| Status | Good |
| Heating | Centralized |
| Energy rating | F |
| Energy Performance Index (IPE) | 165 kWh/m2 year |
Floor plans
Address and map
Frazione Madonna della Neve
38, Clavesana
Ad without map,
try asking the advertiser for the position
try asking the advertiser for the position
Mortgage calculation
Selling price:
Advance
20,00
Mortgage
80,00
Rate: -+
Payment: 283 per month
The results are an indicative estimate based on the data entered and do not constitute a financial offer.
Advertiser
Porta Immobiliare
Corso Luigi Einaudi 2, Carrù
Show Mobile
Call
CONTACT

