Terraced Villa via tufi vecchi 15, Arnesano
€ 200.000
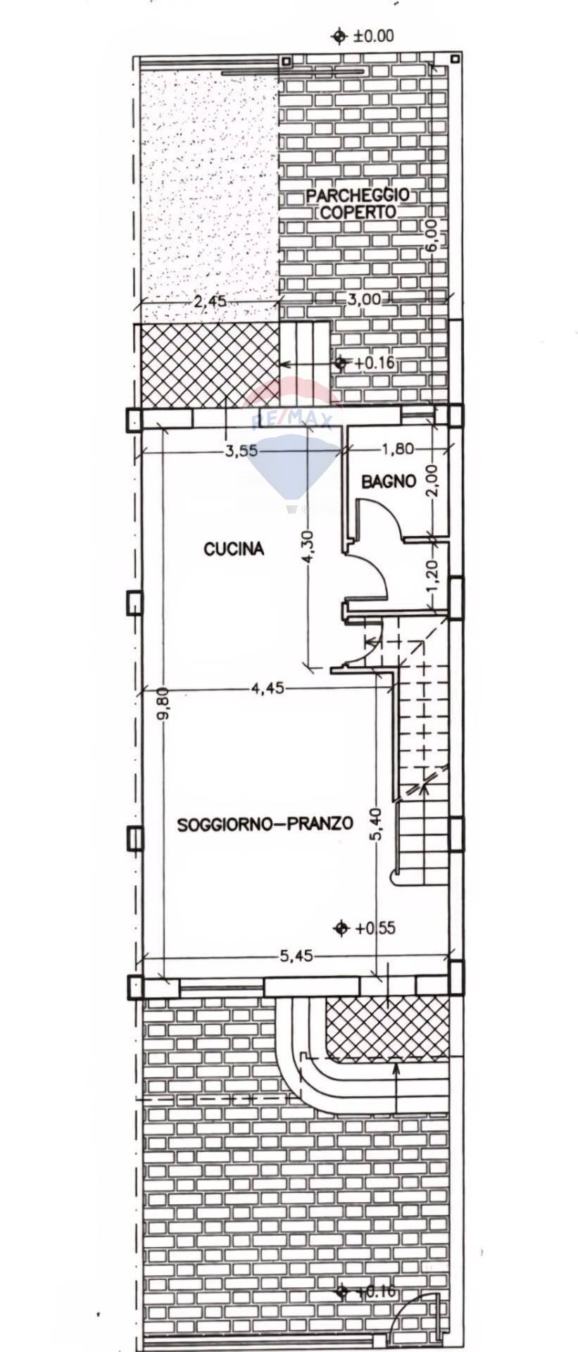
In una delle zone più ricercate di Arnesano, in via Tufi Vecchi 15, proponiamo in vendita una splendida villetta di recente costruzione, perfetta per chi desidera coniugare comfort moderno, efficienza energetica e tranquillità residenziale. Labitazione si sviluppa su due livelli più mansarda, offrendo spazi ben distribuiti e funzionali. Al piano terra accoglie unampia e luminosa zona living con accesso diretto al giardino, ideale per momenti di convivialità e relax. La proprietà è impreziosita da un doppio giardino, fronte e retro, che garantisce privacy e versatilità negli spazi esterni. La zona notte comprende tre camere da letto spaziose e due bagni, di cui uno dotato di vasca idromassaggio, perfetto per concedersi momenti di benessere. Completa la soluzione una mansarda che può essere sfruttata come studio, area hobby o ulteriore camera da letto. Tra i punti di forza, i pannelli fotovoltaici da 3 kW che assicurano risparmio energetico e sostenibilità. Questa villetta rappresenta unoccasione unica per chi cerca una casa accogliente, moderna e pronta da vivere, in un contesto tranquillo ma ben collegato a Lecce e alle principali vie di comunicazione. Unabitazione che racchiude stile, comfort ed efficienza: la soluzione ideale per famiglie e per chi desidera realizzare il sogno di vivere in un ambiente esclusivo e funzionale.
Main data
| Reference | 21260245-80 |
| Ad date | 07/10/2025 |
| Contract | Sale |
| Typology | Terraced Villa |
| Surface | 190 m2 |
| Locals | 4 (3 bedrooms, 1 other), 2 bathrooms, kitchen on sight |
| Plan | On several levels, 2 totals |
| Construction type | Average |
| Garage | Absent |
| Number of parking spaces | 1 |
Costs
| Price | 200.000 € |
| Price per m2 | 1.053 €/m2 |
Energy efficiency
| Status | Excellent |
| Heating | Autonomous |
| Energy rating | A1 |
Floor plans
Address and map
via tufi vecchi
15, Arnesano
Ad without map,
try asking the advertiser for the position
try asking the advertiser for the position
Mortgage calculation
Selling price:
Advance
20,00
Mortgage
80,00
Rate: -+
Payment: 572 per month
The results are an indicative estimate based on the data entered and do not constitute a financial offer.
Advertiser
Call
CONTACT


