Four-room apartment Montespertoli
€ 260.000
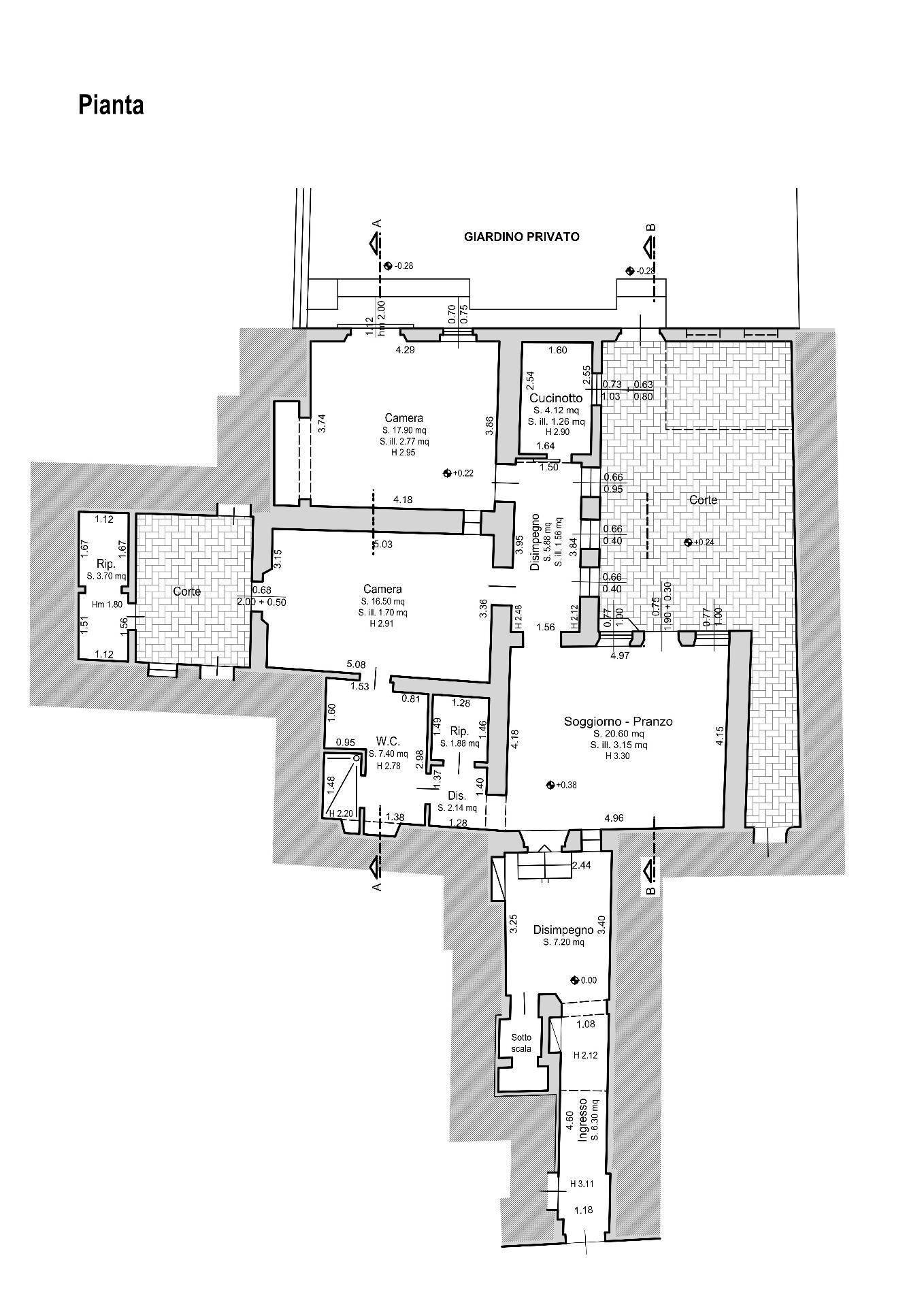
Rif. 1418 - Montespertoli centrale - Vendesi caratteristico appartamento al piano terreno in stile toscano della superficie di mq 100ca., comodo a tutti i servizi con accesso da ingresso esclusivo e composto da un soggiorno, un locale cucina separato, da due camere matrimoniali, da un bagno-wc con doccia, da un ripostiglio, da un sottoscala con attacchi per lavatrice e da un cortile in parte pavimentato ed in parte lasciato a giardino. Completa l' offerta anche un locale ad uso garage della superficie di mq 45 ca. Disponibile da subito.
Main data
| Reference | 1418 |
| Ad date | 07/10/2025 |
| Contract | Sale |
| Typology | Apartment |
| Surface | 100 m2 |
| Locals | 4 (2 bedrooms, 2 other), 1 bathroom, kitchen small kitchen |
| Plan | Earth, 1 totals |
| Occupied | Free |
| Garage | Double |
Costs
| Price | 260.000 € |
| Price per m2 | 2.600 €/m2 |
Energy efficiency
| Status | Excellent |
| Heating | Autonomous |
| Energy rating | G |
| Energy Performance Index (IPE) | 283 kWh/m2 year |
Floor plans
Address and map
Montespertoli
Ad without map,
try asking the advertiser for the position
try asking the advertiser for the position
Mortgage calculation
Selling price:
Advance
20,00
Mortgage
80,00
Rate: -+
Payment: 744 per month
The results are an indicative estimate based on the data entered and do not constitute a financial offer.
Advertiser

Ag. Imm. SERGIO MONTAGNANI
Via D. Alighieri, 40, Montespertoli
Show Phone
Show Mobile
Call
CONTACT

