Apartment Via Montesanvito, Siracusa
€ 190.000
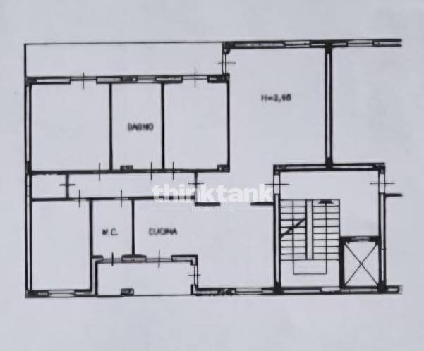
Appartamento ristrutturato in vendita a Siracusa, zona Epipoli Via Montesanvito In zona Epipoli a Siracusa, proponiamo in vendita un appartamento completamente ristrutturato e pronto per essere abitato, situato in Via Montesanvito. Limmobile si sviluppa su una superficie di 124 mq calpestabili, distribuiti in maniera funzionale per garantire comfort e vivibilità. La zona giorno si compone di un ampio e luminoso salone e di una spaziosa cucina abitabile, perfetta per chi desidera un ambiente accogliente e pratico. Un disimpegno conduce alla zona notte, organizzata con una camera matrimoniale, una cameretta e un bagno principale con vasca. Tutti questi ambienti, insieme al salone, si affacciano su un grande balcone panoramico che regala una vista spettacolare su tutta la città: da Ortigia e il suo mare cristallino fino al Santuario della Madonna delle Lacrime. Sul lato opposto del disimpegno si trovano un secondo bagno di servizio, uno studio e un ripostiglio, anchessi collegati a un ulteriore balcone con affaccio sul cortile interno, che dona ariosità e luce naturale agli ambienti. Lintero condominio è stato ristrutturato e dotato di pannelli fotovoltaici installati sul terrazzo, garantendo efficienza energetica e minori costi di gestione. A completare la proprietà vi sono: un garage di 23 mq con soppalco, fornito di luce e acqua (25.000) 2 posti auto interni al condominio, spazi condominiali comuni ben curati con accessi comodi da più vie. Questa è una soluzione abitativa ideale a Siracusa per chi cerca tranquillità, spazi moderni e ben distribuiti, senza rinunciare alla vicinanza con i principali servizi e al privilegio di una vista unica sul mare e sulla città.
Main data
| Reference | TTR101-1713 |
| Ad date | 06/10/2025 |
| Contract | Sale |
| Typology | Apartment |
| Surface | 130 m2 |
| Locals | 5 (3 bedrooms, 2 other), 2 bathrooms, kitchen habitable |
| Plan | 3 from 3 totals |
| Construction type | Average |
| Occupied | Free |
| Garage | Single |
| Number of parking spaces | 2 |
| Furniture | Absent |
Costs
| Price | 190.000 € |
| Price per m2 | 1.462 €/m2 |
Energy efficiency
| Status | Partially restored |
| Heating | Centralized |
| Heating System Type | by air |
| Heating Power Type | Photovoltaic |
| Energy rating | A1 |
Floor plans
Address and map
Via Montesanvito, Siracusa
Ad without map,
try asking the advertiser for the position
try asking the advertiser for the position
Mortgage calculation
Selling price:
Advance
20,00
Mortgage
80,00
Rate: -+
Payment: 543 per month
The results are an indicative estimate based on the data entered and do not constitute a financial offer.
Advertiser
Think Tank Realtor
Via Antioco 10, Siracusa
Show Phone
Show Mobile
Call
CONTACT

