Rustic via del Corvo, 15, hamlet Madonna dell'Olmo, Cuneo
€ 120.000Casa indipendente
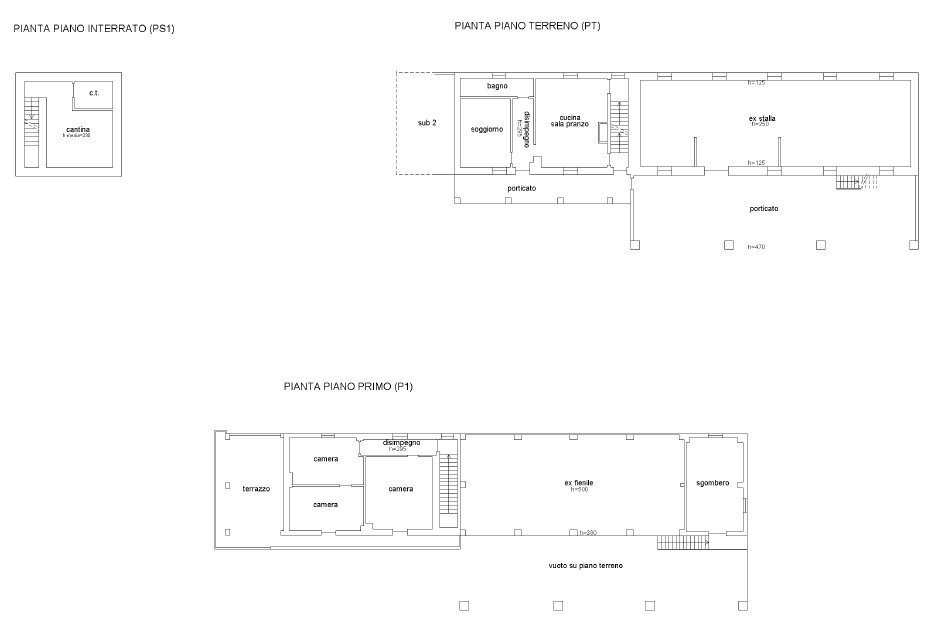
Cuneo, direzione Centallo, In zona rurale, comoda alla strada statale, casa indipendente di ampie dimensioni, da ristrutturare, disposta su due livelli con ampio cortile privato, cantina, ex stalla, ex fienile, garage, porticato e locali di sgombero di pertinenza, Ottima esposizione al sole. ------------------------------------------------------------------------------------------------------------------------------------------------------------------------------------------------------------------------------------------------------------------------------------------------------------------------------------------------------------------------------------------------------------------------------------------------------------------------------------------------------------------------------------------------------------ L’agenzia Cuneovalli Immobiliare, fondata nel 1989 da Ghibaudo Bernardo e gestita da sempre dalla famiglia Ghibaudo, pone a servizio della clientela professionalità e competenza, dettate dalla profonda conoscenza della materia e del territorio. L’agenzia, per soddisfare al meglio le esigenze del cliente, mette a disposizione forme pubblicitarie sempre aggiornate e mirate a onorare al meglio l’incarico affidatole. Per ottimizzare il servizio quest’ultima si informa costantemente sulle variazioni delle normative e si avvale, se necessario, della consulenza e della collaborazione di tecnici e professionisti competenti. Uno dei punti fermi della gestione è il voler proseguire una tradizione familiare in maniera seria e costruttiva.
Main data
| Reference | 582 |
| Ad date | 02/10/2025 |
| Contract | Sale |
| Typology | Rustic |
| Surface | 240 m2 |
| Locals | 5 (5 other), 1 bathroom, kitchen habitable |
| Plan | 1 totals |
| Construction type | Average |
| Number of terraces | 1 |
| Number of balconies | 1 |
| Garage | Double |
| Furniture | Absent |
Costs
| Price | 120.000 € |
| Price per m2 | 500 €/m2 |
Energy efficiency
| Status | To be restored |
| Heating | Autonomous |
| Energy rating | G |
| Energy Performance Index (IPE) | 288.18 kWh/m2 year |
Floor plans
Address and map
via del Corvo, 15, Cuneo - hamlets Madonna dell'Olmo
Mortgage calculation
Selling price:
Advance
20,00
Mortgage
80,00
Rate: -+
Payment: 343 per month
The results are an indicative estimate based on the data entered and do not constitute a financial offer.
Advertiser
Call
CONTACT


