Independent house Grottammare
€ 950.000
Palazzetto ristrutturato in centro a Grottammare, a pochi passi dal mare
Nel cuore del suggestivo centro di Grottammare, a soli pochi metri dalla spiaggia, proponiamo in vendita un palazzetto completamente ristrutturato con finiture moderne e impianti di ultima generazione, in classe energetica A3.
Limmobile si sviluppa su più livelli ed è composto da tre unità abitative indipendenti, vendibili sia in blocco che separatamente:
Piano Terra: bilocale con ingresso indipendente, ideale come residenza principale, casa vacanze o investimento per locazioni turistiche.
Primo Piano: bilocale luminoso con balconcino, perfetto per chi cerca comfort e praticità a due passi dal mare.
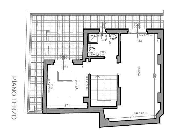
Secondo e Terzo Piano: appartamento su due livelli, con zona giorno al secondo piano e zona notte al terzo. Completa la proprietà un terrazzo abitabile, ideale per pranzi e cene allaperto con vista sul caratteristico centro storico.
Tutte le unità sono state oggetto di unaccurata ristrutturazione che ha valorizzato gli spazi interni, garantendo comfort, efficienza energetica e uno stile contemporaneo.
Posizione esclusiva: il palazzetto si trova nel centro di Grottammare, a brevissima distanza dal mare, dai servizi e dalle principali attrazioni turistiche.
Punti di forza:
Ristrutturazione completa (pari al nuovo)
Classe energetica A3
Tre unità abitative indipendenti
Possibilità di acquisto in blocco o separato
Posizione centrale e vicinanza al mare
Ascensore
Unopportunità unica sia per chi cerca una residenza esclusiva vicino al mare, sia per chi desidera un investimento con più soluzioni abitative.
ð Contattaci oggi stesso per maggiori informazioni e per fissare una visita!
Nel cuore del suggestivo centro di Grottammare, a soli pochi metri dalla spiaggia, proponiamo in vendita un palazzetto completamente ristrutturato con finiture moderne e impianti di ultima generazione, in classe energetica A3.
Limmobile si sviluppa su più livelli ed è composto da tre unità abitative indipendenti, vendibili sia in blocco che separatamente:
Piano Terra: bilocale con ingresso indipendente, ideale come residenza principale, casa vacanze o investimento per locazioni turistiche.
Primo Piano: bilocale luminoso con balconcino, perfetto per chi cerca comfort e praticità a due passi dal mare.
Secondo e Terzo Piano: appartamento su due livelli, con zona giorno al secondo piano e zona notte al terzo. Completa la proprietà un terrazzo abitabile, ideale per pranzi e cene allaperto con vista sul caratteristico centro storico.
Tutte le unità sono state oggetto di unaccurata ristrutturazione che ha valorizzato gli spazi interni, garantendo comfort, efficienza energetica e uno stile contemporaneo.
Posizione esclusiva: il palazzetto si trova nel centro di Grottammare, a brevissima distanza dal mare, dai servizi e dalle principali attrazioni turistiche.
Punti di forza:
Ristrutturazione completa (pari al nuovo)
Classe energetica A3
Tre unità abitative indipendenti
Possibilità di acquisto in blocco o separato
Posizione centrale e vicinanza al mare
Ascensore
Unopportunità unica sia per chi cerca una residenza esclusiva vicino al mare, sia per chi desidera un investimento con più soluzioni abitative.
ð Contattaci oggi stesso per maggiori informazioni e per fissare una visita!
Main data
| Reference | 758 |
| Ad date | 03/10/2025 |
| Contract | Sale |
| Typology | Independent house |
| Surface | 167 m2 |
| Locals | more than 5 (4 bedrooms, 3 other), 4 bathrooms, kitchen kitchenette |
| Plan | On several levels, 4 totals |
| Construction type | Signorile |
| Occupied | Free |
| Garage | Absent |
| Furniture | Absent |
Costs
| Price | 950.000 € |
| Price per m2 | 5.689 €/m2 |
Energy efficiency
| Status | Excellent |
| Heating | Autonomous |
| Heating System Type | on the floor |
| Heating Power Type | Electric |
| Energy rating | A3 |
Video
Address and map
Grottammare
Ad without map,
try asking the advertiser for the position
try asking the advertiser for the position
Mortgage calculation
Selling price:
Advance
20,00
Mortgage
80,00
Rate: -+
Payment: 2.717 per month
The results are an indicative estimate based on the data entered and do not constitute a financial offer.
Advertiser
Call
CONTACT


