Four-room apartment via Mameli 15, Gallarate
€ 149.000
La tua nuova casa di rappresentanza: ampio appartamento panoramico con terrazzi in contesto signorile
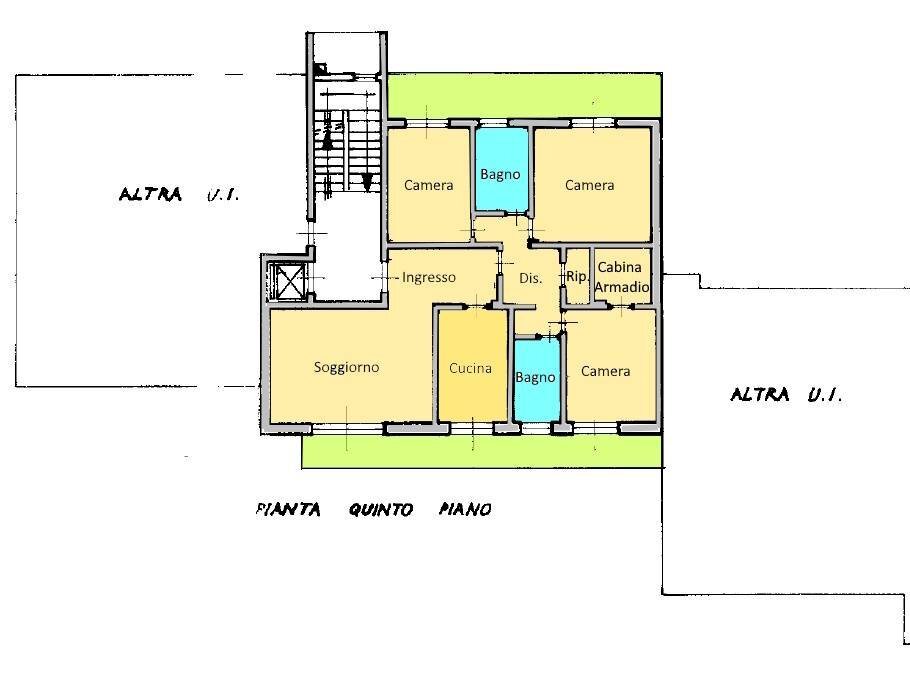
Immagina di rientrare a casa al quinto piano di un palazzo elegante, varcando la soglia di un appartamento di 130'¯m² che conserva tutto il fascino degli spazi generosi di un tempo. Qui, la luce inonda ogni stanza, i terrazzi corrono lungo tutta la facciata e il panorama ti regala una vista che cambia con le stagioni. È la sensazione di benessere che solo un piano alto può offrirti.
Un layout che invita a vivere e condividere
Lingresso accogliente si apre sulla zona giorno: un soggiorno ampio e luminoso in cui collocare un grande salotto o una sala da pranzo per ospitare amici e famiglia; la cucina separata regala privacy e funzionalità a chi ama cucinare senza invadere gli spazi comuni. La doppia esposizione dona unilluminazione naturale tutto il giorno, e i due terrazzi vivibili accessibili da ogni locale diventano estensioni della casa dove sorseggiare un caffè al mattino o rilassarsi la sera ammirando il paesaggio.
Spazi privati per il massimo comfort
Nella zona notte tre camere da letto generose permettono di creare ambienti per genitori, figli e ospiti senza compromessi. La cabina armadio e i due bagni assicurano ordine e praticità; il ripostiglio è ideale per custodire tutto ciò che vuoi tenere a portata di mano ma non in vista. Lappartamento necessita di un riammodernamento: unopportunità per trasformare questi spazi in una residenza moderna e raffinata, mantenendo il valore della grande metratura.
Servizi e comodità che fanno la differenza
Il condominio, curato e signorile, offre un riscaldamento centralizzato contabilizzato con ventilazione meccanica, pratico e funzionale. La proprietà comprende una cantina e due box singoli. La posizione è strategica per servizi, scuole e collegamenti: tutto è a portata di mano senza rinunciare alla tranquillità.
Perché questa casa fa per te
Piano alto e panoramico: luce naturale e vista aperta.
Terrazzi vivibili: perfetti per momenti di relax allaperto.
Contesto signorile: stabile elegante e ben curato.
Metratura generosa: 130'¯m² per vivere comodamente o rappresentare.
Centralità: vicinanza a servizi e trasporti.
Potenziale di valorizzazione: riammodernando gli interni puoi creare la casa dei tuoi sogni.
Prenota subito la tua visita
Unoccasione così rara merita di essere colta al volo. Contattaci immediatamente al 0331.985995 (anche via WhatsApp) per prenotare una visita e non rischiare che qualcun altro realizzi questo sogno prima di te. Ti risponderemo al più presto e potrai usufruire della nostra consulenza mutuo gratuita per valutare la soluzione finanziaria migliore. E se devi vendere la tua casa, chiamaci: la valutazione è gratuita e senza impegno. Vieni a trovarci in via Matteotti 66 a Solbiate Arno o visita il nostro sito www.piazzaaffariimmobiliare.it
per rimanere aggiornato sulle nostre proposte. Non lasciare che questa opportunità ti sfugga: chiama ora, è gratis!
Immagina di rientrare a casa al quinto piano di un palazzo elegante, varcando la soglia di un appartamento di 130'¯m² che conserva tutto il fascino degli spazi generosi di un tempo. Qui, la luce inonda ogni stanza, i terrazzi corrono lungo tutta la facciata e il panorama ti regala una vista che cambia con le stagioni. È la sensazione di benessere che solo un piano alto può offrirti.
Un layout che invita a vivere e condividere
Lingresso accogliente si apre sulla zona giorno: un soggiorno ampio e luminoso in cui collocare un grande salotto o una sala da pranzo per ospitare amici e famiglia; la cucina separata regala privacy e funzionalità a chi ama cucinare senza invadere gli spazi comuni. La doppia esposizione dona unilluminazione naturale tutto il giorno, e i due terrazzi vivibili accessibili da ogni locale diventano estensioni della casa dove sorseggiare un caffè al mattino o rilassarsi la sera ammirando il paesaggio.
Spazi privati per il massimo comfort
Nella zona notte tre camere da letto generose permettono di creare ambienti per genitori, figli e ospiti senza compromessi. La cabina armadio e i due bagni assicurano ordine e praticità; il ripostiglio è ideale per custodire tutto ciò che vuoi tenere a portata di mano ma non in vista. Lappartamento necessita di un riammodernamento: unopportunità per trasformare questi spazi in una residenza moderna e raffinata, mantenendo il valore della grande metratura.
Servizi e comodità che fanno la differenza
Il condominio, curato e signorile, offre un riscaldamento centralizzato contabilizzato con ventilazione meccanica, pratico e funzionale. La proprietà comprende una cantina e due box singoli. La posizione è strategica per servizi, scuole e collegamenti: tutto è a portata di mano senza rinunciare alla tranquillità.
Perché questa casa fa per te
Piano alto e panoramico: luce naturale e vista aperta.
Terrazzi vivibili: perfetti per momenti di relax allaperto.
Contesto signorile: stabile elegante e ben curato.
Metratura generosa: 130'¯m² per vivere comodamente o rappresentare.
Centralità: vicinanza a servizi e trasporti.
Potenziale di valorizzazione: riammodernando gli interni puoi creare la casa dei tuoi sogni.
Prenota subito la tua visita
Unoccasione così rara merita di essere colta al volo. Contattaci immediatamente al 0331.985995 (anche via WhatsApp) per prenotare una visita e non rischiare che qualcun altro realizzi questo sogno prima di te. Ti risponderemo al più presto e potrai usufruire della nostra consulenza mutuo gratuita per valutare la soluzione finanziaria migliore. E se devi vendere la tua casa, chiamaci: la valutazione è gratuita e senza impegno. Vieni a trovarci in via Matteotti 66 a Solbiate Arno o visita il nostro sito www.piazzaaffariimmobiliare.it
per rimanere aggiornato sulle nostre proposte. Non lasciare che questa opportunità ti sfugga: chiama ora, è gratis!
Main data
| Reference | GAQL01 |
| Ad date | 01/10/2025 |
| Contract | Sale |
| Typology | Apartment |
| Surface | 144 m2 |
| Locals | 4 (3 bedrooms, 1 other), 2 bathrooms, kitchen semi habitable |
| Plan | 5 from 6 totals |
| Construction type | Signorile |
| Occupied | Free |
| Garage | Double |
| Furniture | Absent |
Costs
| Price | 149.000 € |
| Price per m2 | 1.035 €/m2 |
Energy efficiency
| Status | To be restored |
| Heating | Semi-autonomous |
| Heating System Type | by air |
| Energy rating | F |
| Energy Performance Index (IPE) | - |
Floor plans
Address and map
via Mameli
15, Gallarate
Ad without map,
try asking the advertiser for the position
try asking the advertiser for the position
Mortgage calculation
Selling price:
Advance
20,00
Mortgage
80,00
Rate: -+
Payment: 426 per month
The results are an indicative estimate based on the data entered and do not constitute a financial offer.
Advertiser

Piazza Affari Immobiliare
Via Matteotti 66, Solbiate Arno
Show Phone
Show Mobile
Call
CONTACT

