Independent house VIA DELL'OLIO 14, Laterina Pergine Valdarno
€ 160.000
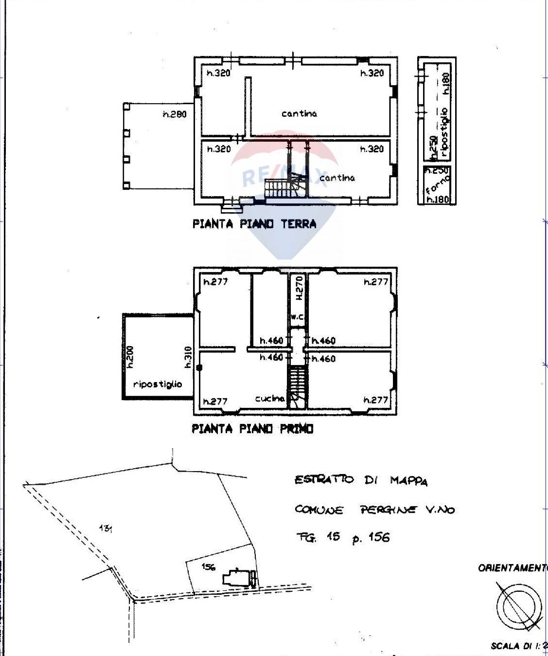
REMAX IDEALE PROPONE Casa Indipendente in Pietra Pergine Valdarno (AR) Superficie: circa 250 mq Posizione: Via dellOlio, 14 - immersa nel verde, a pochi minuti dal centro del paese. Incastonata tra le dolci colline toscane, a Pergine Valdarno, proponiamo in vendita una suggestiva casa indipendente in pietra di circa 250 mq, disposta su due livelli e circondata dal verde. Al piano terra, un tempo cuore pulsante dell'attività contadina, si trovano le vecchie stalle, ancora caratterizzate dalle mangiatoie originali e da ambienti dove fino a poco tempo fa si producevano vino e olio. Uno spazio affascinante e ricco di storia, ideale per essere trasformato in taverna, atelier o zona relax, mantenendo intatto il legame con il passato. Un'ampia scala interna in pietra conduce al piano superiore, dove si apre labitazione vera e propria. Qui troviamo una grande cucina con focolare, cuore conviviale della casa, perfetta per riscoprire il calore dellautentica vita toscana. Caratteristiche principali: Casa in pietra originale Circa 250 mq su due livelli Ampi spazi rustici al piano terra Grande cucina con focolare in stile tradizionale toscano 2 camere matrimoniali con doppia finestra 1 cameretta 1 bagno Ampio salone luminoso con due finestre panoramiche sul verde circostante Immersa nella natura, ma non isolata Grande potenziale di ristrutturazione e valorizzazione Esterni e annessi: Allesterno si trova un altro volume con forno a legna e locale deposito, perfetto per chi desidera trasformarlo in cucina rustica, dependance o spazio creativo. Il terreno adiacente, ampio e ben esposto, è già coltivato a vigna e oliveto ideale per chi sogna di produrre olio o vino per uso personale, avviare una piccola attività agricola, o semplicemente godersi la bellezza di un contesto rurale autentico. Stato e impianti: Tetto e solai consolidati con interventi strutturali effettuati circa venti anni fa Bagno e pavimenti al primo piano ristrutturati Impianto elettrico e idraulico presenti Assente impianto di riscaldamento, ma con possibilità di installazione a discrezione del nuovo proprietario Immobile da ristrutturare parzialmente, con grande potenziale di valorizzazione Posizione e distanze La casa si trova in zona tranquilla e verde, ma non isolata: Arezzo: 20 minuti Siena: 45 minuti Montevarchi / Valdarno: 30 minuti Buoni collegamenti con autostrada A1 e servizi principali Perché scegliere questa proprietà: Un'opportunità rara per chi cerca una residenza di charme, una seconda casa, casa vacanze, agriturismo, oppure come investimento per un progetto di ristrutturazione con carattere, o un progetto di recupero rurale con anima e storia, nel cuore della Toscana. Gradita collaborazione con altre agenzie. ______________________________________________ For Sale Independent Stone House Pergine Valdarno (AR) Surface area: approx. 250 sqm Location: Via dellOlio 14 surrounded by greenery, just minutes from the town center Nestled among the gentle hills of Tuscany, in Pergine Valdarno, we offer for sale a charming independent stone house of approximately 250 sqm, arranged over two levels and surrounded by nature. On the ground floor, once the vibrant heart of the rural life, are the former stables, still featuring their original stone mangers and rooms that, until recently, were used for the production of wine and olive oil. A fascinating and historically rich space, ideal to be transformed into a tavern, studio, or relaxation area, preserving the authentic character of the past. A wide internal stone staircase leads to the upper floor, where the main living area is located. Here, you'll find a spacious kitchen with a traditional fireplace, the true heart of the home perfect for enjoying the warmth of authentic Tuscan life. Key Features: Original stone construction Approx. 250 sqm over two floors Spacious rustic...
Main data
| Reference | 31451060-14 |
| Ad date | 01/10/2025 |
| Contract | Sale |
| Typology | Independent house |
| Surface | 254 m2 |
| Locals | more than 5 (3 bedrooms, 6 other), 1 bathroom, kitchen habitable |
| Plan | On several levels, 2 totals |
| Occupied | Free |
| Garage | Double |
| Number of parking spaces | 2 |
| Furniture | Absent |
Costs
| Price | 160.000 € |
| Price per m2 | 630 €/m2 |
Energy efficiency
| Status | To be restored |
| Heating | Absent |
| Heating Power Type | Other |
| Energy rating | G |
| Energy Performance Index (IPE) | 411 kWh/m2 year |
Floor plans
Address and map
VIA DELL'OLIO
14, Laterina Pergine Valdarno
Ad without map,
try asking the advertiser for the position
try asking the advertiser for the position
Mortgage calculation
Selling price:
Advance
20,00
Mortgage
80,00
Rate: -+
Payment: 458 per month
The results are an indicative estimate based on the data entered and do not constitute a financial offer.
Advertiser
Call
CONTACT


