Agriturismo contrada gaudiciello, Ariano Irpino
€ 40.000
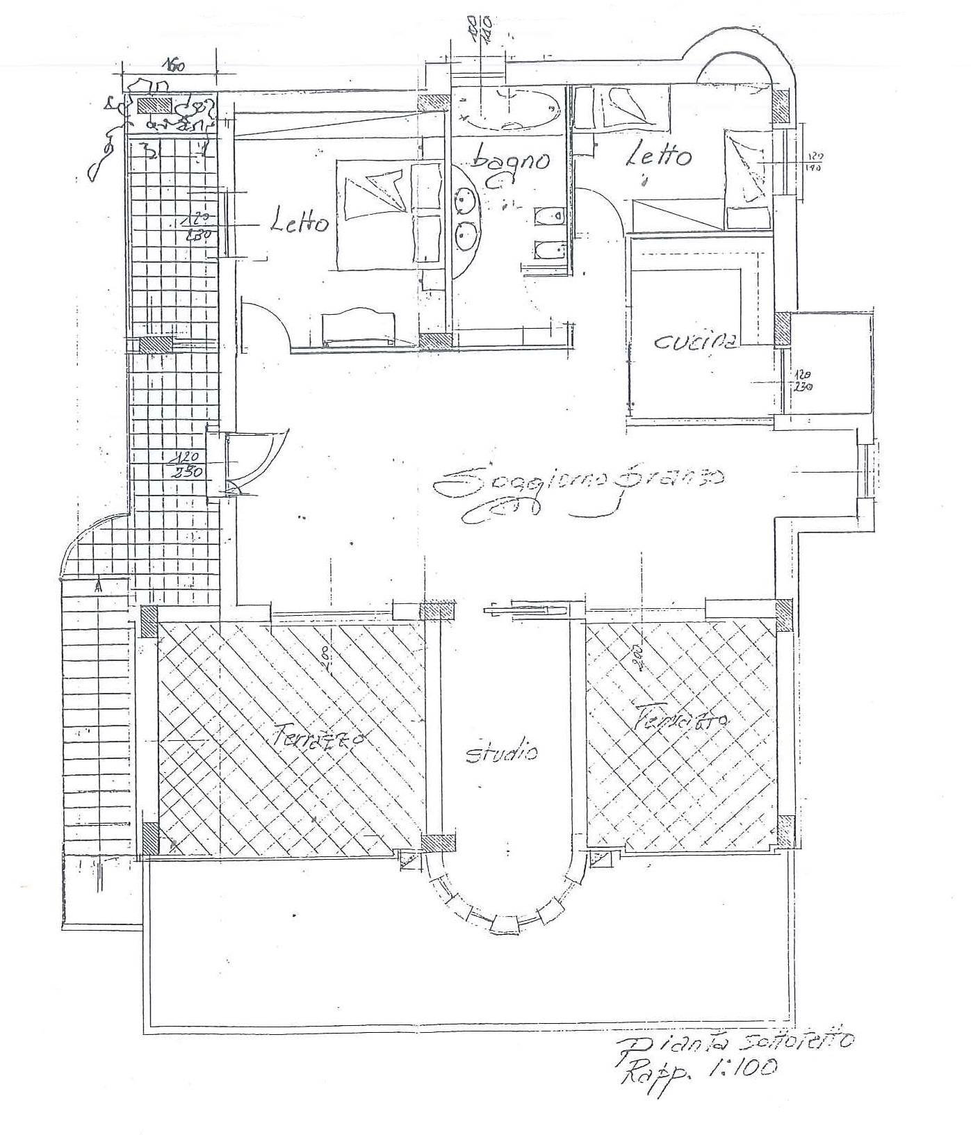
In zona residenziale ed immersa nel verde, La Real House Immobiliare propone in vendita un appartamento allo stato grezzo con ingresso indipendente.
L'immobile è posto al piano 2°, composto da: un unico ambiente non ancora diviso di circa 120 mq e due terrazzi.
OTTIMA ESPOSIZIONE.
L'immobile è posto al piano 2°, composto da: un unico ambiente non ancora diviso di circa 120 mq e due terrazzi.
OTTIMA ESPOSIZIONE.
Main data
| Reference | ar918 |
| Ad date | 01/10/2025 |
| Contract | Sale |
| Typology | Agriturismo |
| Surface | 125 m2 |
| Locals | 4 (3 bedrooms, 1 other), 1 bathroom, kitchen habitable |
| Plan | 2 from 2 totals |
| Construction type | Average |
| Occupied | Free |
| Furniture | Absent |
Costs
| Price | 40.000 € |
| Price per m2 | 320 €/m2 |
Energy efficiency
| Heating | Absent |
| Heating Power Type | Other |
| Energy rating | Property exempt from energy certification |
Floor plans
Address and map
contrada gaudiciello, Ariano Irpino
Ad without map,
try asking the advertiser for the position
try asking the advertiser for the position
Mortgage calculation
Selling price:
Advance
20,00
Mortgage
80,00
Rate: -+
Payment: 114 per month
The results are an indicative estimate based on the data entered and do not constitute a financial offer.
Advertiser

Real House Immobiliare Srls
Piazza Pebliscito 15, Ariano Irpino
Show Phone
Show Mobile
Call
CONTACT

