Four-room apartment VIA PADOVA 353, Milano
€ 370.000
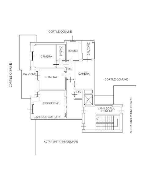
Fondocasa propone in vendita un ampio appartamento di quattro locali di circa 110 mq, situato al quinto piano di una palazzina signorile con ascensore e servizio di portineria attivo tutto il giorno.
L'immobile è composto da un comodo ingresso, un luminoso soggiorno con cucina a vista e accesso al primo grande balcone, un pratico ripostiglio, due spaziose camere da letto matrimoniali, una cameretta con accesso al secondo balcone e due bagni con box doccia (uno finestrato).
L'appartamento è dotato di serramenti in doppio vetro/PVC, porte interne in legno, pavimenti in gres porcellanato effetto legno, riscaldamento centralizzato con termovalvole e climatizzazione autonoma.
Completa la proprietà una cantina di circa 5 mq.
È disponibile la possibilità di acquistare separatamente un box singolo.
La posizione è strategica, a soli 5 minuti a piedi dalla fermata MM2 Cascina Gobba e ben servita dai mezzi pubblici. Nelle immediate vicinanze si trova l'Ospedale San Raffaele. Ideale per chi cerca una soluzione comoda per gli spostamenti e vicina ai servizi. Contattaci per maggiori informazioni e per fissare una visita al 0236687333 oppure via e-mail all'indirizzo [email protected].
L'immobile è composto da un comodo ingresso, un luminoso soggiorno con cucina a vista e accesso al primo grande balcone, un pratico ripostiglio, due spaziose camere da letto matrimoniali, una cameretta con accesso al secondo balcone e due bagni con box doccia (uno finestrato).
L'appartamento è dotato di serramenti in doppio vetro/PVC, porte interne in legno, pavimenti in gres porcellanato effetto legno, riscaldamento centralizzato con termovalvole e climatizzazione autonoma.
Completa la proprietà una cantina di circa 5 mq.
È disponibile la possibilità di acquistare separatamente un box singolo.
La posizione è strategica, a soli 5 minuti a piedi dalla fermata MM2 Cascina Gobba e ben servita dai mezzi pubblici. Nelle immediate vicinanze si trova l'Ospedale San Raffaele. Ideale per chi cerca una soluzione comoda per gli spostamenti e vicina ai servizi. Contattaci per maggiori informazioni e per fissare una visita al 0236687333 oppure via e-mail all'indirizzo [email protected].
Main data
| Reference | PADOVA353 |
| Ad date | 27/09/2025 |
| Contract | Sale |
| Typology | Apartment |
| Surface | 108 m2 |
| Locals | 4 (3 bedrooms, 1 other), 2 bathrooms, kitchen on sight |
| Plan | 5 from 6 totals |
| Garage | Absent |
| Furniture | Absent |
Costs
| Price | 370.000 € |
| Price per m2 | 3.426 €/m2 |
Energy efficiency
| Status | Excellent |
| Heating | Centralized |
| Energy rating | A3 |
Floor plans
Address and map
VIA PADOVA
353, Milano
Ad without map,
try asking the advertiser for the position
try asking the advertiser for the position
Mortgage calculation
Selling price:
Advance
20,00
Mortgage
80,00
Rate: -+
Payment: 1.058 per month
The results are an indicative estimate based on the data entered and do not constitute a financial offer.
Advertiser
Call
CONTACT


