Terraced Villa Via Don Giorgio Canovi, Toano
€ 120.000Villa a schiera in vendita
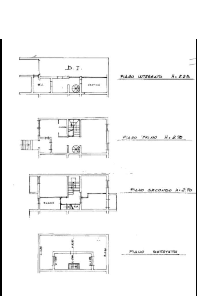
TOANO: In zona tranquilla a 400 mt. dal centro, villa a schiera di testa con piano di circa 80 mq. Composta da: Piano seminterrato: garage doppio lungo 12 ampia cantina e lavanderia/bagno; Piano rialzato Portico, ingresso, tinello, cucinotto, bagnetto sottoscala e soggiorno di 28 con portafinestra sul giardino privato di circa 80 Piano Primo, tre camere, bagno, due balconi e ripostiglio; Piano secondo: Mansarda di 16 con bagno e sottotetti. Area privata anche sul davanti. Costruzione originale del 1984, ma in buone condizioni e abitabile. Riscaldamento con radiatori a gas metano. Distanze: Cerredolo 8 km: Roteglia 20 Km, Sassuolo 31 Km.
Main data
| Reference | 61115108 |
| Ad date | 24/09/2025 |
| Contract | Sale |
| Typology | Terraced Villa |
| Surface | 235 m2 |
| Locals | 5 (4 bedrooms, 1 other), 4 bathrooms |
| Plan | 3 totals |
Costs
| Price | 120.000 € |
| Price per m2 | 511 €/m2 |
Energy efficiency
| Year built | 1983 |
| Heating | Autonomous |
| Heating Power Type | Methane |
| Energy rating | G |
| Energy performance index (EP GL, REN ) | 189 kWh/m3 year |
| Energy performance index (EP GL, NREN ) | 469 kWh/m3 year |
Floor plans
Address and map
Via Don Giorgio Canovi, Toano
Mortgage calculation
Selling price:
Advance
20,00
Mortgage
80,00
Rate: -+
Payment: 343 per month
The results are an indicative estimate based on the data entered and do not constitute a financial offer.
Advertiser
Call
CONTACT

