Three-room apartment via tasso, Savona
€ 160.000
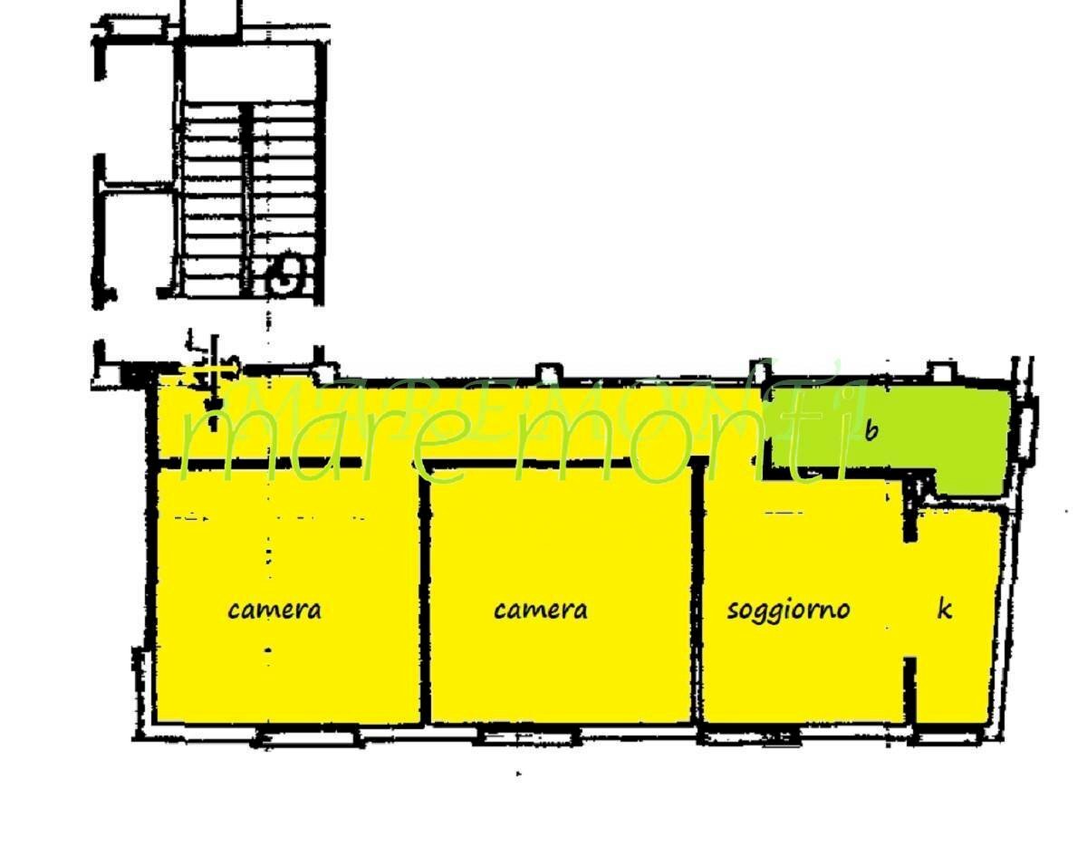
Savona, zona via collodi vendesi appartamento termo autonomo posto al 2° piano con ascensore, l'alloggio si compone di ingresso a corridoio, soggiorno con cucinotto, 2 ampie camere, bagno con doccia, in buone condizioni di manutenzione e infissi con vetro camera, completa l'offerta una ampio locale soffitta uso deposito posto al piano sottotetto. Per ulteriori informazioni o desiderate visitare l'immobile non indugiate a chiamarmi, massimo - ag. imm. mare monti - 3393681765, sarò lieto di potervi essere utile; per tutte le proposte potete visitare il sito liguriamaremonti.it l'indirizzo indicato sulla mappa è solamente rappresentativo della zona in cui è ubicato l'immobile. "le caratteristiche indicate in annuncio e nell'elenco non rappresentano vincolo contrattuale a possibile causa di errori anche dovuti ad importazione sui portali." eventuali planimetrie pubblicate sono puramente indicative, potrebbero essere non in proporzione e non in scala. ricerchiamo per nostra clientela appartamenti case indipendenti/semi rustici in zona savona e provincia
Main data
| Reference | 4089 |
| Ad date | 23/09/2025 |
| Contract | Sale |
| Typology | Apartment |
| Surface | 85 m2 |
| Locals | 3 (2 bedrooms, 1 other), 1 bathroom, kitchen small kitchen |
| Plan | 2 from 7 totals |
| Construction type | Average |
| Occupied | Free |
| Garage | Absent |
| Furniture | Complete |
Costs
| Price | 160.000 € |
| Price per m2 | 1.882 €/m2 |
Energy efficiency
| Status | Good |
| Heating | Autonomous |
| Energy rating | F |
| Energy Performance Index (IPE) | 130 kWh/m2 year |
Floor plans
Video
Address and map
via tasso, Savona
Ad without map,
try asking the advertiser for the position
try asking the advertiser for the position
Mortgage calculation
Selling price:
Advance
20,00
Mortgage
80,00
Rate: -+
Payment: 458 per month
The results are an indicative estimate based on the data entered and do not constitute a financial offer.
Advertiser

Agenzia Immobiliare Mare Monti di Rovere Massimo
via verzellino 43r, Savona
Show Phone
Show Mobile
Call
CONTACT

