Villa traversa di Via Cala Fonte, 6, Ponza
€ 550.000PONZA NUOVA COSTRUZIONE
Ponza, via Calacaparra. Proponiamo in vendita immobile di nuova costruzione. La casa disposta su unico livello si compone di soggiorno con angolo cottura, tre camere, due bagni, giardino e possibilità di realizzare una piscina con progetto già approvato. Per informazioni rivolgersi alla TIRRENO IMMOBILIARE con sede in Roma, Via della Frezza, 59. chiedere del RIF 296/FP . +39.063202270 . www.lecasediponza.it - www.agenziatirrenoimmobiiare.it
Main data
| Reference | 296/FP |
| Ad date | 18/09/2025 |
| Contract | Sale |
| Typology | Villa |
| Surface | 115 m2 |
| Locals | 4 (2 bedrooms, 2 other), 2 bathrooms, kitchen kitchenette |
| Plan | 1 totals |
| Construction type | Average |
| Garage | Absent |
| Number of parking spaces | 2 |
| Furniture | Absent |
Costs
| Price | 550.000 € |
| Price per m2 | 4.783 €/m2 |
Energy efficiency
| Status | New |
| Energy rating | G |
| Energy Performance Index (IPE) | 175 kWh/m2 year |
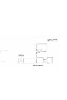
Floor plans
Address and map
traversa di Via Cala Fonte, 6, Ponza
Mortgage calculation
Selling price:
Advance
20,00
Mortgage
80,00
Rate: -+
Payment: 1.573 per month
The results are an indicative estimate based on the data entered and do not constitute a financial offer.
Advertiser

Tirreno Immobiliare
Piazza Pia 24, Anzio
Show Phone
Call
CONTACT

