

Villa via del Lavoro, Gallarate
€ 470.000Villa singola, unico piano, moderna, nel verde in classe A4
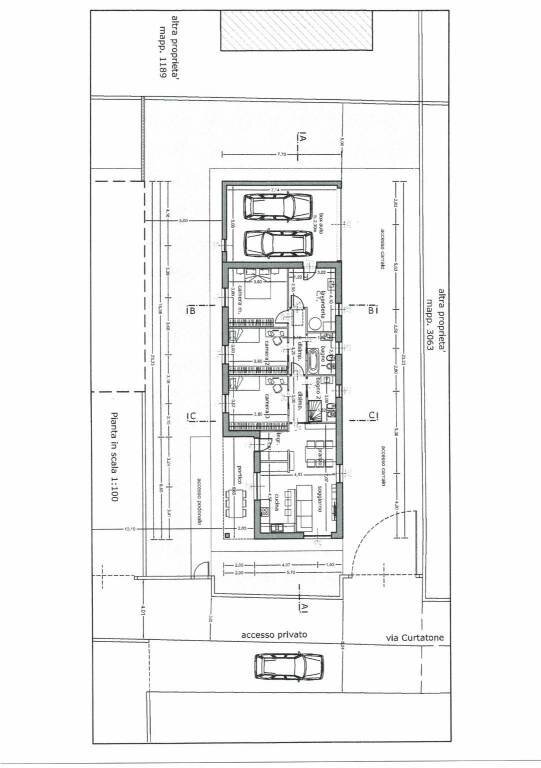
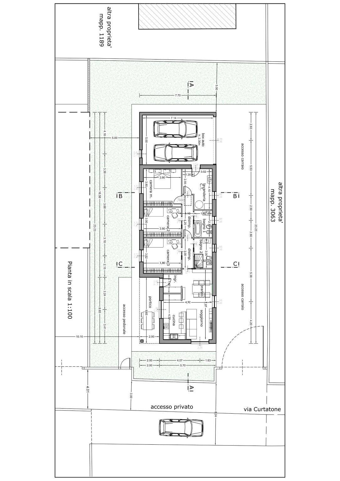
GALLARATE CASCINETTA in zona tranquilla nel verde, comoda per autostrade e servita di tutto, sono in fase di realizzazione due ville singole completamente indipendenti di cui una già venduta, con le più MODERNE TECNOLOGIE : pannelli fotovoltaici, riscaldamento a pavimento, pompa di calore, serramenti interni in Pvc, tapparelle motorizzate in alluminio, cappotto termico esterno, ventilazione meccanica che renderà l'aria pulita all'interno della casa, videocitofono antifurto ed antenna. La villa ha un giardino di mq.625 con ingresso carraio e pedonale tutta su un unico piano, composta da un ampio soggiorno pranzo con angolo cottura che si affacciano sul portico esterno, disimpegno, camera matrimoniale, due altre camere, bagno, locale centrale termica/lavanderia, mq.115 . Completa la proprietà box doppio in larghezza di mq.40 con basculante motorizzata. In questa fase è possibile effettuare eventuali varianti adattandole alle vostre esigenze. CONTATTATECI PER MAGGIORI INFORMAZIONI O ANCOR MEGLIO FISSARE UN APPUNTAMENTO IN CANTIERE. Cl. A4 - I.p.e 35,00 . € 470.000,00
Main data
| Reference | 3057 |
| Ad date | 17/09/2025 |
| Contract | Sale |
| Typology | Villa |
| Surface | 155 m2 |
| Locals | 4 (3 bedrooms, 1 other), 2 bathrooms, kitchen kitchenette |
| Plan | 2 totals |
| Construction type | Luxury |
| Number of terraces | 1 |
| Garage | Double |
| Number of parking spaces | 2 |
| Furniture | Absent |
Costs
| Price | 470.000 € |
| Price per m2 | 3.032 €/m2 |
Energy efficiency
| Year built | 2026 |
| Status | New |
| Heating | Autonomous |
| Energy rating | A4 |
Floor plans
Address and map
via del Lavoro, Gallarate
Mortgage calculation
Selling price:
Advance
20,00
Mortgage
80,00
Rate: -+
Payment: 1.344 per month
The results are an indicative estimate based on the data entered and do not constitute a financial offer.
Advertiser
Call
CONTACT
