Four-room apartment Via Popoli Uniti 24, Milano
€ 830.000
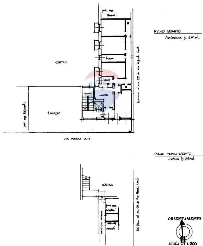
Vi proponiamo qui una opportunità davvero unica nel cuore di NoLo, North of Loreto,uno dei distretti piu auge e più ricercati e ambiti della città meneghina : UN ATTICO CON SPLENDIDO TERRAZZO AL PIANO. Per la precisione siamo in Via Popoli Uniti 24, a due passi dalla vivacissima e arcinota Piazzetta Arcobalena. L'immobile, unico nel pianerottolo, è sito al quarto e ultimo piano di una signorile palazzina con servizio portineria intera giornata e ascensore. L'appartamento presenta una superficie di 131 mq oltre a circa 120 mq di spazio esterno tra terrazzo e i tre balconi. La distribuzione interna è assolutamente perfetta con una divisione precisa tra zona giorno e zona notte. Lingresso si apre su un ampio e luminoso soggiorno, reso particolarmente arioso dalla presenza di una porta finestra e da due grandi finestre che affacciano direttamente sul terrazzo, garantendo un'eccellente illuminazione naturale. Adiacente al soggiorno si trova la cucina abitabile, dotata di accesso a un primo balcone, lo studio (utilizzabile anche come terza camera da letto) e un primo bagno di servizio dedicato alla zona giorno. Attraversando una porta che separa la zona notte, si percorre un comodo corridoio che conduce a due spaziose camere matrimoniali, entrambe con balcone privato affacciato sulla parte interna e riservata dello stabile, un bagno padronale finestrato con vasca e un ampio ripostiglio, attualmente adibito a cabina armadio. Dal soggiorno si accede al grande terrazzo piantumato, un vero e proprio spazio esclusivo che conferisce unicità all'immobile. L'area esterna si suddivide in due ambienti distinti: una zona pranzo allaperto, ombreggiata da tende da sole, e una seconda area versatile, da personalizzare in base alle proprie esigenzeche si tratti di unarea giochi per i più piccoli o di una zona relax attrezzata per momenti conviviali. Il terrazzo è servito da un impianto di irrigazione automatica e regala una vista impareggiabile sullo skyline di Milano: da Porta Nuova alla Torre Unicredit, dal Palazzo della Regione fino al celebre Bosco Verticale. L'immobile dispone di aria condizionata, serramenti in legno/alluminio con doppio vetro e riscaldamento centralizzato a radiatori. All'interno del cortile sono disponibili posti auto ( non assegnati) e posti per moto o biciclette. Su richiesta è disponibile un box auto a 50 metri dall'ingresso della abitazione. Completa l'immobile una cantina di pertinenza. La proprietà risulta essere libera al rogito, offrendo la massima flessibilità per il futuro acquirente. La zona è molto servita, a pochi passi troviamo tutti i servizi tra cui : scuole, supermercati, negozi di vicinato oltre all'ingresso della M1 rovereto a 50m e la fermata del tram 1. Ottimi i collegamenti per il trasporto: MM1, MM2 e MM3, molti i mezzi di superficie. Comodissima per la stazione Centrale, laeroporto di Milano Linate e lautostrada. Devi vendere un immobile? Contattaci! Facciamo parte del Network Immobiliare n.1 al Mondo e con le nostre agenzie e i nostri Consulenti affiliati saremo in grado di valorizzare al massimo il tuo immobile, seguendoti con professionalità ed impegno fino alla locazione alle migliori condizioni, con le migliori garanzie e le tempistiche più adatte alle tue esigenze. Ci trovi anche su Facebook e su Instagram, cerca le nostre pagine e seguici! Informazioni, immagini e video contenute in questo annuncio hanno scopo prettamente informativo e non costituiscono, in alcun caso, elemento contrattuale. APE - Classe Energetica G 360,65
Main data
| Reference | 37821001-64 |
| Ad date | 19/09/2025 |
| Contract | Sale |
| Typology | Apartment |
| Surface | 150 m2 |
| Locals | 4 (3 bedrooms, 1 other), 2 bathrooms, kitchen habitable |
| Plan | 4 from 4 totals |
| Construction type | Signorile |
| Occupied | Free |
| Garage | Single |
| Number of parking spaces | 1 |
| Furniture | Partial |
Costs
| Price | 830.000 € |
| Price per m2 | 5.533 €/m2 |
Energy efficiency
| Status | To be restored |
| Heating | Centralized |
| Energy rating | G |
| Energy Performance Index (IPE) | - |
Floor plans
Address and map
Via Popoli Uniti
24, Milano
Ad without map,
try asking the advertiser for the position
try asking the advertiser for the position
Mortgage calculation
Selling price:
Advance
20,00
Mortgage
80,00
Rate: -+
Payment: 2.374 per month
The results are an indicative estimate based on the data entered and do not constitute a financial offer.
Advertiser

RE/MAX Next
Viale Abruzzi, 92, Milano
Show Mobile
Call
CONTACT

