Villa Str. della Fornace, Cavriago
€ 550.000Villa singola in vendita
Nel cuore della campagna reggiana, a pochi minuti dal centro di Cavriago e a 15 km da Reggio Emilia, proponiamo in vendita un immobile completamente ristrutturato in classe A2 dalle svariate funzionalità.
Questa prestigiosa proprietà agricola si estende su una superficie significativa ed è composta da:
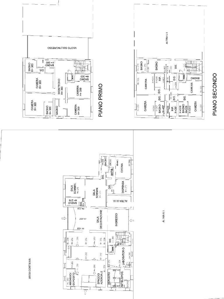
Agriturismo, piano terra dedicato ad attività di ristrorazione, degustazione e spaccio aziendale con cucina professionale e servizi. Piani superiori dedicati all'attività di B&B con 8 camere con bagno en suite.
2 ettari di vigneto, distribuiti attorno all'agriturismo, ideali per attività ricreative con clienti o vendita diretta.
2 appartamenti catastalmente separati, con ingresso indipendente ideali per essere messi a reddito, oppure come alloggio principale, composti da sala con angolo cottura, bagno finestrato e due camere da letto matrimoniali.
Spazi polifunzionali per eventi, degustazioni, conferenze e attività promozionali
Ampia area esterna con parcheggio e garages
2 chalet , in corpo staccato con ingresso indipendente, composti da salone, cucina abitabile, bagno finestrato e camera matrimoniale, con utenze autonome.La tenuta è stata oggetto di un attento intervento di riqualificazione architettonica, che ha saputo fondere materiali della tradizione rurale emiliana (come il mattone, il legno e il ferro battuto) con soluzioni moderne e funzionali.
Se desideri fissare una visita oppure ricevere maggiori maggiori informazioni non esitare a contattarci, altrimenti vieni a trovarci in agenzia a Cavriago in Via della Repubblica 41.
Questa prestigiosa proprietà agricola si estende su una superficie significativa ed è composta da:
Agriturismo, piano terra dedicato ad attività di ristrorazione, degustazione e spaccio aziendale con cucina professionale e servizi. Piani superiori dedicati all'attività di B&B con 8 camere con bagno en suite.
2 ettari di vigneto, distribuiti attorno all'agriturismo, ideali per attività ricreative con clienti o vendita diretta.
2 appartamenti catastalmente separati, con ingresso indipendente ideali per essere messi a reddito, oppure come alloggio principale, composti da sala con angolo cottura, bagno finestrato e due camere da letto matrimoniali.
Spazi polifunzionali per eventi, degustazioni, conferenze e attività promozionali
Ampia area esterna con parcheggio e garages
2 chalet , in corpo staccato con ingresso indipendente, composti da salone, cucina abitabile, bagno finestrato e camera matrimoniale, con utenze autonome.La tenuta è stata oggetto di un attento intervento di riqualificazione architettonica, che ha saputo fondere materiali della tradizione rurale emiliana (come il mattone, il legno e il ferro battuto) con soluzioni moderne e funzionali.
Se desideri fissare una visita oppure ricevere maggiori maggiori informazioni non esitare a contattarci, altrimenti vieni a trovarci in agenzia a Cavriago in Via della Repubblica 41.
Main data
| Reference | 61111966 |
| Ad date | 18/09/2025 |
| Contract | Sale |
| Typology | Villa |
| Surface | 1010 m2 |
| Locals | more than 5 (16 other), 13 bathrooms |
| Plan | 3 from 3 totals |
Costs
| Price | 550.000 € |
| Price per m2 | 545 €/m2 |
Energy efficiency
| Year built | 1985 |
| Heating | Autonomous |
| Heating Power Type | Methane |
| Energy rating | A2 |
Floor plans
Video
Address and map
Str. della Fornace, Cavriago
Mortgage calculation
Selling price:
Advance
20,00
Mortgage
80,00
Rate: -+
Payment: 1.573 per month
The results are an indicative estimate based on the data entered and do not constitute a financial offer.
Advertiser
Call
CONTACT

