Apartment C/so Kennedy 198, Chiaramonte Gulfi
€ 45.000
Spazioso appartamento situato a Chiaramonte Gulfi, ideale per chi desidera vivere in un'atmosfera tranquilla e accogliente.
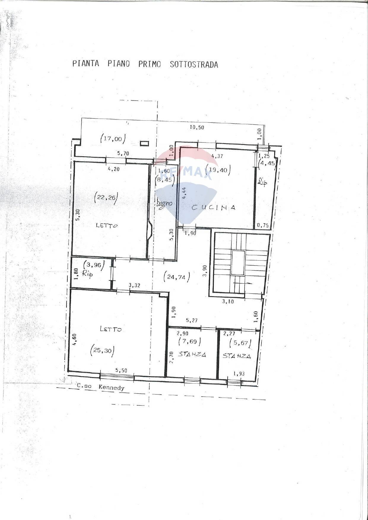
Situato al primo piano seminterrato di un edificio residenziale di quattro piani, l'immobile vanta una superficie totale di 147 calpestabili.
L'immobile è composto da una cucina, due camere da letto, un bagno, una lavanderia, un ripostiglio, e altre due stanze.
Ideali per ospitare comodamente una coppia o una famiglia.
E' presente un ampio balcone e una piccola veranda, da dove si può godere una vista panoramica.
La posizione strategica, vicina ai principali servizi e ben collegata con i mezzi pubblici, rende questo appartamento la scelta perfetta per chi cerca un'abitazione in un ambiente residenziale ma comodo per raggiungere il centro città.
Non esitare a contattarci per programmare una visita.
Situato al primo piano seminterrato di un edificio residenziale di quattro piani, l'immobile vanta una superficie totale di 147 calpestabili.
L'immobile è composto da una cucina, due camere da letto, un bagno, una lavanderia, un ripostiglio, e altre due stanze.
Ideali per ospitare comodamente una coppia o una famiglia.
E' presente un ampio balcone e una piccola veranda, da dove si può godere una vista panoramica.
La posizione strategica, vicina ai principali servizi e ben collegata con i mezzi pubblici, rende questo appartamento la scelta perfetta per chi cerca un'abitazione in un ambiente residenziale ma comodo per raggiungere il centro città.
Non esitare a contattarci per programmare una visita.
Main data
| Reference | 40001070-47 |
| Ad date | 17/09/2025 |
| Contract | Sale |
| Typology | Apartment |
| Surface | 148 m2 |
| Locals | 5 (2 bedrooms, 3 other), 1 bathroom, kitchen habitable |
| Plan | Basement, 4 totals |
| Occupied | Free |
| Garage | Absent |
Costs
| Price | 45.000 € |
| Price per m2 | 304 €/m2 |
Energy efficiency
| Status | Good |
| Heating | Autonomous |
| Heating Power Type | Other |
| Energy rating | G |
| Energy Performance Index (IPE) | - |
Floor plans
Address and map
C/so Kennedy
198, Chiaramonte Gulfi
Ad without map,
try asking the advertiser for the position
try asking the advertiser for the position
Mortgage calculation
Selling price:
Advance
20,00
Mortgage
80,00
Rate: -+
Payment: 129 per month
The results are an indicative estimate based on the data entered and do not constitute a financial offer.
Advertiser

RE/MAX Platinum 6
Via U. La Malfa, 47/49, Ragusa
Show Phone
Show Mobile
Call
CONTACT

