Four-room apartment Via Aquileia 43, Jesolo
€ 350.000
Realnova Immobiliare propone in vendita un luminoso e spazioso appartamento, nel cuore di Jesolo, a pochi passi dalla spiaggia e da Piazza Trieste.
Situato al sesto ed ultimo piano di un edificio ben curato, questo appartamento regala una sensazione di tranquillità e riservatezza, pur essendo in una delle zone più centrali e comode del lido. La posizione angolare e la tripla esposizione offrono una vista aperta che spazia da uno scorcio di mare alla laguna, rendendo latmosfera suggestiva in ogni momento della giornata.
Il condominio, recentemente oggetto di ristrutturazione esterna con rifacimento delle dipinture, è dotato di posto auto condominiale e impianto di riscaldamento centralizzato.
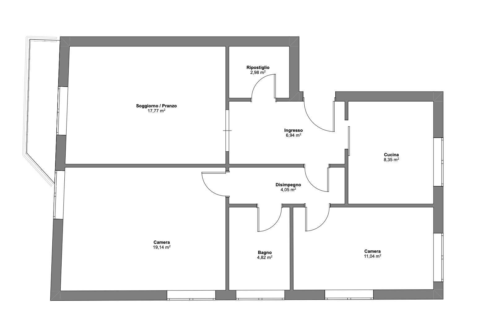
L'appartamento si apre su un ingresso funzionale che introduce a una zona giorno accogliente e ben distribuita, composta da un ampio soggiorno con pavimento in parquet, valorizzato da una grande porta finestra con accesso al terrazzo, che affaccia direttamente sul viale principale. La cucina abitabile, separata e completamente attrezzata, gode di una splendida vista mare e ospita comodamente un tavolo da pranzo. È dotata di forno, lavastoviglie e mobili capienti. A servizio della zona giorno troviamo anche un comodo ripostiglio/lavanderia, con attacchi per lavatrice e asciugatrice.
La zona notte, ben separata, si compone di:
una camera singola di circa 11 m², con doppi infissi e vista laterale con scorcio di mare, ideale come seconda camera o studio;
una camera matrimoniale molto ampia, di oltre 19 m², con doppia finestra e affaccio su due lati: uno rivolto a nord, laltro a ovest, da cui si gode una suggestiva vista verso la laguna;
un bagno finestrato, elegante e funzionale, dotato di vasca, mobile lavabo con ampio specchio, termoarredo e finiture curate.
Tra le dotazioni dellimmobile:
ripostiglio/lavanderia separato,
due split per laria condizionata, uno nella zona giorno e uno nel disimpegno,
porte in legno massello, soffitti alti e parquet nella zona giorno e nelle camere, mentre cucina e bagno sono rifiniti con pratico pavimento in gres.
Le spese condominiali si attestano attorno ai 90 euro mensili, a cui si aggiungono le spese per il riscaldamento, calcolate in base alla temperatura di comfort impostata dai residenti.
Lappartamento rappresenta una proposta ideale per famiglie, coppie o come investimento, grazie alla sua posizione centrale e servitissima, a pochi minuti a piedi dalla spiaggia, dai negozi, ristoranti e da tutti i principali servizi del litorale.
L'acquisto è soggetto a imposta di registro, con un vantaggioso risparmio rispetto allIVA prevista per le nuove costruzioni.
Non perdere questa opportunità unica! Contattaci oggi stesso per ricevere maggiori informazioni o per fissare una visita all'immobile.
Situato al sesto ed ultimo piano di un edificio ben curato, questo appartamento regala una sensazione di tranquillità e riservatezza, pur essendo in una delle zone più centrali e comode del lido. La posizione angolare e la tripla esposizione offrono una vista aperta che spazia da uno scorcio di mare alla laguna, rendendo latmosfera suggestiva in ogni momento della giornata.
Il condominio, recentemente oggetto di ristrutturazione esterna con rifacimento delle dipinture, è dotato di posto auto condominiale e impianto di riscaldamento centralizzato.
L'appartamento si apre su un ingresso funzionale che introduce a una zona giorno accogliente e ben distribuita, composta da un ampio soggiorno con pavimento in parquet, valorizzato da una grande porta finestra con accesso al terrazzo, che affaccia direttamente sul viale principale. La cucina abitabile, separata e completamente attrezzata, gode di una splendida vista mare e ospita comodamente un tavolo da pranzo. È dotata di forno, lavastoviglie e mobili capienti. A servizio della zona giorno troviamo anche un comodo ripostiglio/lavanderia, con attacchi per lavatrice e asciugatrice.
La zona notte, ben separata, si compone di:
una camera singola di circa 11 m², con doppi infissi e vista laterale con scorcio di mare, ideale come seconda camera o studio;
una camera matrimoniale molto ampia, di oltre 19 m², con doppia finestra e affaccio su due lati: uno rivolto a nord, laltro a ovest, da cui si gode una suggestiva vista verso la laguna;
un bagno finestrato, elegante e funzionale, dotato di vasca, mobile lavabo con ampio specchio, termoarredo e finiture curate.
Tra le dotazioni dellimmobile:
ripostiglio/lavanderia separato,
due split per laria condizionata, uno nella zona giorno e uno nel disimpegno,
porte in legno massello, soffitti alti e parquet nella zona giorno e nelle camere, mentre cucina e bagno sono rifiniti con pratico pavimento in gres.
Le spese condominiali si attestano attorno ai 90 euro mensili, a cui si aggiungono le spese per il riscaldamento, calcolate in base alla temperatura di comfort impostata dai residenti.
Lappartamento rappresenta una proposta ideale per famiglie, coppie o come investimento, grazie alla sua posizione centrale e servitissima, a pochi minuti a piedi dalla spiaggia, dai negozi, ristoranti e da tutti i principali servizi del litorale.
L'acquisto è soggetto a imposta di registro, con un vantaggioso risparmio rispetto allIVA prevista per le nuove costruzioni.
Non perdere questa opportunità unica! Contattaci oggi stesso per ricevere maggiori informazioni o per fissare una visita all'immobile.
Main data
| Reference | M114 |
| Ad date | 16/09/2025 |
| Contract | Sale |
| Typology | Apartment |
| Surface | 97 m2 |
| Locals | 4 (2 bedrooms, 2 other), 1 bathroom, kitchen habitable |
| Plan | Top floor, 6 totals |
| Construction type | Signorile |
| Occupied | Free |
| Garage | Absent |
| Number of parking spaces | 1 |
| Furniture | Partial |
Costs
| Price | 350.000 € |
| Price per m2 | 3.608 €/m2 |
| Heating Expenses | €80,00/year |
Energy efficiency
| Status | Good |
| Heating | Semi-autonomous |
| Energy rating | G |
| Energy Performance Index (IPE) | 327 kWh/m2 year |
Floor plans
Address and map
Via Aquileia
43, Jesolo
Ad without map,
try asking the advertiser for the position
try asking the advertiser for the position
Mortgage calculation
Selling price:
Advance
20,00
Mortgage
80,00
Rate: -+
Payment: 1.001 per month
The results are an indicative estimate based on the data entered and do not constitute a financial offer.
Advertiser

Realnova Immobiliare
Piazza Brescia 5, Jesolo
Show Phone
Show Mobile
Call
CONTACT

