Rustic Via Provinciale, Borghetto d'Arroscia
€ 195.000
Vendiamo grazioso rustico semi indipendente con giardino, a Borghetto d'Arroscia, fraz. Gavenola (Im)
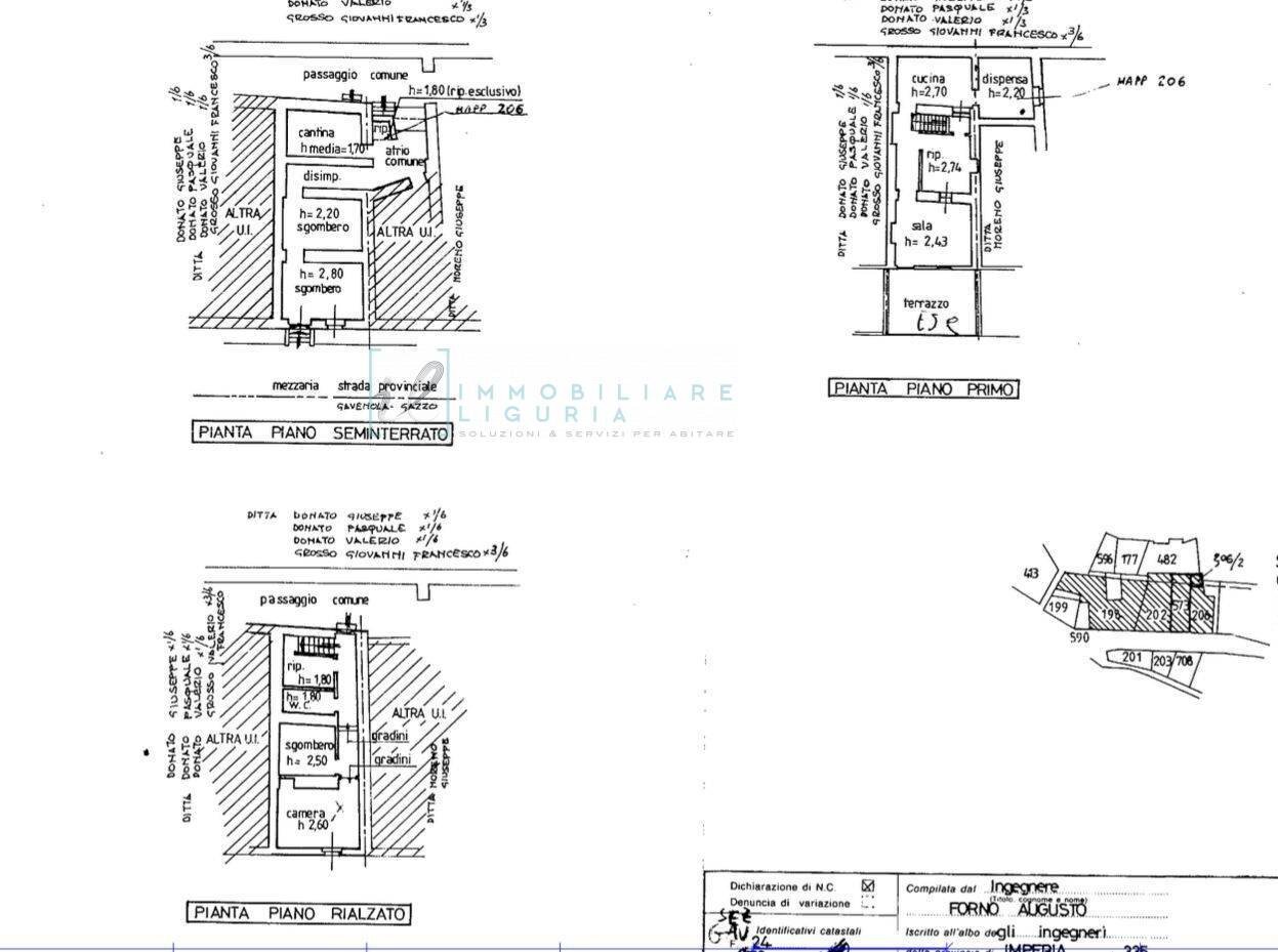
Il rustico è indipendente da terra a cielo e si sviluppa su più livelli, per un totale di 160 metri quadrati, con una superficie calpestabile di 150 metri quadrati.
Si compone al primo piano da ingresso, salone, cucina abitabile, camera matrimoniale e un bellissimo terrazzo attrezzato di circa 20mq, al piano sotto stante un ripostiglio, bagno e un altra camera da letto.
Al piano rialzato troviamo un alloggio bilocale con ingresso indipendente alla casa principale, che può essere usufruito per gli ospiti, è presente la zona notte con un letto a soppalco e la zona pranzo con angolo cottura e bagno.
L'immobile è stato ristrutturato recentemente con finiture moderne e di pregio mantenendo uno stile rustico ligure, il pavimento è in cotto toscano originale e un bellissimo caminetto funzionante.
Il mobilio della casa è stato studiato nei minimi dettagli, come gli armadi a muro per usufruire al meglio degli spazi.
All'esterno troviamo un giardino curato e attrezzato con palme e un uliveto vicino a casa, Inoltre completa la proprietà un magazzino per gli attrezzi.
L'ambiente è riscaldato tramite un impianto a radiatori, alimentato da gasolio.
Lo stato di conservazione è ottimo, garantendo la qualità e la solidità della struttura. Gli infissi e le finestre sono in alluminio con doppio vetro, per garantire un'adeguata isolazione termica e acustica.
La sua posizione rende questo rustico ideale per chi cerca la tranquillità e la natura, la sua posizione è soleggiata e vista panoramica sulla valle.
Inclusa nella vendita anche vari appezzamenti di terreno nel circondario.
In sintesi, questo rustico rappresenta una soluzione ideale per chi desidera vivere in un ambiente rustico e autentico, godendo di spazio e tranquillità, senza rinunciare al comfort e alla comodità.
Per info e dettagli
Agenzia Immobiliare Liguria
Via Genova n. 81- Albenga (SV)
Corso Mario Ponzoni n. 75- Pieve di Teco (IM)
tel. +39 0182554730 cell. +39 3486618055
Whatsapp: Kelly +39 3272523451
Il rustico è indipendente da terra a cielo e si sviluppa su più livelli, per un totale di 160 metri quadrati, con una superficie calpestabile di 150 metri quadrati.
Si compone al primo piano da ingresso, salone, cucina abitabile, camera matrimoniale e un bellissimo terrazzo attrezzato di circa 20mq, al piano sotto stante un ripostiglio, bagno e un altra camera da letto.
Al piano rialzato troviamo un alloggio bilocale con ingresso indipendente alla casa principale, che può essere usufruito per gli ospiti, è presente la zona notte con un letto a soppalco e la zona pranzo con angolo cottura e bagno.
L'immobile è stato ristrutturato recentemente con finiture moderne e di pregio mantenendo uno stile rustico ligure, il pavimento è in cotto toscano originale e un bellissimo caminetto funzionante.
Il mobilio della casa è stato studiato nei minimi dettagli, come gli armadi a muro per usufruire al meglio degli spazi.
All'esterno troviamo un giardino curato e attrezzato con palme e un uliveto vicino a casa, Inoltre completa la proprietà un magazzino per gli attrezzi.
L'ambiente è riscaldato tramite un impianto a radiatori, alimentato da gasolio.
Lo stato di conservazione è ottimo, garantendo la qualità e la solidità della struttura. Gli infissi e le finestre sono in alluminio con doppio vetro, per garantire un'adeguata isolazione termica e acustica.
La sua posizione rende questo rustico ideale per chi cerca la tranquillità e la natura, la sua posizione è soleggiata e vista panoramica sulla valle.
Inclusa nella vendita anche vari appezzamenti di terreno nel circondario.
In sintesi, questo rustico rappresenta una soluzione ideale per chi desidera vivere in un ambiente rustico e autentico, godendo di spazio e tranquillità, senza rinunciare al comfort e alla comodità.
Per info e dettagli
Agenzia Immobiliare Liguria
Via Genova n. 81- Albenga (SV)
Corso Mario Ponzoni n. 75- Pieve di Teco (IM)
tel. +39 0182554730 cell. +39 3486618055
Whatsapp: Kelly +39 3272523451
Main data
| Reference | 977 |
| Ad date | 13/09/2025 |
| Contract | Sale |
| Typology | Rustic |
| Surface | 160 m2 |
| Locals | more than 5 (3 bedrooms, 4 other), 2 bathrooms, kitchen small kitchen |
| Plan | On several levels |
| Construction type | Signorile |
| Occupied | Free |
Costs
| Price | 195.000 € |
| Price per m2 | 1.219 €/m2 |
Energy efficiency
| Status | Excellent |
| Heating | Autonomous |
| Heating Power Type | Diesel |
| Energy rating | G |
| Energy Performance Index (IPE) | - |
Floor plans
Address and map
Via Provinciale, Borghetto d'Arroscia
Ad without map,
try asking the advertiser for the position
try asking the advertiser for the position
Mortgage calculation
Selling price:
Advance
20,00
Mortgage
80,00
Rate: -+
Payment: 558 per month
The results are an indicative estimate based on the data entered and do not constitute a financial offer.
Advertiser

Immobiliare Liguria
Via Genova, 81, Albenga
Show Phone
Call
CONTACT

