Apartment Via San Pietro 3, Persico Dosimo
€ 235.000
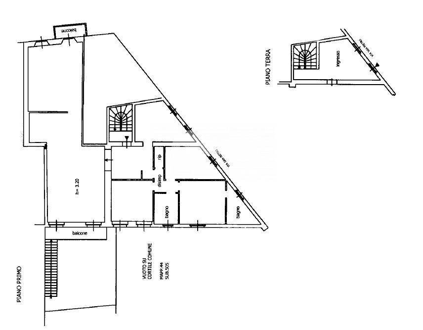
IMMOBILIARE CASAMOOD propone in vendita a Dosimo, frazione di Persico Dosimo, un AMPIO APPARTAMENTO recentemente e completamente ristrutturato, sviluppato interamente su un unico piano. Limmobile, posto al primo piano, vanta una superficie di 220 mq distribuiti in cinque locali spaziosi, oltre a circa 180 mq di cortile privato. Lingresso indipendente conduce a una stanza di servizio con pratico ripostiglio per accessori. Da qui, una scala interna porta direttamente allabitazione, dove si apre un accogliente ingresso che affaccia sulla grande zona giorno con pavimento in gres, composta da soggiorno con camino e accesso alla terrazza vivibile da unampia cucina abitabile con balcone affacciato sulla piazza del paese e da un pratico studiolo collocato nella zona di passaggio tra soggiorno e cucina. La terrazza è dotata di tenda avvolgibile ed è ideale per pranzi e cene all'aperto e momenti di convivialità. Inoltre è dotata di una comoda scala collegata al cortile di proprietà e al porticato, utilizzabile come magazzino e/o come posti auto coperti. La zona notte, caratterizzata da pavimenti in parquet in legno, comprende tre camere da letto, di cui una attualmente adibita a cabina armadio, un bagno principale con vasca, un bagno riservato alla camera matrimoniale e unulteriore stanza che può essere utilizzata come quarta camera o come ambiente multifunzionale. Lappartamento è dotato di riscaldamento autonomo a radiatori, integrato da camino a pellet e legna. Tra le dotazioni figurano inoltre impianto di allarme, aria condizionata e caldaia a condensazione del 2022. APE in fase di produzione. Contattaci per maggiori informazioni o per organizzare una visita: saremo felici di accompagnarti alla scoperta di questa interessante soluzione a Dosimo.
Main data
| Reference | 6415062020-1244 |
| Ad date | 12/09/2025 |
| Contract | Sale |
| Typology | Apartment |
| Surface | 220 m2 |
| Locals | more than 5 (3 bedrooms, 3 other), 2 bathrooms, kitchen habitable |
| Plan | 1 from 3 totals |
| Occupied | Free |
| Number of parking spaces | 4 |
Costs
| Price | 235.000 € |
| Price per m2 | 1.068 €/m2 |
Energy efficiency
| Heating | Autonomous |
| Heating Power Type | Other |
| Energy rating | Property exempt from energy certification |
Floor plans
Address and map
Via San Pietro
3, Persico Dosimo
Ad without map,
try asking the advertiser for the position
try asking the advertiser for the position
Mortgage calculation
Selling price:
Advance
20,00
Mortgage
80,00
Rate: -+
Payment: 672 per month
The results are an indicative estimate based on the data entered and do not constitute a financial offer.
Advertiser
Call
CONTACT


