Villa Regione Pignere, Ceres
€ 179.000VILLA INDIPENDENTE CON SPETTACOLARE AREA VERDE
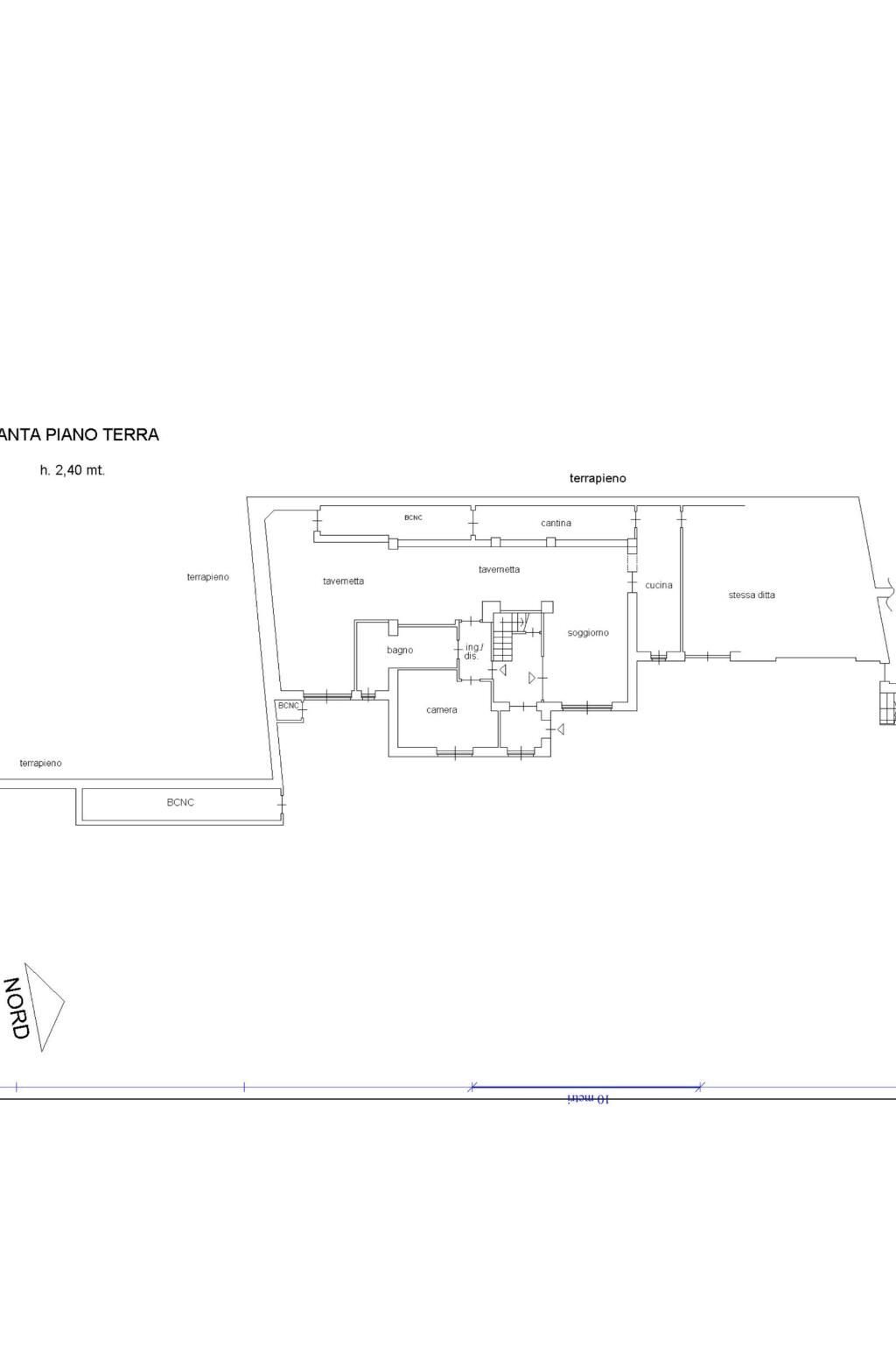
VILLA INDIPENDENTE CON SPETTACOLARE AREA VERDE A Ceres, in Regione Pignere, l'Agenzia Homework Immobiliare di Via Giacinto Collegno 10/b a Torino propone in vendita SPETTACOLARE VILLA TRIFAMIGLIARE INDIPENDENTE di 374 mq con grande area cortilizia/giardino (circa 3.000mq), ampio box auto doppio di 57 mq e cantine di pertinenza. ATTENZIONE: LA CASA E' LIBERA SUBITO ED IMMEDIATAMENTE DISPONIBILE E VIENE VENDUTA COMPLETAMENTE ARREDATA COME DA FOTO!!! La villa, mantenuta in condizioni ottime dagli storici proprietari, è così suddivisa: al PIANO TERRA primo appartamento di 143 mq composto da ingresso living su sala da pranzo e soggiorno provvisto di camino a legna e termocucina, cucina abitabile, secondo soggiorno/sala ricevimento, camera da letto matrimoniale, disimpegno, bagno finestrato con vasca ed angolo lavanderia, patio esterno solarium. Tramite accesso esterno autonomo oppure tramite comoda scala interna si accede al PIANO PRIMO dove troviamo il secondo appartamento di 114 mq composto da: ingresso living su sala da pranzo e soggiorno provvisto di camino a legna, cucina abitabile, disimpegno, due camere da letto matrimoniali, bagno finestrato appena ristrutturato con box doccia in cristallo e illuminazione di design. Il piano primo è completato dalla presenza di magnifico terrazzo attrezzato con forno a legna, zona barbecue, tavoli e sedie per pranzi e feste all'aperto! Il terrazzo, panoramico e dalla vista mozzafiato sul verde della vallata e sull'azzurro del fiume, circonda quasi per intero il perimetro dell'alloggio: UNA MERAVIGLIA!!! La villa, al PIANO SECONDO, è completata dalla presenza del terzo appartamento mansardato di 117 mq composto da: ingresso living su zona giorno, cucina abitabile, camera da letto matrimoniale, disimpegno, bagno finestrato con angolo lavanderia, due comode ed utilissime zone ripostiglio. L'impianto di riscaldamento è provvisto di caldaia a gas (GPL) perfettamente funzionante con termosifoni. Vi è inoltre la presenza di una performante termocucina che anch'essa serve tutti i termosifoni presenti in casa e di due bellissimi e caratteristici camini a legna. Il calore ed il comfort in casa nei mesi più freddi sono assolutamente garantiti! Tutti gli ambienti esterni ed interni sono super soleggiati data la straordinaria esposizione della villa ai raggi del sole! Come potete ammirare dalle foto la villa si presenta molto molto bene! È abitata da tempo sempre dalla stessa famiglia che negli anni (e con Amore!) ha apportato continue migliorie alla struttura. La silenziosità, la tranquillità e la serenità che si respirano in questo luogo sono impagabili; per capire ed apprezzare appieno lo splendido contesto in cui ci si trova bisogna essere sul posto! Una vera oasi di pace e relax baciata dal sole e cullata dal suono dolce del fiume che scorre. Se siete una famiglia numerosa o addirittura due famiglie alla ricerca di una soluzione immobiliare comoda ed immersa nel verde è questo l'immobile giusto. Come location siamo a breve distanza dalle comodità e i servizi dei centri abitati e da tutti i vari collegamenti da e per Torino. La villa è libera subito ed immediatamente pronta per essere abitata! Ottimo rapporto qualità/prezzo!!APE: F. La presente descrizione/foto non costituisce vincolo contrattuale. Vai sul nostro sito internet, www.homeworkimmobiliare.com, e troverai l'immobile che fa per te. I nostri uffici seguono i seguenti orari lun-ven 9,00 - 12,30; 14,30 - 19,30 - sabato: 9,00 - 12,30. SEDE TORINO - HOMEWORK IMMOBILIARE S.R.L. Via Giacinto Collegno 10/B, 10143 Torino Tel. 011.20.70.488 E-mail: [email protected] SEDE VENARIA REALE (TO) - HOMEWORK IMMOBILIARE S.R.L. Via Pietro Rolle 2, 10078 Venaria Reale (TO) Tel. 351.53.13.651 E-mail: [email protected] SEDE CHIVASSO (TO) - HOMEWORK IMMOBILIARE S.R.L. Viale Giacomo Matteotti 4/A, 10034 Chivasso (TO) Tel. 011.19.66.7210 E-mail: [email protected]
Main data
| Reference | Regione Pignere (Ceres) |
| Ad date | 05/09/2025 |
| Contract | Sale |
| Typology | Villa |
| Surface | 403 m2 |
| Locals | more than 5 (5 bedrooms, 10 other), 3 bathrooms, kitchen habitable |
| Plan | 3 totals |
| Construction type | Signorile |
| Number of terraces | 1 |
| Number of balconies | 1 |
| Garage | Double |
| Number of parking spaces | 10 |
| Furniture | Complete |
Costs
| Price | 179.000 € |
| Price per m2 | 444 €/m2 |
Energy efficiency
| Year built | 1985 |
| Status | Good |
| Heating | Autonomous |
| Energy rating | F |
| Energy Performance Index (IPE) | 155.93 kWh/m2 year |
Floor plans
Address and map
Regione Pignere, Ceres
Mortgage calculation
Selling price:
Advance
20,00
Mortgage
80,00
Rate: -+
Payment: 512 per month
The results are an indicative estimate based on the data entered and do not constitute a financial offer.
Advertiser
Call
CONTACT


