Three-room apartment via Sarti 13, Comunanza
€ 95.000
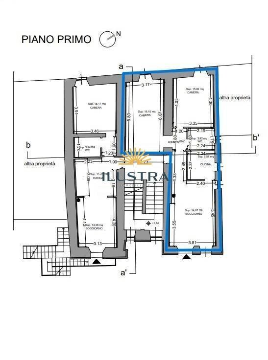
L'agenzia immobiliare Ilustra propone in vendita appartamento trilocale, nel comune di Comunanza (AP), zona centro storico. L'unità immobiliare situato al primo piano di una palazzina in fase di totale ristrutturazione, sarà pronto per essere abitato nei primi mesi del 2026. Si tratta di una soluzione ideale per chi desidera una casa totalmente ristrutturata. L'immobile ha una superficie totale di 74 metri quadrati, tutti calpestabili e ben distribuiti: ingresso su soggiorno, cucina separata, bagno finestrato con doccia, due camere matrimoniali. L'appartamento è dotato di impianto a radiatori in alluminio alimentato a metano con caldaia a condensazione, garantendo così un riscaldamento efficiente e costante nei mesi più freddi. finestre in legno con doppiovetro termico e persiane, portone d'ingresso blindato e finiture interne ancora con possibilità di personalizzazione Inoltre, l'appartamento dispone di una cantina di 22mq circa e di una soffitta di 15mq, ideali per riporre oggetti e attrezzi, garantendo così una maggiore vivibilità degli spazi interni. Se stai cercando un'abitazione nuova, confortevole, questo appartamento è sicuramente la soluzione ideale per te. L'appartamento in vendita si trova nel centro storico di Comunanza, un grazioso paese immerso nel verde delle Marche. Non perdere l'opportunità di diventare il proprietario di questo splendido immobile in fase di ristrutturazione.
Main data
| Reference | 119 |
| Ad date | 05/09/2025 |
| Contract | Sale |
| Typology | Apartment |
| Surface | 80 m2 |
| Locals | 3 (2 bedrooms, 1 other), 1 bathroom, kitchen habitable |
| Plan | 1 from 2 totals |
| Occupied | Free |
| Garage | Absent |
| Furniture | Absent |
Costs
| Price | 95.000 € |
| Price per m2 | 1.188 €/m2 |
Energy efficiency
| Heating | Autonomous |
| Energy rating | A1 |
Floor plans
Address and map
via Sarti
13, Comunanza
Ad without map,
try asking the advertiser for the position
try asking the advertiser for the position
Mortgage calculation
Selling price:
Advance
20,00
Mortgage
80,00
Rate: -+
Payment: 272 per month
The results are an indicative estimate based on the data entered and do not constitute a financial offer.
Advertiser

Ilustra S.R.L.S.
Strada Provinciale Valtesino, 301, Grottammare
Show Phone
Show Mobile
Call
CONTACT

