Three-room apartment Via Corassori, Formigine
€ 228.000Trilocale in vendita
Formigine, proponiamo un immobile in vendita che offre una soluzione abitativa pratica e funzionale con terrazzo.
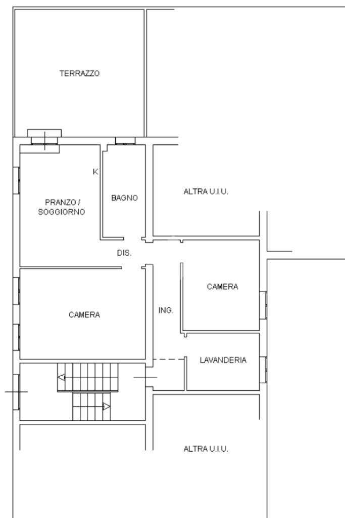
Situato al piano rialzato l'immobile è composto da tre locali ben distribuiti, che garantiscono spazi confortevoli per ogni esigenza. La disposizione interna degli ambienti,ingresso, due camere, lavanderia, bagno, cucina open space che si affaccia sul terrazzo a completare l immobile un grande garage doppio e una spaziosa cantina.
La posizione strategica consente di raggiungere facilmente i principali servizi e le vie di comunicazione, rendendo questa proprietà una scelta ideale per chi cerca comodità e praticità.
L'immobile rappresenta un'opportunità interessante per chi desidera investire in una zona ben servita e in continua crescita.
Ns Esclusiva
Per info e visite potete contattare il Paolo 3480919153
Situato al piano rialzato l'immobile è composto da tre locali ben distribuiti, che garantiscono spazi confortevoli per ogni esigenza. La disposizione interna degli ambienti,ingresso, due camere, lavanderia, bagno, cucina open space che si affaccia sul terrazzo a completare l immobile un grande garage doppio e una spaziosa cantina.
La posizione strategica consente di raggiungere facilmente i principali servizi e le vie di comunicazione, rendendo questa proprietà una scelta ideale per chi cerca comodità e praticità.
L'immobile rappresenta un'opportunità interessante per chi desidera investire in una zona ben servita e in continua crescita.
Ns Esclusiva
Per info e visite potete contattare il Paolo 3480919153
Main data
| Reference | 61104003 |
| Ad date | 02/09/2025 |
| Contract | Sale |
| Typology | Apartment |
| Surface | 117 m2 |
| Locals | 3 (3 other), 1 bathroom |
| Plan | 2 from 3 totals |
Costs
| Price | 228.000 € |
| Price per m2 | 1.949 €/m2 |
| Condominium fees | €42,00/month |
Energy efficiency
| Year built | 1979 |
| Heating | Autonomous |
| Heating Power Type | Methane |
| Energy rating | D |
| Energy performance index (EP GL, REN ) | 182.56 kWh/m3 year |
| Energy performance index (EP GL, NREN ) | 182.56 kWh/m3 year |
Floor plans
Address and map
Via Corassori, Formigine
Mortgage calculation
Selling price:
Advance
20,00
Mortgage
80,00
Rate: -+
Payment: 652 per month
The results are an indicative estimate based on the data entered and do not constitute a financial offer.
Advertiser
Call
CONTACT

