Independent house Via Noce, Castelfranco Emilia
€ 290.000Casa indipendente in vendita
L'agenzia affiliata Tecnocasa di Piumazzo propone in vendita ad 1 km dal Paese, gruppo di fabbricati con 3500 mq di terreno esclusivo.
Gli immobili si trovano in una zona tranquilla, immersi nel verde e a poca distanza dai primi servizi del Paese.
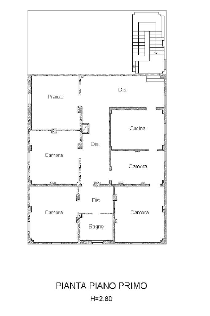
All'interno del lotto di proprietà esclusiva troviamo la Casa Padronale disposta su due piani fuori terra ed un piano interrato composta da due appartamenti distinti e separati di 140 mq ciascuno.
I fabbricati adiacenti di ampia metratura, sono perfetti per creare depandance, tavernetta o destinarli ai servizi di rimesse e cantine.
All'interno della proprietà altri 2 fabbricati con possibilità di cambio di destinazione d'uso.
L'immobile necessità di una completa ristrutturazione.
Se devi vendere il tuo immobile gestiremo la Permuta!
Chiamaci per visionarla e chiedere tutti i dettagli allo 059931927 o scrivici al 3207694222 o invia un email a
Gli immobili si trovano in una zona tranquilla, immersi nel verde e a poca distanza dai primi servizi del Paese.
All'interno del lotto di proprietà esclusiva troviamo la Casa Padronale disposta su due piani fuori terra ed un piano interrato composta da due appartamenti distinti e separati di 140 mq ciascuno.
I fabbricati adiacenti di ampia metratura, sono perfetti per creare depandance, tavernetta o destinarli ai servizi di rimesse e cantine.
All'interno della proprietà altri 2 fabbricati con possibilità di cambio di destinazione d'uso.
L'immobile necessità di una completa ristrutturazione.
Se devi vendere il tuo immobile gestiremo la Permuta!
Chiamaci per visionarla e chiedere tutti i dettagli allo 059931927 o scrivici al 3207694222 o invia un email a
Main data
| Reference | 61104721 |
| Ad date | 01/09/2025 |
| Contract | Sale |
| Typology | Independent house |
| Surface | 320 m2 |
| Locals | more than 5 (8 other), 2 bathrooms |
| Plan | 2 from 2 totals |
| Number of parking spaces | 2 |
Costs
| Price | 290.000 € |
| Price per m2 | 906 €/m2 |
Energy efficiency
| Year built | 1940 |
| Heating | Autonomous |
| Heating Power Type | Methane |
| Energy rating | G |
| Energy performance index (EP GL, REN ) | 89 kWh/m3 year |
| Energy performance index (EP GL, NREN ) | 85 kWh/m3 year |
Floor plans
Video
Address and map
Via Noce, Castelfranco Emilia
Mortgage calculation
Selling price:
Advance
20,00
Mortgage
80,00
Rate: -+
Payment: 829 per month
The results are an indicative estimate based on the data entered and do not constitute a financial offer.
Advertiser
Call
CONTACT

