Rustic Frazione San Luigi, Bene Vagienna
€ 69.000Rustico in vendita
Bene Vagienna. In Frazione San Luigi proponiamo in vendita casa da ristrutturare con un ampio cortile pertinenziale completamente cintata.
La soluzione si propone allo stato attuale non abitabile, esente imu in questo momento, ma con gli oneri di urbanizzazione, predisposizione degli allacciamenti per quanto riguarda gli impianti elettrici, sistema fognario comunale, acqua potabile e quant'altro già pagati.
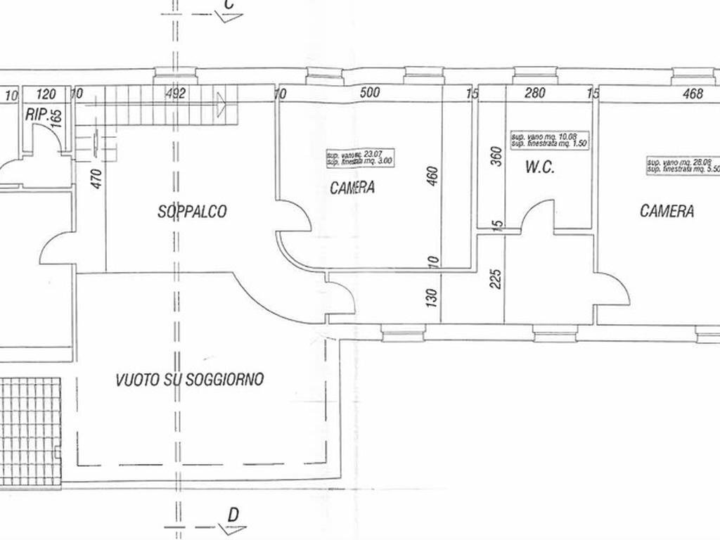
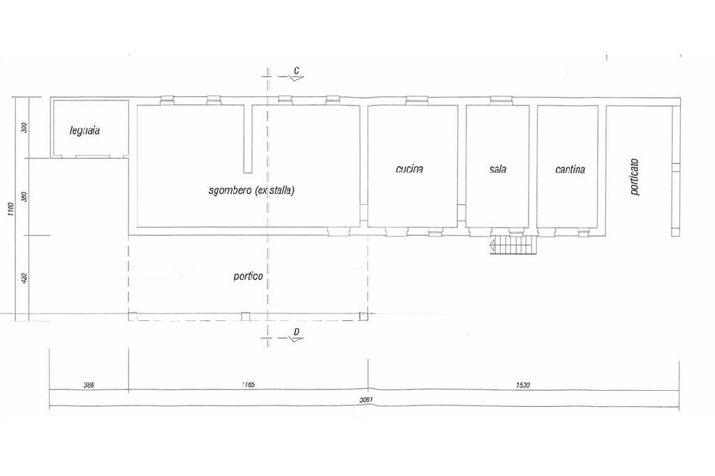
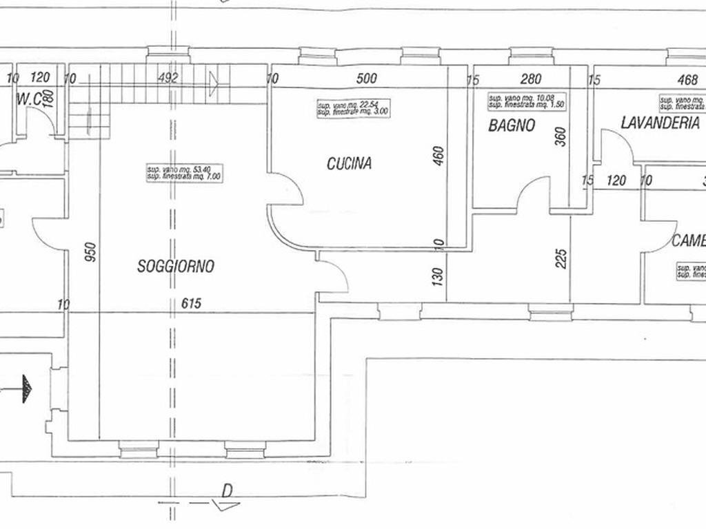
Grazie all'intervento di una ristrutturazione si può recuperare la metrature e creare una soluzione che si disponga su due livelli fuori terra, con un ampia zona giorno al pian terreno, una cucina abitabile, uno o due bagni in base alle proprie esigenze e una camera da letto, più il locale caldaio/centrale termica. Al primo piano dove si accede attraverso la scala interna è possibile ricreare fino a tre camere da letto matrimoniali e due bagni più un ampia zona comune di quest'ultime.
L'abitazione potrà avere una metratura totale di circa 200 mq ed il lotto per intero una superficie totale di circa 2.300 mq.
La soluzione gode di un ottima vista panoramica che da anche la possibilità di avere una buona luminosita in tutti i locali dell'abitazione.
Ogni agenzia ha un proprio titolare ed è autonoma. - Le presenti informazioni non costituiscono elemento contrattuale.
La soluzione si propone allo stato attuale non abitabile, esente imu in questo momento, ma con gli oneri di urbanizzazione, predisposizione degli allacciamenti per quanto riguarda gli impianti elettrici, sistema fognario comunale, acqua potabile e quant'altro già pagati.
Grazie all'intervento di una ristrutturazione si può recuperare la metrature e creare una soluzione che si disponga su due livelli fuori terra, con un ampia zona giorno al pian terreno, una cucina abitabile, uno o due bagni in base alle proprie esigenze e una camera da letto, più il locale caldaio/centrale termica. Al primo piano dove si accede attraverso la scala interna è possibile ricreare fino a tre camere da letto matrimoniali e due bagni più un ampia zona comune di quest'ultime.
L'abitazione potrà avere una metratura totale di circa 200 mq ed il lotto per intero una superficie totale di circa 2.300 mq.
La soluzione gode di un ottima vista panoramica che da anche la possibilità di avere una buona luminosita in tutti i locali dell'abitazione.
Ogni agenzia ha un proprio titolare ed è autonoma. - Le presenti informazioni non costituiscono elemento contrattuale.
Main data
| Reference | 61100839 |
| Ad date | 30/08/2025 |
| Contract | Sale |
| Typology | Rustic |
| Surface | 200 m2 |
| Locals | more than 5 (7 other), 2 bathrooms |
| Plan | 2 totals |
Costs
| Price | 69.000 € |
| Price per m2 | 345 €/m2 |
Energy efficiency
| Year built | 1900 |
| Heating | Absent |
| Energy rating | Property exempt from energy certification |
Floor plans
Address and map
Frazione San Luigi, Bene Vagienna
Mortgage calculation
Selling price:
Advance
20,00
Mortgage
80,00
Rate: -+
Payment: 197 per month
The results are an indicative estimate based on the data entered and do not constitute a financial offer.
Advertiser
Call
CONTACT

