Four-room apartment via Giuseppe Mazzini, Bologna (neighborhood Massarenti)
€ 410.000
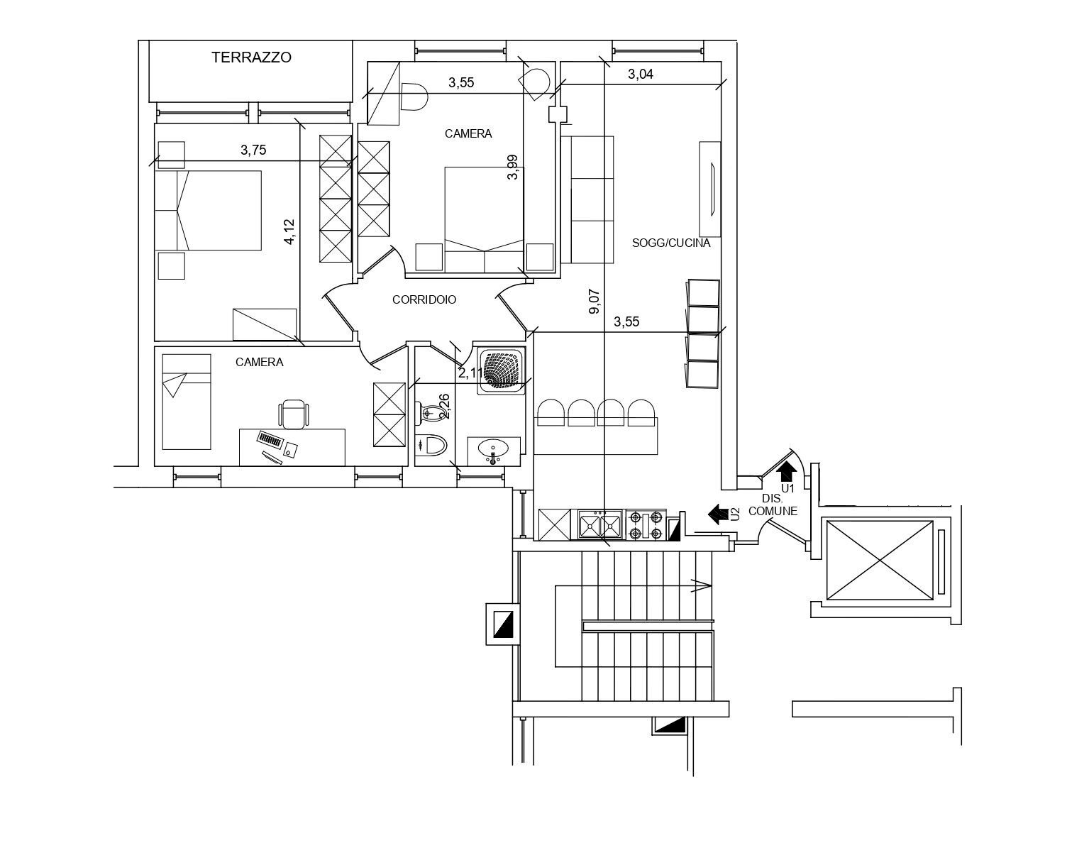
VIA MAZZINI - OSPEDALE MALPIGHI in corso di ristrutturazione con consegna a 3/4 mesi - complesso residenziale elegante e curato - zona semicentrale - ottimamente servita e collegata – appartamento tipologia quadrilocale composto da ampia sala all'ingresso con zona living, zona pranzo e angolo cottura a vista - due ampie camere matrimoniali (la padronale con balcone) - comoda camera singolo/studio - bagno - nuovo da impresa - interno rispetto la via Mazzini tranquillo - silenzioso - luminoso - ottimo capitolato con possibilità di personalizzazione - spese condominiali (incluso riscald e acqua calda) € 2.000, 00 ca. /anno - Classe energetica da definire Rif. 200 € 410.000, 00.
Main data
| Reference | 200 |
| Ad date | 28/08/2025 |
| Contract | Sale |
| Typology | Apartment |
| Surface | 102 m2 |
| Locals | 4 (3 bedrooms, 1 other), 1 bathroom, kitchen on sight |
| Plan | 2 from 6 totals |
| Construction type | Average |
| Number of terraces | 1 |
| Number of balconies | 1 |
| Garage | Absent |
| Furniture | Absent |
Costs
| Price | 410.000 € |
| Price per m2 | 4.020 €/m2 |
| Condominium fees | €170,00/month |
Energy efficiency
| Year built | 1960 |
| Status | Excellent |
| Heating | Centralized |
| Energy rating | Property exempt from energy certification |
Floor plans
Address and map
via Giuseppe Mazzini, Bologna - neighborhood Massarenti
Mortgage calculation
Selling price:
Advance
20,00
Mortgage
80,00
Rate: -+
Payment: 1.173 per month
The results are an indicative estimate based on the data entered and do not constitute a financial offer.
Advertiser
Call
CONTACT


