Apartment via Giovanni Falcone, 4, Mondovì
€ 185.000IL DOPPIO VANTAGGIO CHE NON TI ASPETTI
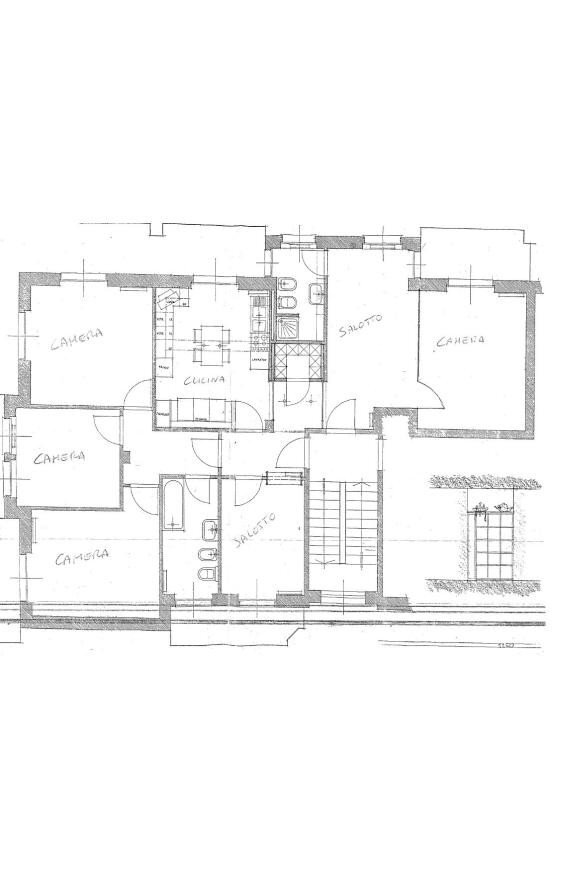
Immagina di varcare la soglia e sentirti subito a casa. Un invito elegante ti accoglie e ti conduce verso il cuore della tua abitazione, pensata per essere il centro della tua vita familiare e sociale. Questa non è solo una casa, è uno spazio progettato per il benessere. Un salotto inondato di luce naturale, la cucina, luminosa e funzionale, è il regno di chi ama creare, con un affaccio diretto su un balcone avvolgente che regala una prospettiva unica e un filo diretto con l'esterno. Accanto, un'ampia sala da pranzo attende le tue cene con gli amici e le feste in famiglia, diventando il luogo dei ricordi più preziosi. La zona notte è un vero e proprio santuario privato. Quattro camere da letto offrono a ogni membro della famiglia il proprio angolo di pace, con una versatilità che permette di creare uno studio, una sala giochi o una stanza per gli ospiti. I doppi servizi garantiscono comfort e funzionalità senza compromessi. Il Doppio Vantaggio che non ti Aspetti: non è solo un grande appartamento, è un'opportunità al quadrato. Oggi si presenta come un'unica, generosa abitazione, perfetta per chi ama gli spazi ampi e conviviali. Ma il suo vero potenziale è nascosto nella sua struttura. L'immobile è infatti il risultato dell'unione di due appartamenti distinti e catastalmente separabili. Questo significa avere la possibilità di ripristinare la divisione originale e ottenere due unità abitative separate, autonome e perfettamente funzionali. Una scelta strategica per chi guarda al futuro, sia che si tratti di esigenze familiari in evoluzione o di un investimento ad alto potenziale. Completano la proprietà un garage molto spazioso che può ospitare fino a tre macchine e una cantina, soluzioni definitive a ogni esigenza di spazio e organizzazione. Vivere qui significa scegliere il meglio di Mondovì: la comodità di avere la stazione e tutti i servizi a pochi passi, unita alla facilità di raggiungere il centro città. Questa è più di una proprietà. È la promessa di una vita comoda, luminosa e piena di spazio. Non aspettare. Prenota la tua visita esclusiva e lasciati conquistare. Tutte le informazioni contenute negli annunci immobiliari (caratteristiche tecniche, disposizione degli ambienti, accessori, dotazioni, ecc…) potrebbero non corrispondere in parte allo stato di fatto attuale dell'immobile. Inoltre, i vari portali immobiliari utilizzano diversi criteri per la pubblicazione dello stesso annuncio che può generare differenze sui dati inseriti dalla Dielle Studiocasa S.A.S. e la stessa declina ogni responsabilità per eventuali involontarie incoerenze.
Main data
| Reference | 1218 |
| Ad date | 25/08/2025 |
| Contract | Sale |
| Typology | Apartment |
| Surface | 170 m2 |
| Locals | more than 5 (4 bedrooms, 5 other), 2 bathrooms, kitchen habitable |
| Plan | 3 totals |
| Construction type | Average |
| Number of terraces | 1 |
| Number of balconies | 1 |
| Garage | Double |
| Number of parking spaces | 3 |
Costs
| Price | 185.000 € |
| Price per m2 | 1.088 €/m2 |
| Condominium fees | €84,00/month |
Energy efficiency
| Year built | 1980 |
| Status | Good |
| Heating | Autonomous |
| Energy rating | F |
| Energy Performance Index (IPE) | 123.57 kWh/m2 year |
Floor plans
Address and map
via Giovanni Falcone, 4, Mondovì
Mortgage calculation
Selling price:
Advance
20,00
Mortgage
80,00
Rate: -+
Payment: 529 per month
The results are an indicative estimate based on the data entered and do not constitute a financial offer.
Advertiser

Dielle Studiocasa
Corso Italia 2, Mondovì
Show Phone
Call
CONTACT

