Apartment Trequanda
€ 225.000
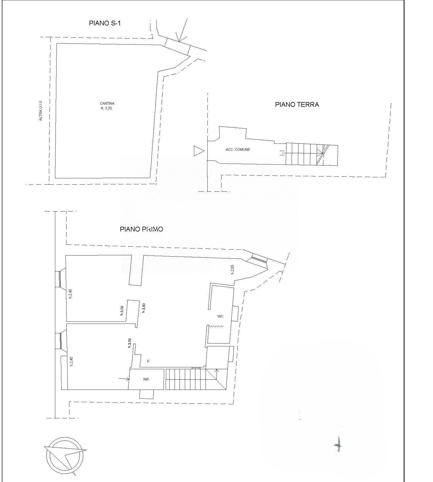
Appartamento ristrutturato e arredato in borgo toscano vicino a Pienza e Montepulciano Nel cuore di un tranquillo villaggio toscano, a breve distanza da Pienza e Montepulciano, proponiamo in vendita un appartamento di charme, completamente ristrutturato e arredato, pronto per essere abitato. Situato al primo piano e con una superficie catastale di 73 mq, limmobile è composto da luminoso soggiorno con angolo cottura, due camere da letto, un bagno , e cabina armadio con zona lavanderia. Le finestre esposte a sud e nord regalano luce naturale durante tutta la giornata. È possibile installare una stufa a legna o pellet grazie alla predisposizione del camino esistente. La recente ristrutturazione ha portato impianti elettrici e idraulici nuovi, infissi e porte interne moderni, pavimenti e intonaci rinnovati. Sono presenti pompe di calore e aria condizionata Daikin, oltre alla predisposizione per pannelli fotovoltaici e sistema di accumulo. Porte dingresso e persiane originali sono state restaurate con cura. Completano la proprietà unampia cantina e spazi esterni curati con vasi in terracotta, zone verdi e area relax. Durante i lavori sono stati preservati i dettagli architettonici tipici toscani, armonizzandoli con finiture moderne per offrire un ambiente accogliente e raffinato.
Main data
| Reference | A821 |
| Ad date | 26/08/2025 |
| Contract | Sale |
| Typology | Apartment |
| Surface | 76 m2 |
| Locals | kitchen on sight |
| Construction type | Signorile |
| Occupied | Free |
| Garage | Absent |
| Furniture | Complete |
Costs
| Price | 225.000 € |
| Price per m2 | 2.961 €/m2 |
Energy efficiency
| Heating | Autonomous |
| Heating System Type | by air |
| Heating Power Type | Electric |
| Energy rating | Property exempt from energy certification |
Floor plans
Virtual tour
Address and map
Trequanda
Ad without map,
try asking the advertiser for the position
try asking the advertiser for the position
Mortgage calculation
Selling price:
Advance
20,00
Mortgage
80,00
Rate: -+
Payment: 643 per month
The results are an indicative estimate based on the data entered and do not constitute a financial offer.
Advertiser
Call
CONTACT


