Apartment Trequanda
€ 155.000
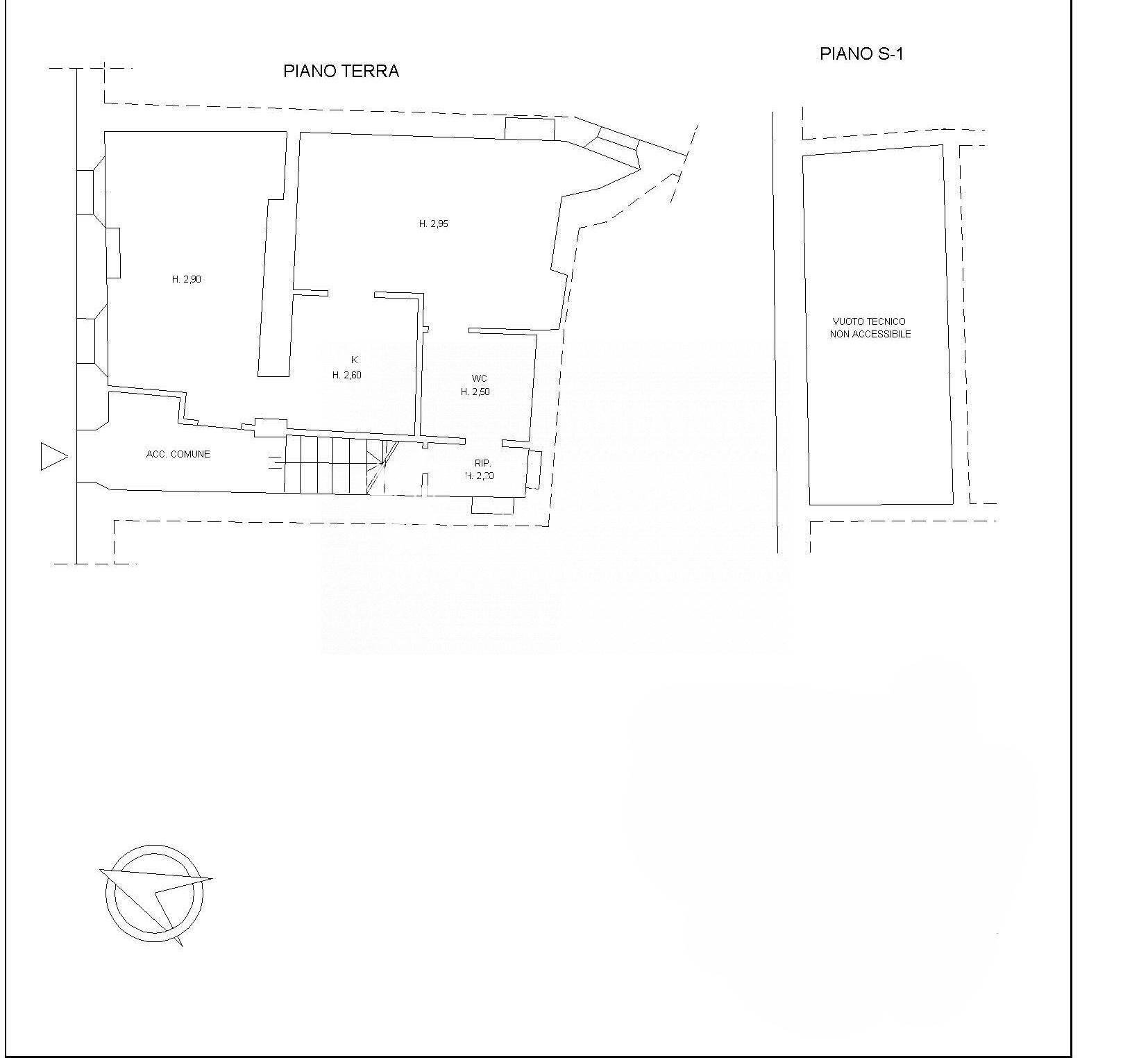
Appartamento ristrutturato in borgo toscano vicino a Pienza e Montepulciano Nel cuore di un piccolo villaggio toscano, a pochi chilometri da Pienza e Montepulciano, proponiamo in vendita un delizioso appartamento al piano terra di 54 mq, recentemente ristrutturato e pronto da abitare. Labitazione combina il fascino dei dettagli storici con il comfort moderno: soffitti antichi sabbiati, porte e persiane originali restaurate, pavimenti e impianti completamente nuovi. Il soggiorno è reso accogliente dal caminetto con stufa a legna Jotul, ideale per creare unatmosfera calda e intima. Gli ambienti sono luminosi e funzionali: soggiorno con cucina, camera matrimoniale, bagno, lavanderia/ripostiglio e unampia cantina. Lappartamento è dotato di impianti elettrici e idraulici nuovi, aria condizionata e pompe di calore Daikin, predisposizione per pannelli fotovoltaici con accumulo. Gli spazi esterni sono curati e scenografici, con vasi in terracotta, angoli verdi e una piacevole zona relax, perfetti per vivere lo stile di vita toscano allaperto. Un rifugio ideale per chi cerca una casa pronta, arredata, con il giusto equilibrio tra tradizione toscana e comfort contemporaneo, in un contesto tranquillo ma vicino ai borghi più rinomati della Val dOrcia.
Main data
| Reference | A820 |
| Ad date | 26/08/2025 |
| Contract | Sale |
| Typology | Apartment |
| Surface | 56 m2 |
| Locals | kitchen small kitchen |
| Construction type | Signorile |
| Occupied | Free |
| Garage | Absent |
| Furniture | Partial |
Costs
| Price | 155.000 € |
| Price per m2 | 2.768 €/m2 |
Energy efficiency
| Heating | Autonomous |
| Heating System Type | by air |
| Heating Power Type | Electric |
| Energy rating | Property exempt from energy certification |
Floor plans
Virtual tour
Address and map
Trequanda
Ad without map,
try asking the advertiser for the position
try asking the advertiser for the position
Mortgage calculation
Selling price:
Advance
20,00
Mortgage
80,00
Rate: -+
Payment: 443 per month
The results are an indicative estimate based on the data entered and do not constitute a financial offer.
Advertiser
Call
CONTACT


