Attic Via Bernardino Ferni 5, Gallarate
€ 184.000
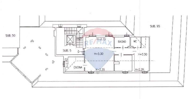
ELEGANTE ATTICO CON TERRAZZO E BOX - DISPONIBILE ANCHE CON ACQUISTO A RISCATTO ATTICO PANORAMA "Un panorama è un silenzio che parla al cuore e agli occhi insieme." A due passi dal centro di GALLARATE proponiamo ATTICO PANORAMA, una soluzione esclusiva al 7° piano di una palazzina moderna del 2008, perfettamente tenuta e servita da ascensore. Disponibile anche con formula di ACQUISTO a RISCATTO ideale per chi vuole programmare lacquisto con serenità. Laccesso è completamente riservato: lascensore porta direttamente al pianerottolo ad uso esclusivo, dove lattico è lunica unità presente. Un plus raro per chi cerca privacy e un contesto silenzioso. Gli interni colpiscono subito per eleganza e luminosità. Il soggiorno, ampio e rifinito con parquet di qualità, gode di una doppia esposizione con accesso al balcone. La cucina, si apre sul terrazzo di circa 50 mq, un vero valore aggiunto con vista panoramica su Gallarate e sul Monte Rosa. La zona notte offre una camera matrimoniale con bagno privato, una cameretta e un secondo bagno con vasca, rifiniture curate e ambienti pensati per garantire comfort e funzionalità. Dotazioni tecniche di livello: infissi in legno con doppi vetri, cappotto esterno, videocitofono e portoncino blindato. A completare la proprietà un comodo box auto. Prenota ora la tua visita e scopri di persona ogni dettaglio. Stai vendendo il tuo immobile e vorresti ottenere le migliori condizioni? Contattaci e saremo lieti di presentarti tutti gli strumenti che possiamo mettere a tua disposizione. Solo noi collaboriamo con tutte le agenzie immobiliari! Informazioni e immagini contenute in questo annuncio hanno scopo prettamente informativo e non costituiscono, in alcun caso, elemento contrattuale.
Main data
| Reference | 39861010-155 |
| Ad date | 26/08/2025 |
| Contract | Sale |
| Typology | Attic |
| Surface | 100 m2 |
| Locals | 3 (2 bedrooms, 1 other), 2 bathrooms, kitchen habitable |
| Plan | 7 from 7 totals |
| Occupied | Free |
| Garage | Single |
Costs
| Price | 184.000 € |
| Price per m2 | 1.840 €/m2 |
Energy efficiency
| Status | Excellent |
| Heating | Autonomous |
| Heating Power Type | Other |
| Energy rating | E |
| Energy Performance Index (IPE) | - |
Floor plans
Virtual tour
Video
Address and map
Via Bernardino Ferni
5, Gallarate
Ad without map,
try asking the advertiser for the position
try asking the advertiser for the position
Mortgage calculation
Selling price:
Advance
20,00
Mortgage
80,00
Rate: -+
Payment: 526 per month
The results are an indicative estimate based on the data entered and do not constitute a financial offer.
Advertiser
Call
CONTACT


