Commercial Premises Via Tiberina, Roma
€ 10.000 per month
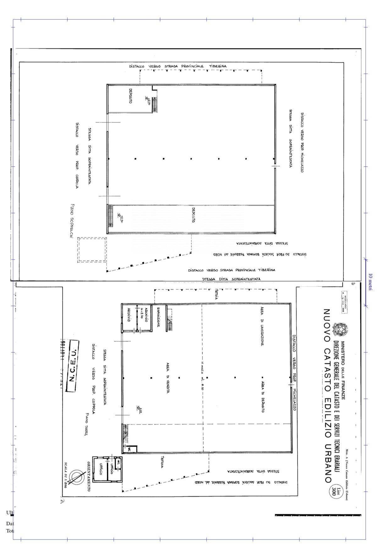
Su via Tiberina fronte strada, con ampio parcheggio si propone in locazione (affitto) Centro Commerciale (categoria catastale D8)
adatto a vendita al pubblico ed alla GDO alimentare o ferramentista, casalinghi, agricola, di circa 1.100 mq + ampi spazi esterni adibiti a parcheggi o tettoie. La posizione è strategica a 2 km da Prima Porta e 5 dal Grande Raccordo Anulare.
A fianco sorge uno dei più grandi campeggi di Roma appena rinnovato che assicura un ulteriore bacino di utenza oltre alla posizione di per se strategica. La struttura richiede ristrutturazione a carico del locatario (affittuario) in virtù di un lungo periodo di canone gratuito che consente di ammortizzare la spesa di ristrutturazione.
Si propone un regolare contratto di anni 6+6 o 9+9. Oltre il periodo di canone gratuito va considerato che il canone richiesto è agevolato per tutta la durata in quanto la mensilità è più bassa di quanto sarebbe con il locale ristrutturato. Vero affare per un'attività commerciale che lì posizionata avrebbe una lunga e florida durata.
adatto a vendita al pubblico ed alla GDO alimentare o ferramentista, casalinghi, agricola, di circa 1.100 mq + ampi spazi esterni adibiti a parcheggi o tettoie. La posizione è strategica a 2 km da Prima Porta e 5 dal Grande Raccordo Anulare.
A fianco sorge uno dei più grandi campeggi di Roma appena rinnovato che assicura un ulteriore bacino di utenza oltre alla posizione di per se strategica. La struttura richiede ristrutturazione a carico del locatario (affittuario) in virtù di un lungo periodo di canone gratuito che consente di ammortizzare la spesa di ristrutturazione.
Si propone un regolare contratto di anni 6+6 o 9+9. Oltre il periodo di canone gratuito va considerato che il canone richiesto è agevolato per tutta la durata in quanto la mensilità è più bassa di quanto sarebbe con il locale ristrutturato. Vero affare per un'attività commerciale che lì posizionata avrebbe una lunga e florida durata.
Main data
| Reference | CBI038-2915-301604 |
| Ad date | 14/08/2025 |
| Contract | Rent |
| Typology | Commercial Premises |
| Surface | 1100 m2 |
| Locals | more than 5 (8 other), 2 bathrooms, kitchen not present |
| Plan | Earth, 1 totals |
| Occupied | Free |
| Garage | Absent |
| Number of parking spaces | 10 |
| Furniture | Absent |
Costs
| Price | 10.000 € per month |
Energy efficiency
| Status | To be restored |
| Heating Power Type | Other |
| Energy rating | G |
| Energy Performance Index (IPE) | 212 kWh/m2 year |
Floor plans
Address and map
Via Tiberina, Roma
Ad without map,
try asking the advertiser for the position
try asking the advertiser for the position
Advertiser
Call
CONTACT


