Independent house Via Trinità SNC, La Maddalena
€ 850.000
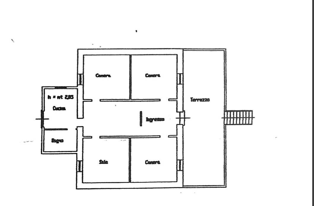
La Maddalena Splendida casa Indipendente con terreno e vista su Caprera Immobiliare Murphy In una zona residenziale dominata da una vista spettacolare sulle isole di Caprera e Santo Stefano, proponiamo in vendita una casa indipendente immersa in un ampio terreno di circa 15.000 mq, ideale per chi cerca privacy, natura e un contesto unico nel cuore dellarcipelago. La proprietà, attualmente non abitata da tempo, si compone di: ampio ingresso, soggiorno con camino, sala, cucina, due camere da letto, bagno e un magazzino di circa 30 mq. A completare limmobile, una splendida terrazza panoramica da cui godere di una meravigliosa vista su alcune delle isole dell'arcipelago. Grazie alla sua posizione in zona urbanisticamente favorevole, limmobile permette un ampliamento fino al 30% della superficie esistente e la realizzazione di una piscina, offrendo ottime opportunità di ristrutturazione e personalizzazione. Strategicamente situata a pochi minuti di auto da Cala Gavetta e da Piazza Umberto I, la casa unisce il fascino del silenzio e della natura con la comodità di raggiungere rapidamente i servizi, i negozi e i ristoranti del centro. Larcipelago di La Maddalena Larcipelago di La Maddalena circondato da un mare limpido e cristallino è situato a nord-est della Sardegna, poco lontano dalla rinomata Costa Smeralda. Fanno parte di questo arcipelago un gruppo di 63 isole e isolotti di varie dimensioni tra cui spiccano le isole di La Maddalena, Santa Maria, Razzoli, Spargi, Caprera, Budelli e Santo Stefano. Isole grandi e piccole, con oltre 180 chilometri di costa che formano, insieme, un autentico capolavoro della natura: rocce scolpite dal vento, spiagge con sabbie bianchissime oppure magicamente rosa, insenature, profondità blu e bassi fondali dove ci si può riflettere come uno specchio. Ad eccezione delle due isole principali, La Maddalena e Caprera collegate via traghetto con il porto di Palau, tutte le altre isole sono raggiungibili solo con imbarcazioni private. Non vi è posto migliore per coloro che amano il mare e la natura.
Main data
| Reference | Residenza Panorama |
| Ad date | 12/08/2025 |
| Contract | Sale |
| Typology | Independent house |
| Surface | 130 m2 |
| Locals | 4 (3 bedrooms, 1 other), 1 bathroom, kitchen habitable |
| Plan | Earth, 1 totals |
| Occupied | Free |
| Number of parking spaces | 4 |
| Furniture | Absent |
Costs
| Price | 850.000 € |
| Price per m2 | 6.538 €/m2 |
Energy efficiency
| Status | To be restored |
| Heating | Absent |
| Heating Power Type | Other |
| Energy rating | G |
| Energy Performance Index (IPE) | - |
Floor plans
Address and map
Via Trinità
SNC, La Maddalena
Ad without map,
try asking the advertiser for the position
try asking the advertiser for the position
Mortgage calculation
Selling price:
Advance
20,00
Mortgage
80,00
Rate: -+
Payment: 2.431 per month
The results are an indicative estimate based on the data entered and do not constitute a financial offer.
Advertiser
Call
CONTACT


