Rustic STRADA PROVINCIALE 13 NC, Trani
€ 500.000
PUGLIA - TRANI - STRADA PROVINCIALE 13 Ti invitiamo a scoprire questa affascinante proprietà attraverso il video di presentazione, per coglierne appieno latmosfera, gli spazi e le potenzialità. Coldwell Banker Gruppo Bodini, propone in vendita un prestigioso centro ippico con villa padronale, dependance, uliveto e ampi spazi funzionali, situato nel cuore della Puglia. Immersa nella quiete della campagna e al contempo perfettamente collegata ai principali centri urbani della zona, la proprietà si estende su una superficie complessiva di circa 14.200 mq, offrendo un connubio ideale tra comfort abitativo, funzionalità operativa e potenzialità imprenditoriale. Il centro ippico è completamente attrezzato e dispone di strutture perfettamente funzionali, tra cui ampie stalle, box per cavalli, selleria, zona lavaggio, paddock e campi da lavoro destinati ad attività equestri e addestramento. Ogni ambiente è stato progettato con attenzione, per garantire il massimo benessere degli animali e lefficienza gestionale delle attività sportive o ricreative. La villa padronale è di circa 218 mq, si presenta in ottime condizioni, con finiture curate e spazi interni ben distribuiti, ed è composta da: ampio soggiorno, cucina abitabile, spaziose camere da letto, bagni, porticati e una zona esterna ben organizzata con pozzo artesiano di proprietà. Accanto alla residenza principale troviamo una dependance di 64 mq, anchessa abitabile, ideale per ospitare familiari, collaboratori o da destinare ad attività ricettive. Completano la proprietà un alloggio dedicato alla guardiania, un deposito agricolo per mezzi e attrezzature, un ampio parcheggio interno accessibile anche ai van e un uliveto produttivo con annesso frutteto, ben curato e con potenziale agricolo. Grazie alla sua conformazione e alla posizione privilegiata, la tenuta si presta a numerose destinazioni duso. Può essere vissuta come una valida opportunità per sviluppare un centro equestre professionale o unattività ricettiva, come bed & breakfast, agriturismo o casa vacanze. Essa offre inoltre la possibilità di realizzare una piscina privata, valorizzando ulteriormente lofferta per un utilizzo turistico o personale. La posizione è un punto di forza ulteriore, situata esattamente al centro tra le quattro città più rilevanti della zona, Andria, Trani, Bisceglie e Corato. Una soluzione completa, versatile e di alto profilo, ideale per chi desidera investire in una proprietà unica, immersa nel verde ma a pochi minuti dalle comodità urbane. Contattaci per ricevere maggiori informazioni o per fissare un appuntamento. Ti aspettiamo nel nostro ufficio di Andria in Via Vittore Pisani,6A.
Main data
| Reference | CBI159-2783-63788 |
| Ad date | 09/08/2025 |
| Contract | Sale |
| Typology | Rustic |
| Surface | 720 m2 |
| Locals | more than 5 (5 bedrooms, 1 other), 4 bathrooms, kitchen habitable |
| Plan | Earth |
| Occupied | Free |
| Garage | Absent |
| Number of parking spaces | 3 |
Costs
| Price | 500.000 € |
| Price per m2 | 694 €/m2 |
Energy efficiency
| Heating | Autonomous |
| Heating Power Type | Gpl |
| Energy rating | G |
| Energy Performance Index (IPE) | 355 kWh/m2 year |
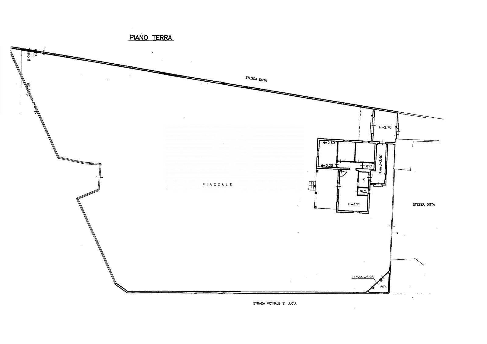
Floor plans
Address and map
STRADA PROVINCIALE 13
NC, Trani
Ad without map,
try asking the advertiser for the position
try asking the advertiser for the position
Mortgage calculation
Selling price:
Advance
20,00
Mortgage
80,00
Rate: -+
Payment: 1.430 per month
The results are an indicative estimate based on the data entered and do not constitute a financial offer.
Advertiser
Call
CONTACT


