Independent house Via Saluzzo, 59A, Costigliole Saluzzo
€ 337.000
COSTIGLIOLE SALUZZO
In posizione strategica, comoda sia al Saluzzese che a Cuneo, proponiamo in vendita una splendida villa indipendente circondata dal verde, a pochi passi dal centro di Costigliole Saluzzo.
La proprietà si raggiunge tramite un comodo accesso carrabile con cancello elettrico, affiancato da un ingresso pedonale con portoncino. Il giardino, ampio e curato, abbraccia l’abitazione su tutti i lati, alternando spazi a prato a zone piantumate, per un perfetto equilibrio tra natura e vivibilità.
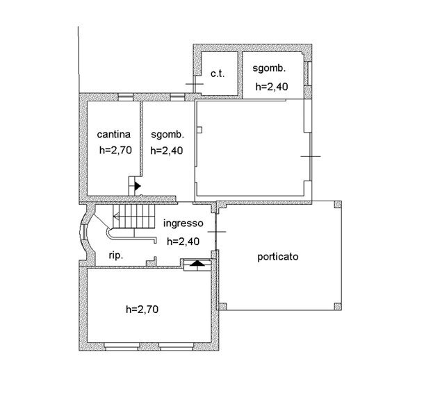
Un porticato coperto, ideale anche come area di sosta per l’auto, introduce al piano terra della casa, dove troviamo una tavernetta spaziosa, perfetta come cucina estiva o luogo conviviale per ospitare amici e famiglia. Completano il piano un bagno con doccia, un box auto, un vano ripostiglio e la cantina.
Una scenografica scala circolare conduce al piano primo, cuore dell’abitazione. Qui la cucina moderna si apre sul soggiorno tramite una luminosa porta a vetri. Il soggiorno, accogliente e raffinato, è impreziosito da parquet in legno massello e stufa a pellets, creando un’atmosfera calda e familiare.
A questo livello troviamo inoltre una camera da letto, perfetta anche come studio, un bagno elegante con vasca idromassaggio e cromoterapia, e un vano lavanderia. Il terrazzo, di generose dimensioni, è accessibile sia dal soggiorno che dalla cucina, ideale per pranzi all’aperto e momenti di relax. Un ulteriore balcone si affaccia sul lato opposto della casa, regalando ulteriore luce e respiro agli ambienti.
Il piano secondo, parzialmente mansardato, ospita due camere da letto, di cui una dotata di cabina armadio privata, un bagno con doccia idromassaggio e un locale aggiuntivo da destinare a cabina armadio o ripostiglio.
A completare la proprietà, nel giardino, si trova un fabbricato accessorio ideale come magazzino attrezzi o piccolo deposito, oltre al locale caldaia.
PER QUALSIASI INFORMAZIONE NON ESITATE A CONTATTARCI. SIAMO DISPONIBILI A FAR VISIONARE L'IMMOBILE DAL LUNEDI'ALLA DOMENICA.
Seguiteci sui social:
Facebook (https://www.facebook.com/GruppoMonvisoImmobiliare)
Instagram (https://www.instagram.com/gruppomonvisoimmobiliare)
In posizione strategica, comoda sia al Saluzzese che a Cuneo, proponiamo in vendita una splendida villa indipendente circondata dal verde, a pochi passi dal centro di Costigliole Saluzzo.
La proprietà si raggiunge tramite un comodo accesso carrabile con cancello elettrico, affiancato da un ingresso pedonale con portoncino. Il giardino, ampio e curato, abbraccia l’abitazione su tutti i lati, alternando spazi a prato a zone piantumate, per un perfetto equilibrio tra natura e vivibilità.
Un porticato coperto, ideale anche come area di sosta per l’auto, introduce al piano terra della casa, dove troviamo una tavernetta spaziosa, perfetta come cucina estiva o luogo conviviale per ospitare amici e famiglia. Completano il piano un bagno con doccia, un box auto, un vano ripostiglio e la cantina.
Una scenografica scala circolare conduce al piano primo, cuore dell’abitazione. Qui la cucina moderna si apre sul soggiorno tramite una luminosa porta a vetri. Il soggiorno, accogliente e raffinato, è impreziosito da parquet in legno massello e stufa a pellets, creando un’atmosfera calda e familiare.
A questo livello troviamo inoltre una camera da letto, perfetta anche come studio, un bagno elegante con vasca idromassaggio e cromoterapia, e un vano lavanderia. Il terrazzo, di generose dimensioni, è accessibile sia dal soggiorno che dalla cucina, ideale per pranzi all’aperto e momenti di relax. Un ulteriore balcone si affaccia sul lato opposto della casa, regalando ulteriore luce e respiro agli ambienti.
Il piano secondo, parzialmente mansardato, ospita due camere da letto, di cui una dotata di cabina armadio privata, un bagno con doccia idromassaggio e un locale aggiuntivo da destinare a cabina armadio o ripostiglio.
A completare la proprietà, nel giardino, si trova un fabbricato accessorio ideale come magazzino attrezzi o piccolo deposito, oltre al locale caldaia.
PER QUALSIASI INFORMAZIONE NON ESITATE A CONTATTARCI. SIAMO DISPONIBILI A FAR VISIONARE L'IMMOBILE DAL LUNEDI'ALLA DOMENICA.
Seguiteci sui social:
Facebook (https://www.facebook.com/GruppoMonvisoImmobiliare)
Instagram (https://www.instagram.com/gruppomonvisoimmobiliare)
Main data
| Reference | ID2795537 |
| Ad date | 21/07/2025 |
| Contract | Sale |
| Typology | Independent house |
| Surface | 320 m2 |
| Locals | more than 5 (3 bedrooms, 6 other), 3 bathrooms, kitchen habitable |
| Plan | On several levels, 3 totals |
| Construction type | Signorile |
| Occupied | Free |
| Number of terraces | 1 |
| Number of balconies | 1 |
| Box number | 1 |
| Garage | Double |
| Furniture | Partial |
| Lati liberi | Quattro |
| Impianto TV | Singolo |
Costs
| Price | 337.000 € |
| Price per m2 | 1.053 €/m2 |
Energy efficiency
| Year built | 1990 |
| Status | Renovated |
| Heating | Autonomous |
| Heating System Type | to radiators |
| Heating Power Type | Methane |
| External frames | Double glass / Wood |
| Energy rating | D |
| Energy Performance Index (IPE) | 136.74 kWh/m2 year |
Floor plans
Address and map
Via Saluzzo, 59A, Costigliole Saluzzo
Mortgage calculation
Selling price:
Advance
20,00
Mortgage
80,00
Rate: -+
Payment: 964 per month
The results are an indicative estimate based on the data entered and do not constitute a financial offer.
Advertiser
Call
CONTACT


