Four-room apartment via Terenzio Mamiani, 2, Genova (neighborhood Sampierdarena)
€ 69.000Sampierdarena via T. Mamiani 6,5 vani, termoautonomo
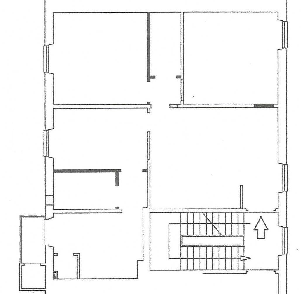
Sampierdarena, via Terenzio Mamiani, in posizione centralissima adiacente stazione ferroviaria e Piazza Vittorio Veneto, vendesi, appartamento 6,5 vani di ampia metratura, posto al quarto piano, e composto da: grande ingresso in soggiorno, cucina abitabile, tre camere da letto, bagno, dispensa e balcone; soleggiato. Lappartamento risulta in buono stato, dotato di impianto elettrico sfilabile, finestre in alluminio, pavimento in ceramica, bagno e cucina in ottimo stato; riscaldamento autonomo. Basse spese di amministrazione. Comodissimo mezzi pubblici e negozi. Richiesta € 69.000 trattabili.
Main data
| Reference | 6,5 vani Mamiani |
| Ad date | 23/07/2025 |
| Contract | Sale |
| Typology | Apartment |
| Surface | 105 m2 |
| Locals | 4 (3 bedrooms, 1 other), 1 bathroom, kitchen habitable |
| Plan | 4 from 6 totals |
| Construction type | Average |
| Number of balconies | 1 |
| Garage | Absent |
| Furniture | Absent |
Costs
| Price | 69.000 € |
| Price per m2 | 657 €/m2 |
| Condominium fees | €100,00/month |
Energy efficiency
| Year built | 1950 |
| Status | Good |
| Heating | Autonomous |
| Energy rating | F |
| Energy Performance Index (IPE) | 85.33 kWh/m2 year |
Floor plans
Address and map
via Terenzio Mamiani, 2, Genova - neighborhood Sampierdarena
Mortgage calculation
Selling price:
Advance
20,00
Mortgage
80,00
Rate: -+
Payment: 197 per month
The results are an indicative estimate based on the data entered and do not constitute a financial offer.
Advertiser
Call
CONTACT


