Independent house via Massimo d'Azeglio 4, San Damiano d'Asti
€ 250.000
Nella zona residenziale del comune di San Damiano d'Asti, a pochi minuti a piedi dal centro, in posizione tranquilla e soleggiata, proponiamo in vendita casa del 1967 indipendente, libera su 4 lati, con giardino privato tutto recintato di circa mq. 500, perfetta per chi desidera spazio e la possibilità di personalizzare internamente la propria casa ideale.
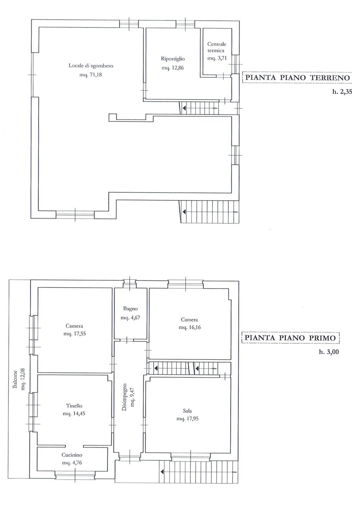
Rinnovata impiantisticamente usufruendo del bonus 110 % nel 2023, questa abitazione si sviluppa su due livelli, offrendo una superficie di totale di circa 170 mq., suddivisi tra piano terra, adibito a garage, locale di sgombero e locale tecnico (90 mq. circa), e primo piano, al quale si accede sia tramite una scala interna che sale dal garage, sia da una scala esterna posizionata in facciata, dove si trova lalloggio luminoso e con ampie camere di circa mq. 85 mq.
Lalloggio è composto da ingresso, tinello e cucinino, sala, due camere da letto e bagno con finestra; balcone su lato est.
Limmobile, internamente in stato originale, rappresenta unottima opportunità per una famiglia che vuole ristrutturarla secondo i propri gusti e necessità.
La ristrutturazione si è concentrata sullefficientamento energetico tantè che la casa è in classe A.
Descrizione degli interventi di riqualificazione:
Isolamento termico del solaio di copertura;
Impianto fotovoltaico di potenza di picco 9,02 [kW];
Batterie sistema di accumulo di capacità 30,00 [kWh];
Caldaia a condensazione BAXI LUNA DUO-TEC E208 alimentazione gas metano;
Pompa di Calore: Tipo Aria / Acqua 11,39 [kW];
P. Elettrica assorbita: 2,45 [kW];
Scaldacqua a pompa di calore TRI-BE 250 dedicati alla produzione di acqua calda sanitaria - Capacità accumulo: 250,00 [l];
Colonnina per la ricarica dei veicoli elettrici;
Finestre/Porte finestre in PVC con doppi vetri;
Persiane avvolgibili in alluminio preverniciato;
Tende veneziane esterne da sole a schermatura solare;
Addolcitore acqua;
Porta dingresso blindata.
Rinnovata impiantisticamente usufruendo del bonus 110 % nel 2023, questa abitazione si sviluppa su due livelli, offrendo una superficie di totale di circa 170 mq., suddivisi tra piano terra, adibito a garage, locale di sgombero e locale tecnico (90 mq. circa), e primo piano, al quale si accede sia tramite una scala interna che sale dal garage, sia da una scala esterna posizionata in facciata, dove si trova lalloggio luminoso e con ampie camere di circa mq. 85 mq.
Lalloggio è composto da ingresso, tinello e cucinino, sala, due camere da letto e bagno con finestra; balcone su lato est.
Limmobile, internamente in stato originale, rappresenta unottima opportunità per una famiglia che vuole ristrutturarla secondo i propri gusti e necessità.
La ristrutturazione si è concentrata sullefficientamento energetico tantè che la casa è in classe A.
Descrizione degli interventi di riqualificazione:
Isolamento termico del solaio di copertura;
Impianto fotovoltaico di potenza di picco 9,02 [kW];
Batterie sistema di accumulo di capacità 30,00 [kWh];
Caldaia a condensazione BAXI LUNA DUO-TEC E208 alimentazione gas metano;
Pompa di Calore: Tipo Aria / Acqua 11,39 [kW];
P. Elettrica assorbita: 2,45 [kW];
Scaldacqua a pompa di calore TRI-BE 250 dedicati alla produzione di acqua calda sanitaria - Capacità accumulo: 250,00 [l];
Colonnina per la ricarica dei veicoli elettrici;
Finestre/Porte finestre in PVC con doppi vetri;
Persiane avvolgibili in alluminio preverniciato;
Tende veneziane esterne da sole a schermatura solare;
Addolcitore acqua;
Porta dingresso blindata.
Main data
| Reference | 14820 |
| Ad date | 23/07/2025 |
| Contract | Sale |
| Typology | Independent house |
| Surface | 170 m2 |
| Locals | more than 5 (2 bedrooms, 5 other), 1 bathroom, kitchen habitable |
| Plan | Entire building, 2 totals |
| Construction type | Signorile |
| Occupied | Free |
| Garage | Double |
| Number of parking spaces | 2 |
| Furniture | Absent |
Costs
| Price | 250.000 € |
| Price per m2 | 1.471 €/m2 |
Energy efficiency
| Status | To be restored |
| Heating | Autonomous |
| Energy rating | A4 |
Floor plans
Address and map
via Massimo d'Azeglio
4, San Damiano d'Asti
Ad without map,
try asking the advertiser for the position
try asking the advertiser for the position
Mortgage calculation
Selling price:
Advance
20,00
Mortgage
80,00
Rate: -+
Payment: 715 per month
The results are an indicative estimate based on the data entered and do not constitute a financial offer.
Advertiser

Internau Monferrato - RBVG SRL
Localita' Viatosto, 30, Asti
Show Phone
Show Mobile
Call
CONTACT

