Three-room apartment Roncadelle
€ 340.000Roncadelle nuovo trilocale con giardino privato e box
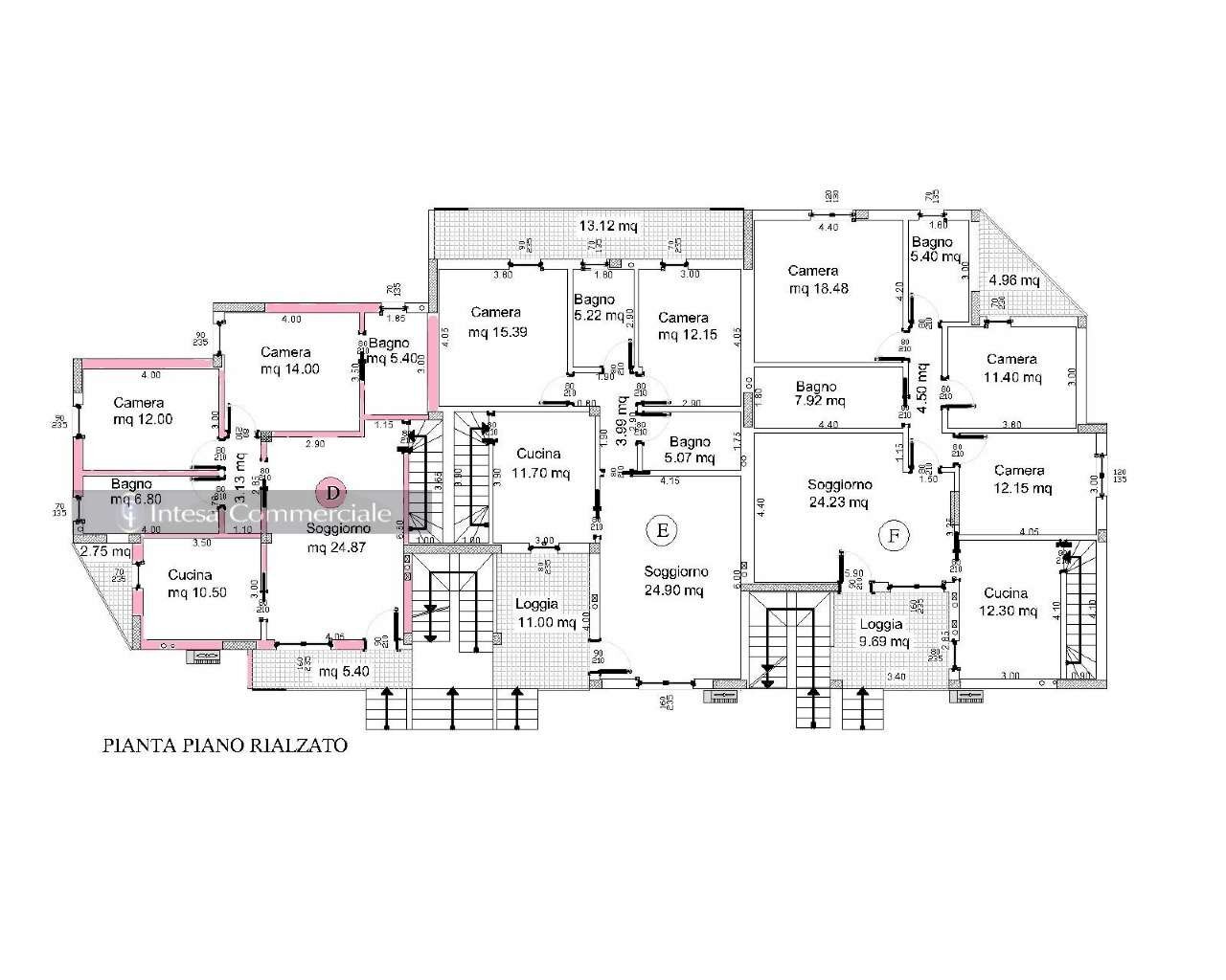
Roncadelle (BS) in nuova palazzina di 6 unita' (costruzione antisismica, fabbricato coibentato, impianto fotovoltaico 2,85 Kwatt per unità) nuovi trilocali e quadrilocali di varie caratteristiche Soluzione al piano terra Tipologia D con ingresso pedonale indipendente e giardino privato : Trilocale composto da soggiorno con balcone, cucina abitabile con balconcino, 2 camere, 2 bagni finestrati, disimpegno, giardino privato , box doppio ( mq 40 ) 340.000 possibilita' cantina e posti auto Consegna giugno 2026; finiture personalizzabili; termoautonomi, climatizzati; classe energetica A/4 ; Detrazioni fiscali, bonus garage Intesa Commerciale 030-2423333 Cod. B990 D Intesa Commerciale , opera da decenni sul mercato immobiliare Bresciano e, forte delle migliaia di affari conclusi senza alcun contenzioso, rappresenta una soluzione solida e professionale a qualsiasi problema di acquisto, vendita immobiliare in città e provincia. La visione strategica del business, da sempre prerogativa del management, permette ad Intesa Commerciale di operare in perfetto equilibrio fra dinamismo ed oculatezza nelle valutazioni: sono queste le caratteristiche che hanno permesso all'agenzia di eccellere nel settore dell' intermediazione e della compravendita immobiliare . Intesa Commerciale è sinonimo di serietà e professionalità nell'offerta di un servizio completo e personalizzato, a cura di personale qualificato che garantisce la migliore assistenza dalle fasi preliminari di consulenza, ricerca e mediazione, alle fasi finali di stipula del contratto e al rogito notarile.
Main data
| Reference | B990 D |
| Ad date | 16/07/2025 |
| Contract | Sale |
| Typology | Apartment |
| Surface | 134 m2 |
| Locals | 3 (2 bedrooms, 1 other), 2 bathrooms, kitchen habitable |
| Plan | 2 totals |
| Number of balconies | 1 |
| Garage | Double |
| Furniture | Absent |
Costs
| Price | 340.000 € |
| Price per m2 | 2.537 €/m2 |
Energy efficiency
| Heating | Autonomous |
| Energy rating | A4 |
Floor plans
Address and map
Roncadelle
Ad without map,
try asking the advertiser for the position
try asking the advertiser for the position
Mortgage calculation
Selling price:
Advance
20,00
Mortgage
80,00
Rate: -+
Payment: 972 per month
The results are an indicative estimate based on the data entered and do not constitute a financial offer.
Advertiser

Intesa Commerciale
Via Cefalonia 55, Brescia
Show Phone
Call
CONTACT

