Independent house PIAZZA DEI TIGLI 10, Vazzola
€ 570.000
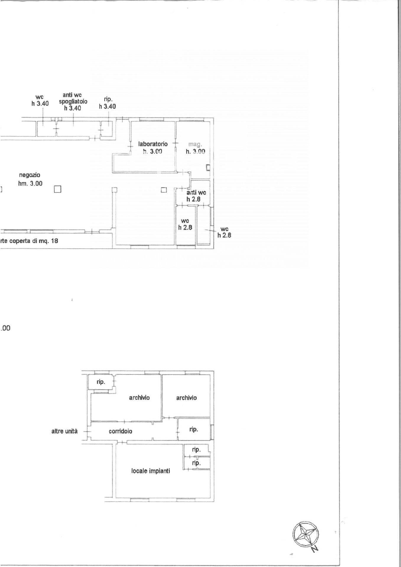
In Vendita Intera Palazzina a Tezze di Vazzola Per totali 380 mq. commerciali al prezzo di 570.000,00 composta da: Piano terra: 190 mq. con attività di Gelateria Bar, completamente arredata e attrezzata per la produzione del gelato con terrazza sui tre lati euro 230.000,00 Immobile, 120.000,00 attività. Piano Primo: Appartamento di 110 mq. 3 Camere, 2 Bagni, Cucina Abitabile, Soggiorno, Ripostiglio Locato a 700,00 euro mensili fino al 2028, prezzo 150.000,00 Piano Primo: Appartamento di 80 mq. 2 Camere, Soggiorno-Cottura, 2 Bagni, da ristrutturare libero da subito prezzo 70.000,00 Il prezzo comprende l'intera Palazzina con anche l'attivita' di Bar Gelateria con laboratorio attrezzato La vendita può anche essere separata. Per informazioni e visione dellimmobile, chiamare lagenzia Impresa di Silea via Callalta 40 al numero 0422 460300 Per questa e altre proposte in vendita visitate il nostro sito www.impresaimmobiliare.com RIF.: I/DBA603 For more information, please contact Impresa Real Estate Agency, located in Silea via callalta 40 telephone number +39 0422 460300 Please, visit our website: www.impresaimmobiliare.com Rif: I/DBA603
Main data
| Reference | I/DBA603 |
| Ad date | 14/07/2025 |
| Contract | Sale |
| Typology | Independent house |
| Surface | 380 m2 |
| Locals | more than 5 (4 bedrooms, 12 other), 4 bathrooms, kitchen on sight |
| Plan | 1 from 2 totals |
| Construction type | Signorile |
| Occupied | Free |
| Garage | Absent |
| Number of parking spaces | 10 |
| Furniture | Partial |
Costs
| Price | 570.000 € |
| Price per m2 | 1.500 €/m2 |
Energy efficiency
| Status | Excellent |
| Heating | Autonomous |
| Energy rating | C |
| Energy Performance Index (IPE) | - |
Floor plans
Address and map
PIAZZA DEI TIGLI
10, Vazzola
Ad without map,
try asking the advertiser for the position
try asking the advertiser for the position
Mortgage calculation
Selling price:
Advance
20,00
Mortgage
80,00
Rate: -+
Payment: 1.630 per month
The results are an indicative estimate based on the data entered and do not constitute a financial offer.
Advertiser
Call
CONTACT


