Independent house Via De Amicis 56, Salve
€ 180.000
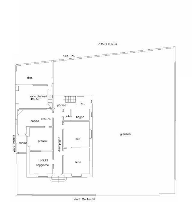
A Salve, meravigliosa città del Salento tra le più gettonate durante l'estate, disponibile una splendida villa indipendente di ampia metratura. L'immobile, della superficie coperta di circa 250 mq e oggetto di lavori di trasformazione ancora in corso, si compone di due ingressi, un'ampia zona living, cucina, bagno di servizio, ripostiglio, lavanderia, due camere da letto (di cui una con cabina armadio) bagno, locale deposito con sovrastante vano ammezzato. Completa l'edificio un locale garage con accesso autonomo da Via V. Veneto. L'immobile appunto è stato oggetto di lavori di ristrutturazione e in particolare è stata effettuata la sostituzione del solaio con conseguente nuovo lastrico solare e sono state effettuate delle modifiche interne con apertura di una grande porta vetrata sul muro lato giardino. Sul prospetto principale di Via De Amicis, vi è una veranda e inoltre, nel progetto autorizzato è prevista la realizzazione di un ulteriore zona d'ombra di 35 metri quadrati lungo il lato del giardino. Il giardino privato ricade nello strumento urbanistico del comune di Salve in zona edificabile pertanto è possibile effettuare un ampliamento all'edificio esistente per avere una casa più grande o per ricavare due unità abitative completamente autonome; inoltre è possibile realizzare una piscina. Su entrambe le strade sono presenti i tronchi principali dei servizi di acquedotto, fognatura e gas metano pertanto si potrà richiedere l'allaccio. La soluzione proposta è l'investimento ideale per chi desidera realizzare un'abitazione esclusiva o una struttura ricettiva unica nel suo genere.
Main data
| Reference | 87 |
| Ad date | 11/07/2025 |
| Contract | Sale |
| Typology | Independent house |
| Surface | 270 m2 |
| Locals | more than 5 (4 bedrooms, 4 other), 3 bathrooms, kitchen habitable |
| Occupied | Free |
| Garage | Double |
| Furniture | Absent |
Costs
| Price | 180.000 € |
| Price per m2 | 667 €/m2 |
Energy efficiency
| Status | Good |
| Heating | Absent |
| Heating Power Type | Other |
| Energy rating | G |
| Energy Performance Index (IPE) | - |
Floor plans
Address and map
Via De Amicis
56, Salve
Ad without map,
try asking the advertiser for the position
try asking the advertiser for the position
Mortgage calculation
Selling price:
Advance
20,00
Mortgage
80,00
Rate: -+
Payment: 515 per month
The results are an indicative estimate based on the data entered and do not constitute a financial offer.
Advertiser
Tommaso Provenzano IMMOBILIARE
Via Kennedy 1, Gallipoli
Show Mobile
Tommaso Provenzano IMMOBILIARE
Show Phone
Call
CONTACT

