Three-room apartment Via Trincea delle Frasche, Fiumicino
€ 259.000
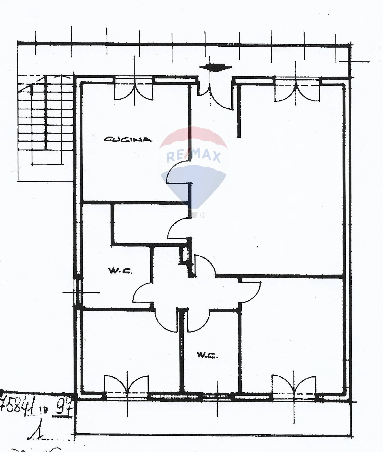
Fiumicino Via Trincea delle Frasche - Ampio trilocale ristrutturato al secondo ed ultimo piano In zona centrale e ben servita di Fiumicino, proponiamo in vendita un ampio trilocale di 123 mq commerciali (110 mq calpestabili), sito al secondo ed ultimo piano senza ascensore di una palazzina in tinta. L'appartamento, ristrutturato nel 2005, gode di una tripla esposizione (sud, est, nord) e si presenta in ottime condizioni interne. La composizione è la seguente: - Ingresso da un balcone chiuso - Ampio salone con camino - Cucina abitabile - Corridoio con armadio a muro - Camera matrimoniale con uscita su balcone con affaccio su Via Trincea delle Frasche - Seconda camera da letto - Due bagni, entrambi con finestra (uno con vasca, uno con box doccia) - Vano ripostiglio/lavanderia Dotazioni: - Portoncino blindato - Infissi in alluminio con doppi vetri - Zanzariere - Impianto di climatizzazione - Riscaldamento autonomo - Impianto di allarme Contesto tranquillo e residenziale, con tutti i principali servizi a portata di mano: scuole, supermercati, fermate autobus, negozi, farmacia. La posizione è strategica anche per chi necessita di collegamenti rapidi con laeroporto di Fiumicino, le autostrade e il litorale. Prezzo richiesto: 259.000 Per maggiori informazioni o per prenotare una visita, non esitare a contattarci.
Main data
| Reference | 38081001-157 |
| Ad date | 02/07/2025 |
| Contract | Sale |
| Typology | Apartment |
| Surface | 123 m2 |
| Locals | 3 (2 bedrooms, 1 other), 2 bathrooms, kitchen habitable |
| Plan | 2 from 2 totals |
| Construction type | Signorile |
| Occupied | Free |
| Garage | Absent |
| Furniture | Absent |
Costs
| Price | 259.000 € |
| Price per m2 | 2.106 €/m2 |
Energy efficiency
| Status | Good |
| Heating | Autonomous |
| Heating Power Type | Other |
| Energy rating | G |
| Energy Performance Index (IPE) | - |
Floor plans
Virtual tour
Address and map
Via Trincea delle Frasche, Fiumicino
Ad without map,
try asking the advertiser for the position
try asking the advertiser for the position
Mortgage calculation
Selling price:
Advance
20,00
Mortgage
80,00
Rate: -+
Payment: 741 per month
The results are an indicative estimate based on the data entered and do not constitute a financial offer.
Advertiser

RE/MAX Aurea
Via Giorgio Giorgis, 126, Fiumicino
Show Phone
Show Mobile
Call
CONTACT

