Apartment Riccione
€ 1.600.000
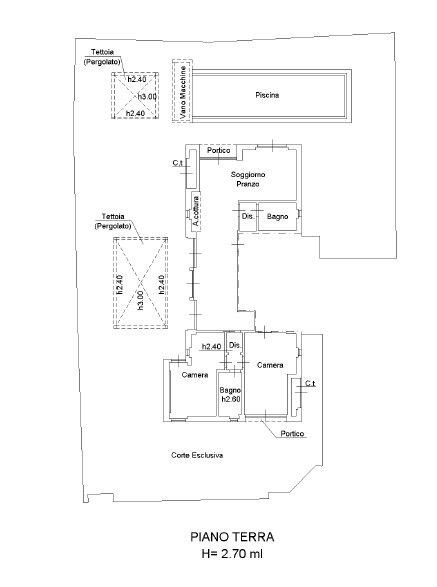
RICCIONE ZONA CENTRALISSIMA - VIALE CECCARINI SOPRA LA STAZIONE .In prestigiosa palazzina di 3 piani con ascensore, situata in una delle zone più belle e più tranquille di Riccione, è ora disponibile per la vendita un elegante e prestigioso appartamento di circa 150 mq con piscina riscaldata 11x3 e 500 mq di incantevole giardino privato . Limmobile, ricavato dallunione di due appartamenti nel 2020, è stato integralmente ristrutturato con materiali di pregio e finiture di alto livello e si presenta suddiviso in una splendida zona giorno con area divani, una pratica zona pranzo con accesso diretto al giardino, una funzionale cucina moderna ad angolo, e una zona notte composta da due ampie camere da letto matrimoniali e un bagno finestrato con doccia walk-in. Nella zona giorno è presente un secondo bagno finestrato con doccia. Questo raffinato appartamento è circondato da un curatissimo giardino con sistema antizanzare automatico per consentire il massimo comfort nelle aree esterne in qualsiasi stagione e in qualsiasi orario. Un elegante pergolato di 20 mq con pannelli orientabili, sistema di riscaldamento e tende frangivento rendono il giardino un luogo accogliente sia nelle giornate più fredde sia in quelle più calde. Aria condizionata di ultima generazione in tutti gli ambienti, riscaldamento autonomo a pavimento con doppio impianto, oscuranti elettrici, infissi ad alto isolamento termoacustico, impianto di allarme perimetrale e doppio ingresso con porte blindate e videocitofono ne fanno una residenza sicura, dalle massime prestazioni tecnologiche. Completa l’immobile un garage doppio di notevole dimensioni, perfetto per auto grandi più eventuali motorini/biciclette. Classe energetica B. Per ulteriori informazioni e visite contattare Paola al 3475131850
Main data
| Reference | SOF024 |
| Ad date | 19/05/2025 |
| Contract | Sale |
| Typology | Apartment |
| Surface | 180 m2 |
| Locals | 2 bathrooms |
Costs
| Price | 1.600.000 € |
| Price per m2 | 8.889 €/m2 |
Energy efficiency
| Energy rating | B |
Floor plans
Address and map
Riccione
Mortgage calculation
Selling price:
Advance
20,00
Mortgage
80,00
Rate: -+
Payment: 4.576 per month
The results are an indicative estimate based on the data entered and do not constitute a financial offer.
Advertiser
Call
CONTACT


