Apartment Bologna
€ 320.000
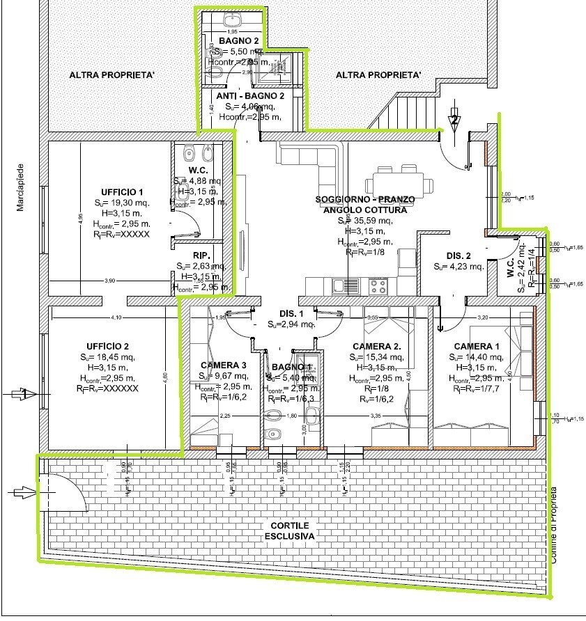
Appartamento in vendita a Bologna: via Fioravanti di fronte al giardino Donatori di sangue comodo ai servizi ed al centro città , proponiamo in vendita: appartamento di 128 mq in completa ristrutturazione composto da: ingresso, sala di 36 mq, due camere matrimoniali, camera singola, due bagni, lavanderia. Riscaldamento autonomo, predisposizione aria condizionata,. Ottimo capitolato Rif 02m022 euro 320.000,00
Main data
| Reference | 02M022 |
| Ad date | 27/05/2025 |
| Contract | Sale |
| Typology | Apartment |
| Surface | 128 m2 |
| Locals | 3 bathrooms |
Costs
| Price | 320.000 € |
| Price per m2 | 2.500 €/m2 |
Energy efficiency
| Energy rating | Property exempt from energy certification |
Floor plans
Address and map
Bologna
Mortgage calculation
Selling price:
Advance
20,00
Mortgage
80,00
Rate: -+
Payment: 915 per month
The results are an indicative estimate based on the data entered and do not constitute a financial offer.
Advertiser
Call
CONTACT


