Apartment via Linda Rovera, 30, Castronno
€ 69.000**Casa Indipendente in Vendita - Potenziale da Sfruttare!**
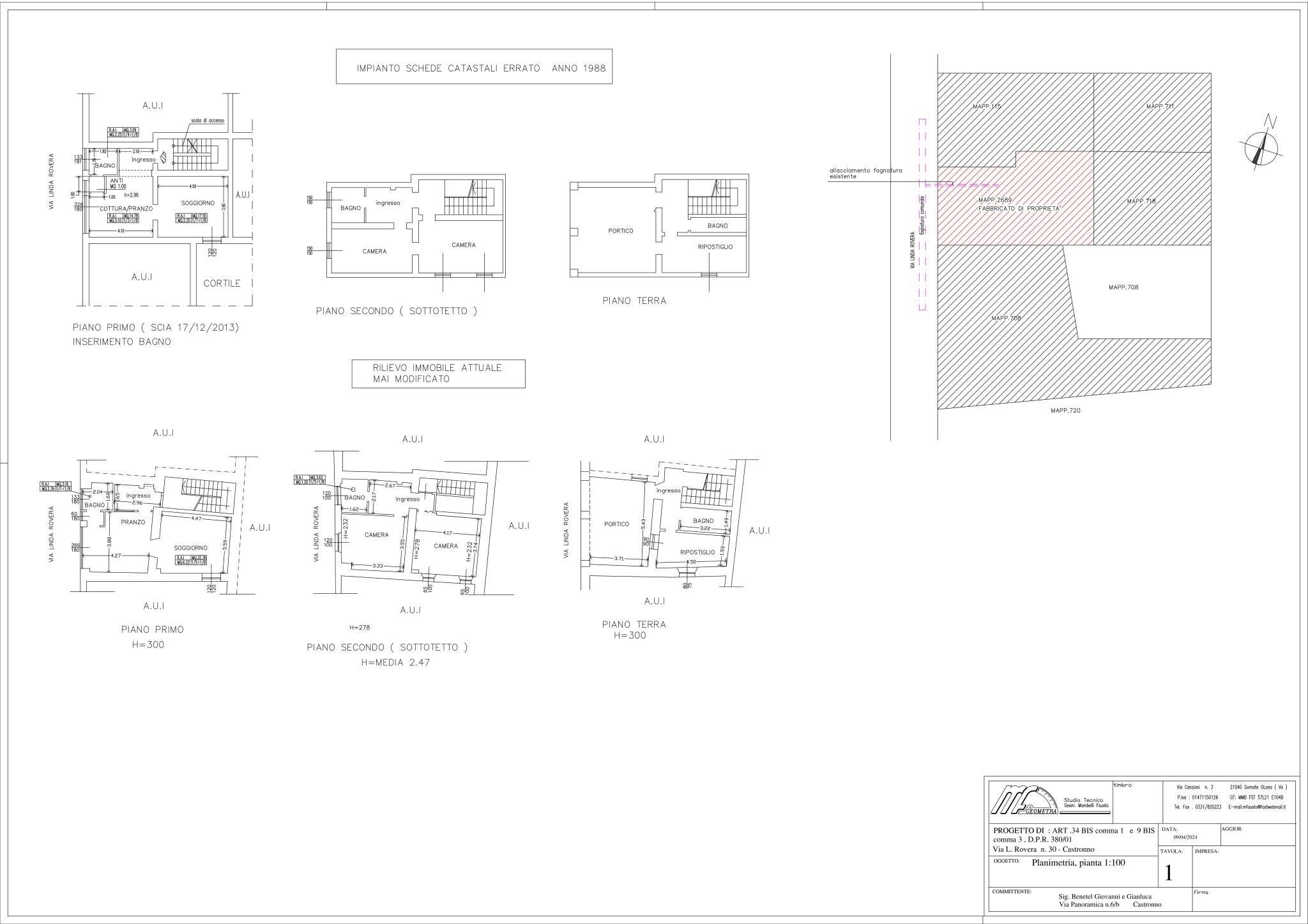
**Casa Indipendente in Vendita - Potenziale da Sfruttare!** Scopri questa affascinante porzione di casa da ristrutturare, situata in una zona tranquilla e ben collegata. Con una superficie di 150 mq, l'immobile si sviluppa su tre piani, ognuno dei quali è dotato di attacchi per cucina, offrendo la possibilità di creare vari appartamentini monolocali. Ideale per chi cerca un'opportunità di investimento o per una famiglia numerosa! Al piano terra, una grande veranda accoglie gli ospiti, con la possibilità di trasformarla in un box doppio. I tre bagni e i tre soggiorni garantiscono comfort e spazio per tutti. Inoltre, il sottotetto agibile rappresenta un ulteriore valore aggiunto, perfetto per ricavare ulteriori ambienti o semplicemente per sfruttare lo spazio in modo creativo. Costruita nel 1950, questa casa ha bisogno di una ristrutturazione che possa valorizzarne il potenziale. Con un riscaldamento a pompa di calore e gas naturale, la classe energetica G offre ampie possibilità di miglioramento. Non perdere l'occasione di visitarla: è assolutamente da vedere! Contattaci per maggiori informazioni e per prenotare una visita!
Main data
| Reference | CASTRONNO 69 |
| Ad date | 18/06/2025 |
| Contract | Sale |
| Typology | Apartment |
| Surface | 150 m2 |
| Locals | more than 5 (3 bedrooms, 3 other), 3 bathrooms, kitchen habitable |
| Plan | 1 from 3 totals |
| Construction type | Popular |
| Number of parking spaces | 2 |
| Furniture | Absent |
Costs
| Price | 69.000 € |
| Price per m2 | 460 €/m2 |
Energy efficiency
| Year built | 1950 |
| Status | To be restored |
| Heating | Autonomous |
| Energy rating | G |
| Energy Performance Index (IPE) | 175 kWh/m2 year |
Floor plans
Address and map
via Linda Rovera, 30, Castronno
Mortgage calculation
Selling price:
Advance
20,00
Mortgage
80,00
Rate: -+
Payment: 197 per month
The results are an indicative estimate based on the data entered and do not constitute a financial offer.
Advertiser

Antares sas
Viale Milano 2, Gallarate
Show Phone
Call
CONTACT

