Villa Via Quartiere, Portomaggiore
€ 135.000
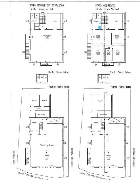
In vendita a Runco, nel comune di Portomaggiore, fabbricato di circa 300 mq attualmente ad uso commerciale. L'immobile è indipendente e libero su quattro lati, è disposto su due livelli e offre la possibilità di essere trasformato in abitativo (con progetto già esistente e visionabile). Al piano terra è presente un ampio salone con cucina a vista, ideale per attività di ristorazione, un ampio ripostiglio e due bagni. Al piano superiore, con ingresso indipendente tramite scala esterna, si trova un'altra sala molto ampia, una camera, cucina, 2 bagni e un balcone. All'esterno si trova lo scoperto privato di circa 200 mq e un magazzino di 40 mq.
Prenota ora la tua visita!
Agenzia Immobiliare Bozzolani
www.bozzolani.it
0532 206803 | 328 8828932
Via Garibaldi 79/a 44121 Ferrara
Prenota ora la tua visita!
Agenzia Immobiliare Bozzolani
www.bozzolani.it
0532 206803 | 328 8828932
Via Garibaldi 79/a 44121 Ferrara
Main data
| Reference | 128bb |
| Ad date | 19/06/2025 |
| Contract | Sale |
| Typology | Villa |
| Surface | 300 m2 |
| Locals | 2 (1 bedroom, 1 other), 3 bathrooms, kitchen not present |
| Plan | Earth, 2 totals |
| Construction type | Signorile |
| Occupied | Free |
| Garage | Absent |
| Furniture | Absent |
Costs
| Price | 135.000 € |
| Price per m2 | 450 €/m2 |
Energy efficiency
| Status | To be restored |
| Heating | Autonomous |
| Energy rating | G |
| Energy Performance Index (IPE) | - |
Floor plans
Video
Address and map
Via Quartiere, Portomaggiore
Ad without map,
try asking the advertiser for the position
try asking the advertiser for the position
Mortgage calculation
Selling price:
Advance
20,00
Mortgage
80,00
Rate: -+
Payment: 386 per month
The results are an indicative estimate based on the data entered and do not constitute a financial offer.
Advertiser

Agenzia Immobiliare Bozzolani srl
Via Garibaldi, 79/a, Ferrara
Show Phone
Show Mobile
Call
CONTACT

