Independent house vico Sparviero 8, Noto
€ 330.000
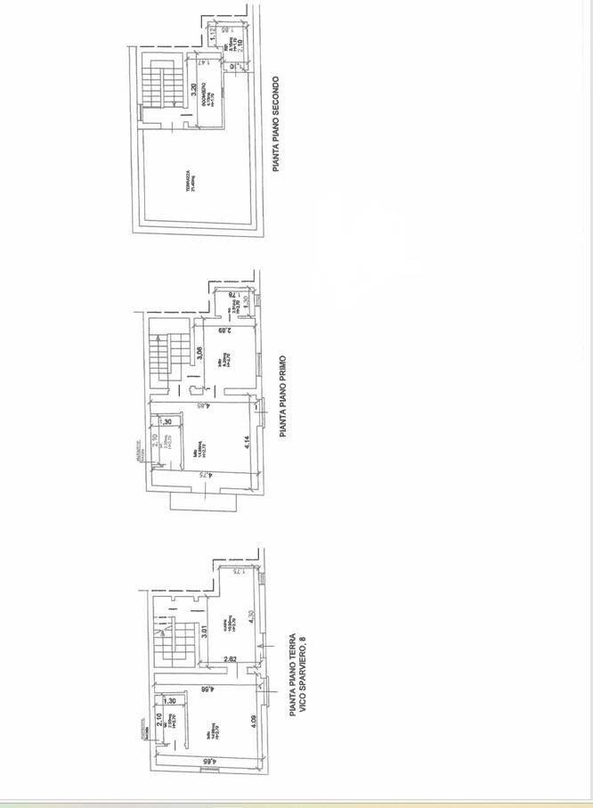
Nel cuore di un suggestivo quartiere storico, caratterizzato da un incantevole intreccio di vicoletti e scorci pittoreschi, proponiamo in vendita una splendida casa indipendente finemente ristrutturata, distribuita su tre livelli, attualmente adibita a Bed & Breakfast. Limmobile, curato in ogni dettaglio, unisce il fascino dellarchitettura storica con comfort moderni. Al piano terra troviamo unaccogliente zona ingresso con reception e una prima camera con bagno privato, ideale per gli ospiti. Il primo piano ospita due camere matrimoniali, entrambe con bagno en-suite, arredate con gusto e dotate di ogni servizio. Al secondo piano si sviluppa una luminosa zona giorno con cucina a vista e accesso diretto a un ampio terrazzo, perfetto per colazioni allaperto o momenti di relax con vista sui tetti del centro. La casa, di circa 108 mq, è stata oggetto di una ristrutturazione completa, con impianti nuovi, climatizzazione, infissi a taglio termico e finiture di pregio che valorizzano la proprietà. Una soluzione chiavi in mano, ideale per chi cerca un investimento pronto a reddito nel settore dellaccoglienza o una residenza esclusiva nel cuore della città.
Main data
| Reference | 96421 |
| Ad date | 19/06/2025 |
| Contract | Sale |
| Typology | Independent house |
| Surface | 108 m2 |
| Locals | more than 5 (3 bedrooms, 3 other), 3 bathrooms, kitchen kitchenette |
| Plan | Entire building, 3 totals |
| Construction type | Average |
| Occupied | Free |
| Garage | Absent |
| Furniture | Partial |
Costs
| Price | 330.000 € |
| Price per m2 | 3.056 €/m2 |
Energy efficiency
| Status | Partially restored |
| Heating System Type | by air |
| Heating Power Type | Electric |
| Energy rating | G |
| Energy Performance Index (IPE) | 182 kWh/m2 year |
Floor plans
Address and map
vico Sparviero
8, Noto
Ad without map,
try asking the advertiser for the position
try asking the advertiser for the position
Mortgage calculation
Selling price:
Advance
20,00
Mortgage
80,00
Rate: -+
Payment: 944 per month
The results are an indicative estimate based on the data entered and do not constitute a financial offer.
Advertiser

Oikos S.r.l.s. Unipersonale
Via Napoli, Noto
Show Phone
Call
CONTACT

