Office Via Cavour 15, Gallarate
€ 1.100 per month
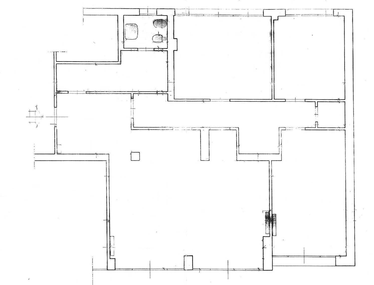
GALLARATE CENTRO A due passi dal centro di Gallarate, proponiamo in affitto un ufficio di 143 mq situato al secondo piano di un palazzo anni 70, comodo per raggiungere facilmente tutti i principali servizi e vie di comunicazione. Limmobile si affaccia su una strada di forte passaggio, garantendo ottima visibilità, ed è ideale per studi professionali o attività direzionali che cercano una sede funzionale e facilmente accessibile. Lufficio è luminoso e ben distribuito, composto da un ingresso con area reception/sala dattesa, quattro ampi locali operativi, un bagno finestrato ed è parzialmente arredato con armadiature su misura. Lo stabile è dotato di servizio di portineria attivo al mattino, il riscaldamento è centralizzato e i pavimenti sono in laminato. Limmobile è pronto per essere utilizzato senza necessità di interventi. Canone mensile richiesto 1.100, spese condominiali escluse. Contattaci per maggiori informazioni o per fissare una visita.
Main data
| Reference | U13224 |
| Ad date | 19/06/2025 |
| Contract | Rent |
| Typology | Office |
| Surface | 143 m2 |
| Locals | 5 (5 other), 1 bathroom |
| Plan | 2 |
| Occupied | Free |
| Furniture | Partial |
Costs
| Price | 1.100 € per month |
Energy efficiency
| Status | Good |
| Heating | Semi-autonomous |
| Energy rating | Property exempt from energy certification |
Floor plans
Address and map
Via Cavour
15, Gallarate
Ad without map,
try asking the advertiser for the position
try asking the advertiser for the position
Advertiser
Call
CONTACT


